Estimate your costs based on your location and materials.
Yes! This plan can be customized—contact us for a free quote.

Yes! This plan can be customized—contact us for a free quote.
PLEASE NOTE!! For this designer, The PDF that comes with the PRINT Packages (5 set+PDF and 8 set+PDF) is NOT Modifiable - it is for printing ONLY!
PLEASE NOTE!! Optional Foundations (foundations that cost extra money) will take 5-10 business days to complete.
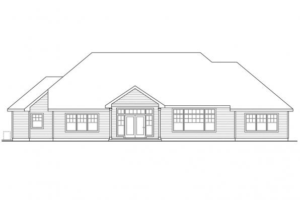
The typical plate height for this design is 9’-0”. The den, foyer & dining have a 12’-0” ceiling height. The living room, nook, kitchen & rear covered patios have a 10’-0” ceiling height. The bonus room has 6’-0” tall side walls that slope up to a 9’-0” ceiling.
Ranch Home Plans - The sleek and gently curved arch fronting the entry porch extends a stately yet unpretentious welcome to this ranch home plan. In the bright and spacious family living area, the living room on the left is balanced by, and open to, the comfortably large kitchen and nook on the right. The deluxe owners suite boasts a deep soaking tub and an exceptionally elongated walk-in closet.
Estimate your costs based on your location and materials.
All sales of house plans, modifications, and other products found on this site are final. No refunds or exchanges can be given once your order has begun the fulfillment process. Please see our Policies for additional information.
All plans offered on ThePlanCollection.com are designed to conform to the local building codes when and where the original plan was drawn.
The homes as shown in photographs and renderings may differ from the actual blueprints. For more detailed information, please review the floor plan images herein carefully.
Estimate your costs based on your location and materials.






