Estimate your costs based on your location and materials.
Yes! This plan can be customized—contact us for a free quote.

Yes! This plan can be customized—contact us for a free quote.
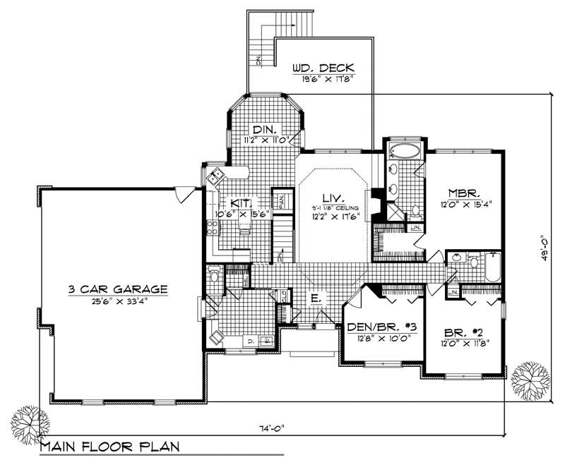
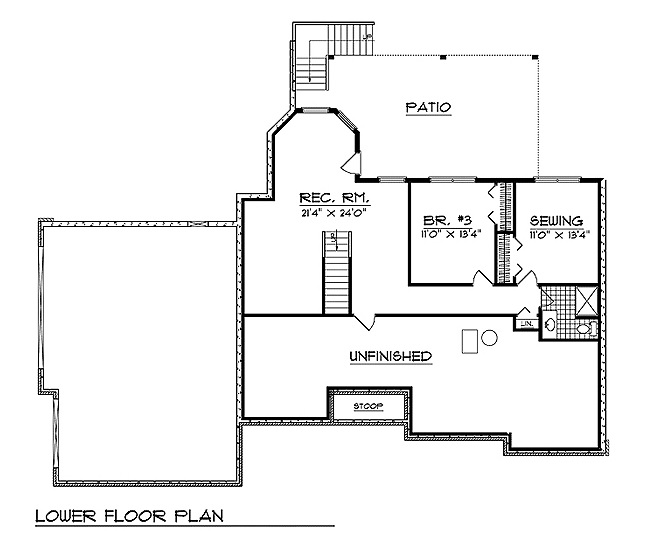
This splendid ranch house plan enhances its brick exterior with brick quoins and stone keys above the double hung windows. The open floor plan makes it easy to access any room in the house. The large living room houses a cozy fireplace and bright windows that overlook the rear deck while the island kitchen is open to the dining area. The master suite is perfect for relaxing and features a private bath with whirlpool tub and a spacious walk-in closet. Two additional bedrooms on this floor share a full bath; one could be converted to a den. Downstairs, you will find a large...
Estimate your costs based on your location and materials.
All sales of house plans, modifications, and other products found on this site are final. No refunds or exchanges can be given once your order has begun the fulfillment process. Please see our Policies for additional information.
All plans offered on ThePlanCollection.com are designed to conform to the local building codes when and where the original plan was drawn.
The homes as shown in photographs and renderings may differ from the actual blueprints. For more detailed information, please review the floor plan images herein carefully.
Estimate your costs based on your location and materials.
