Estimate your costs based on your location and materials.
Yes! This plan can be customized—contact us for a free quote.

Yes! This plan can be customized—contact us for a free quote.
PLEASE NOTE! If you order an optional foundation and a materials list, the materials list will NOT include the optional foundation, only the standard foundation. The designer can provide an updated materials list for a fee, so please ask for a quote! ATTENTION! All CAD orders include a PDF
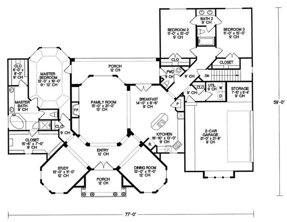
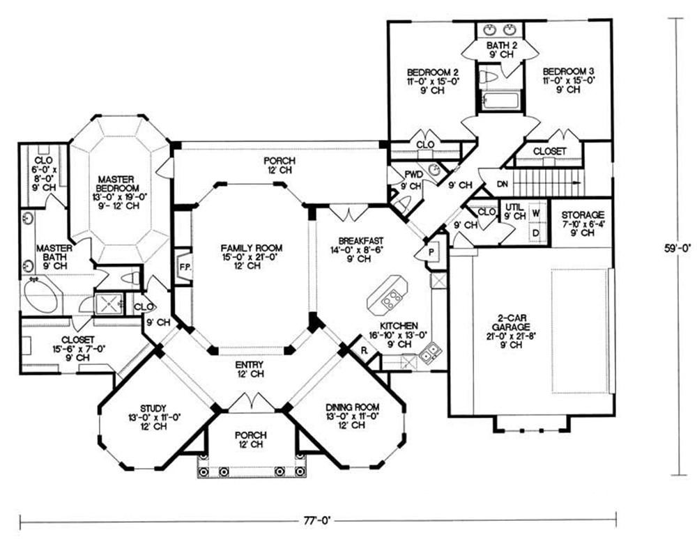
This alluring European style home plan with French influences (House Plan #120-1986) has over 2510 square feet of living space. The one story floor plan includes 3 bedrooms.
• The study and the dining room have beautiful arched windows
• The master bedroom, family room, and breakfast room have access to the covered rear porch.
• High ceilings give the home an open feel.
Estimate your costs based on your location and materials.
All sales of house plans, modifications, and other products found on this site are final. No refunds or exchanges can be given once your order has begun the fulfillment process. Please see our Policies for additional information.
All plans offered on ThePlanCollection.com are designed to conform to the local building codes when and where the original plan was drawn.
The homes as shown in photographs and renderings may differ from the actual blueprints. For more detailed information, please review the floor plan images herein carefully.
Estimate your costs based on your location and materials.






