Estimate your costs based on your location and materials.
Yes! This plan can be customized—contact us for a free quote.


Yes! This plan can be customized—contact us for a free quote.
Please Note: The plans by this designer DO NOT include electrical plans or electrical layout plans. NOTE: If you are building this home in Washington State, please contact us BEFORE placing your order!
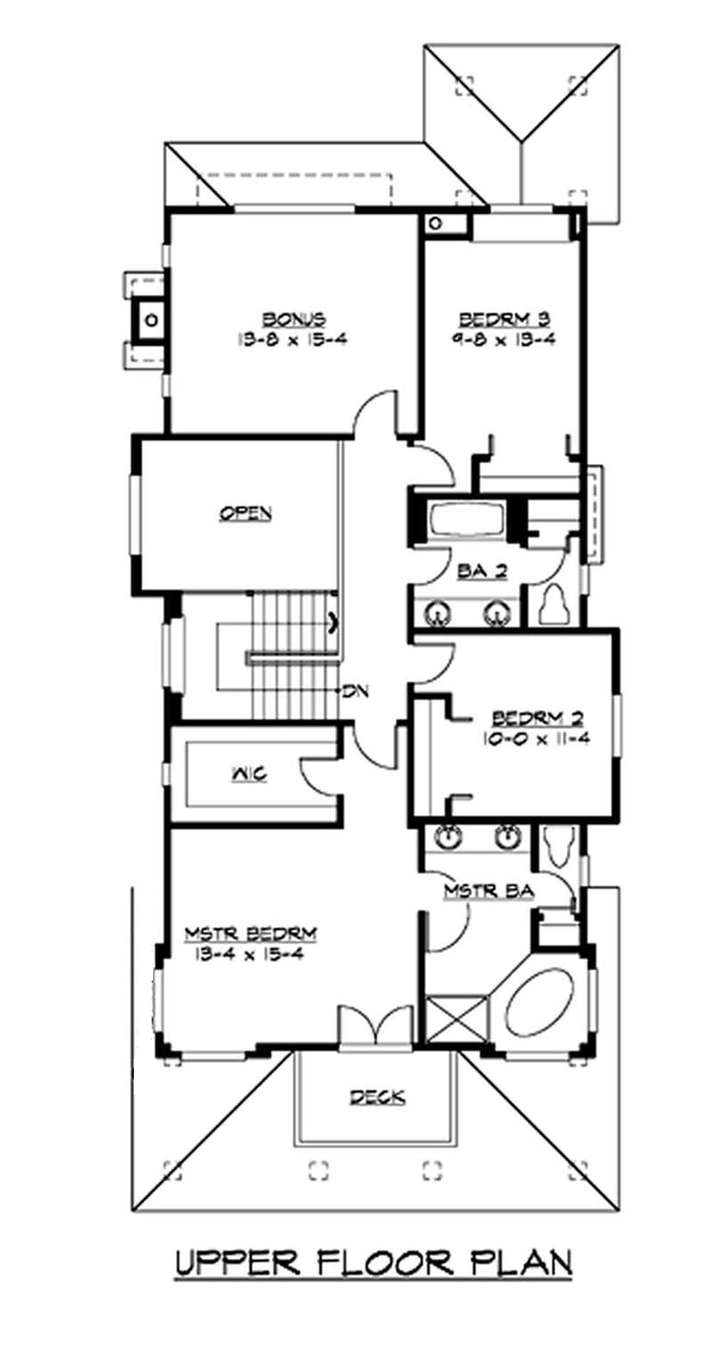
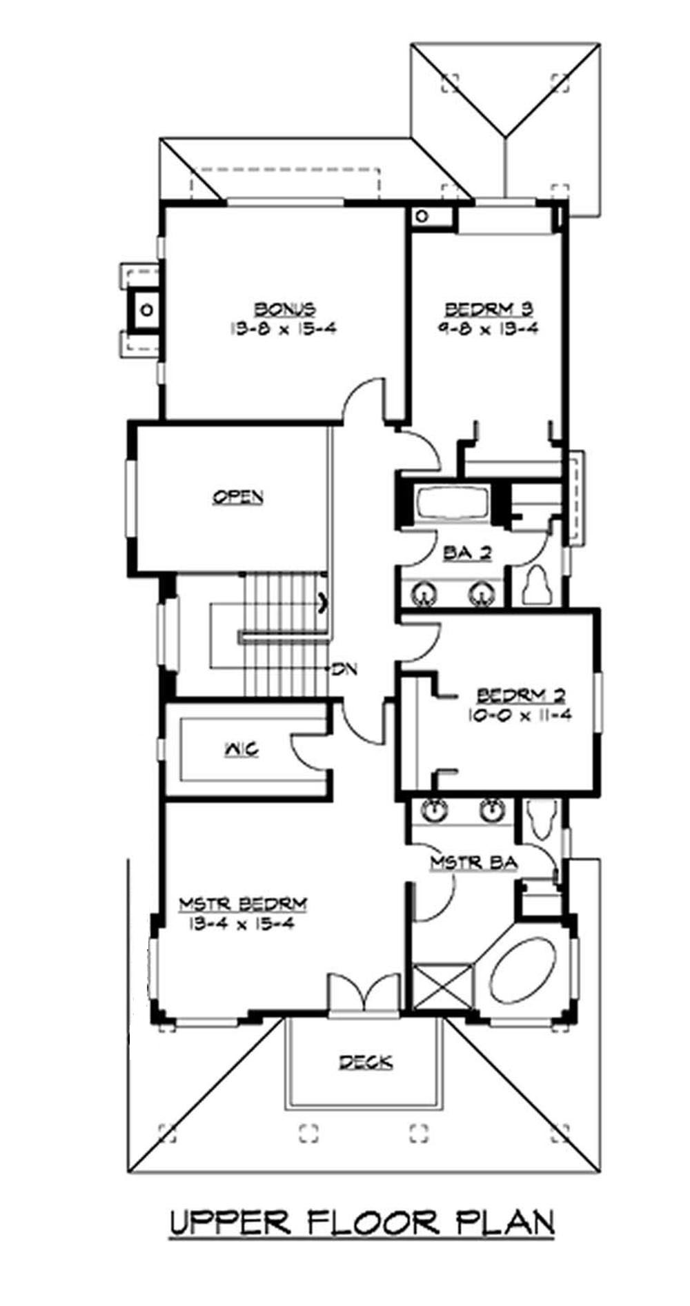
This is your perfect retro home! All of this home's features are right in line with the classic American craftsman/mission/bungalow styles. While updated to meet modern codes, this plan still holds plenty of classic characteristics of former years. This plan features front and rear covered porches, multiple fireplaces, a formal living room, reading den/study/office/library, formal dining room, spacious kitchen connected to an open to the above breakfast nook, a large great room conveniently close to the nook and kitchen allowing for large family get-togethers, a utility room, mudroom,...
Estimate your costs based on your location and materials.
All sales of house plans, modifications, and other products found on this site are final. No refunds or exchanges can be given once your order has begun the fulfillment process. Please see our Policies for additional information.
All plans offered on ThePlanCollection.com are designed to conform to the local building codes when and where the original plan was drawn.
The homes as shown in photographs and renderings may differ from the actual blueprints. For more detailed information, please review the floor plan images herein carefully.
Estimate your costs based on your location and materials.




