Estimate your costs based on your location and materials.
Yes! This plan can be customized—contact us for a free quote.


Yes! This plan can be customized—contact us for a free quote.
NO Material lists.
This plan uses a gable roof. For a related plan with gable and hip roofs, see House Plan #196-1009.
For smaller related plans please see:
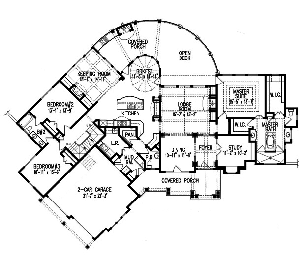
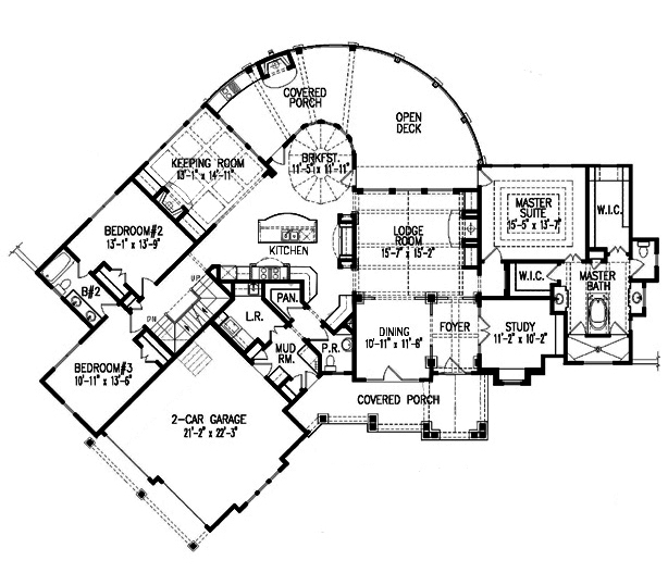
This Arts and Crafts inspired Ranch style home plan exudes luxury from its curb appeal right through the entire home (House Plan #198-1010). Features throughout the home make it one that friends and family won’t soon forget. The detailed shake siding and stone accents result in a curb appeal that will make it the best on the block.
The front porch, detailed with columns, sets the tone for this luxury home. The foyer leads to the vast open floor plan, with the large dining area to the left and study to the right. The lodge room includes a...
Estimate your costs based on your location and materials.
All sales of house plans, modifications, and other products found on this site are final. No refunds or exchanges can be given once your order has begun the fulfillment process. Please see our Policies for additional information.
All plans offered on ThePlanCollection.com are designed to conform to the local building codes when and where the original plan was drawn.
The homes as shown in photographs and renderings may differ from the actual blueprints. For more detailed information, please review the floor plan images herein carefully.
Estimate your costs based on your location and materials.















