3-Bedroom, 2465 Sq Ft Cape Cod Plan with Main Floor Master

Front elevation of Cape Cod home (ThePlanCollection: House Plan #131-1020)

Images/Plans copyrighted by designer. Photos may reflect homeowner modifications.

About House Plan #131-1020

Sq Ft
2465
Sq Ft
Bedrooms
3
Bedrooms
Bathroom
2
Baths
Half Baths
1
Half Baths
Bedrooms
2
Cars
Bedrooms
2
Stories
Bedrooms
73' 0'
Width
Bedrooms
53
Depth
Starting at$950.00What's included
STEP 1Bedrooms
STEP 2Bedrooms
STEP 3Bedrooms

Subtotal:$0
BedroomsBest Price Guaranteed
Plan Collection

How much will it cost to build?

Estimate your costs based on your location and materials.

Free Cost Instant Estimator

Floor Plans

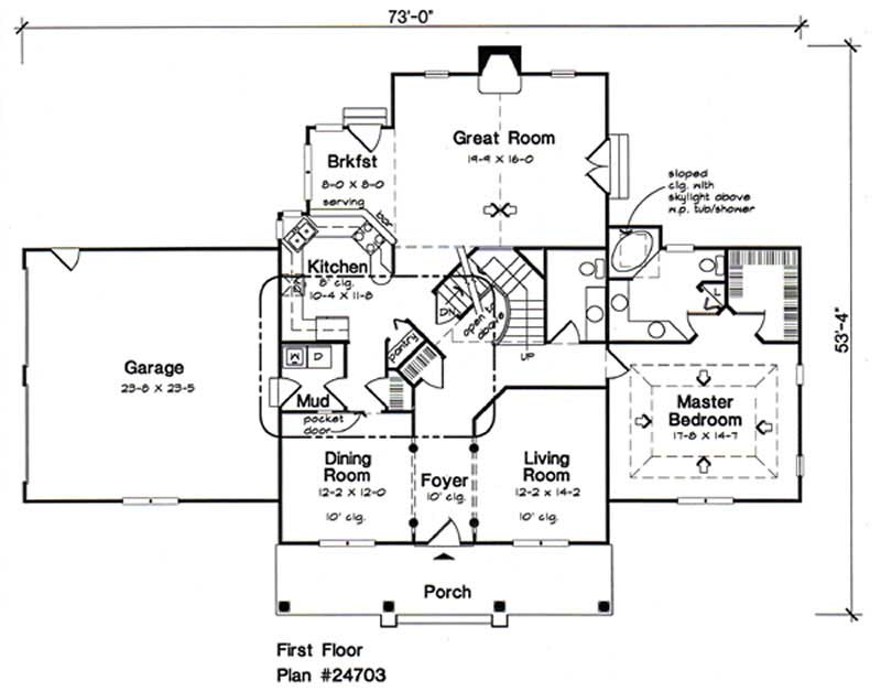
MAIN LEVEL FLOOR PLAN
MAIN LEVEL FLOOR PLAN
SECOND LEVEL FLOOR PLAN
SECOND LEVEL FLOOR PLAN
FLOOR PLAN OPTION
FLOOR PLAN OPTION
Plan Collection

Can I modify this plan?

Yes! This plan can be customized—contact us for a free quote.

House Plan Description

A trio of dormers, perched above a columned front porch, impart an air of sophisticated comfort for this 1 ½ -story home. Inside, elegant columns continue the theme to define the dining room, foyer, and living room at the front of the home. Further inside, the kitchen and breakfast area interact openly with the great room at the rear of the home. A tray ceiling crowns the master suite, which includes a full bath with dual sink vanity and a walk-in closet. Upstairs, both secondary bedrooms also have walk-in closets, along with dormer windows. Abundant storage space is found behind...

Home Details

Summary
Plan #:131-1020
Starting at:$950.00
Floors:2
Bedrooms:3
Full Baths:2
Half Baths:1
Garage:
Square Footage
Heated Area:2465 Sq. Ft.
First Floor:1749 Sq. Ft.
Second Floor:716 Sq. Ft.
Unheated Area:
Garage:576 Sq. Ft.
Dimensions
Depth:53' 4''
Ridge Height:27'0' 0''
Architectural Styles
Exterior Wall Material
Vinyl Siding
Roofing Type
Gable
Roof Pitch
10/12
Ceiling Height
8 Foot Ceiling
Special Feature
Dining Room
Garage Type
Attached GarageSide Entry
Fireplaces
One Fireplace
Exterior Wall Framing
2x4

What’s Included

Most plan sets include the following:

icon text-secondary-400 includedExterior elevations

icon text-secondary-400 includedFoundation plans

icon text-secondary-400 includedInterior elevations

icon text-secondary-400 includedElectrical layout

icon text-secondary-400 includedDetailed house floor plans

What’s Not Included

These items are  NOT included:

icon text-secondary-400 includedArchitectural or Engineering Stamp - handled locally if required.

icon text-secondary-400 includedSite Plan - handled locally when required.

icon text-secondary-400 includedMechanical Drawings (location of heating and air equipment and ductwork) - your subcontractors handle this.

icon text-secondary-400 includedPlumbing Drawings (drawings showing the actual plumbing pipe sizes and locations) - your subcontractors handle this.

icon text-secondary-400 includedEnergy calculations - handled locally when required.

Related House Plans

Plan Collection
Plan Collection
Plan Collection
Plan#174-1059
Starting at$710
1925
Sq Ft
2
Story
3
Bed
2
Bath
2
Car
Plan Collection
Plan Collection
Plan Collection
Plan#138-1351
Starting at$1050
2240
Sq Ft
2
Story
3
Bed
2.5
Bath
2
Car
Plan Collection
Plan Collection
Plan Collection
Plan#153-1507
Starting at$1200
2177
Sq Ft
2
Story
3
Bed
2.5
Bath
2
Car
View All

Other Plans By This Designer

Plan Collection
Plan Collection
Plan Collection
Plan#131-1047
Starting at$800
1792
Sq Ft
1
Story
3
Bed
2
Bath
0
Car
Plan Collection
Plan Collection
Plan Collection
Plan#131-1013
Starting at$900
2083
Sq Ft
2
Story
3
Bed
2.5
Bath
2
Car
Plan Collection
Plan Collection
Plan Collection
Plan#131-1243
Starting at$600
972
Sq Ft
2
Story
3
Bed
1
Bath
0
Car