Estimate your costs based on your location and materials.
Yes! This plan can be customized—contact us for a free quote.

Yes! This plan can be customized—contact us for a free quote.
PLEASE NOTE!! For this designer, The PDF that comes with the PRINT Packages (5 set+PDF and 8 set+PDF) is NOT Modifiable - it is for printing ONLY!
PLEASE NOTE!! Optional Foundations (foundations that cost extra money) will take 5-10 business days to complete.
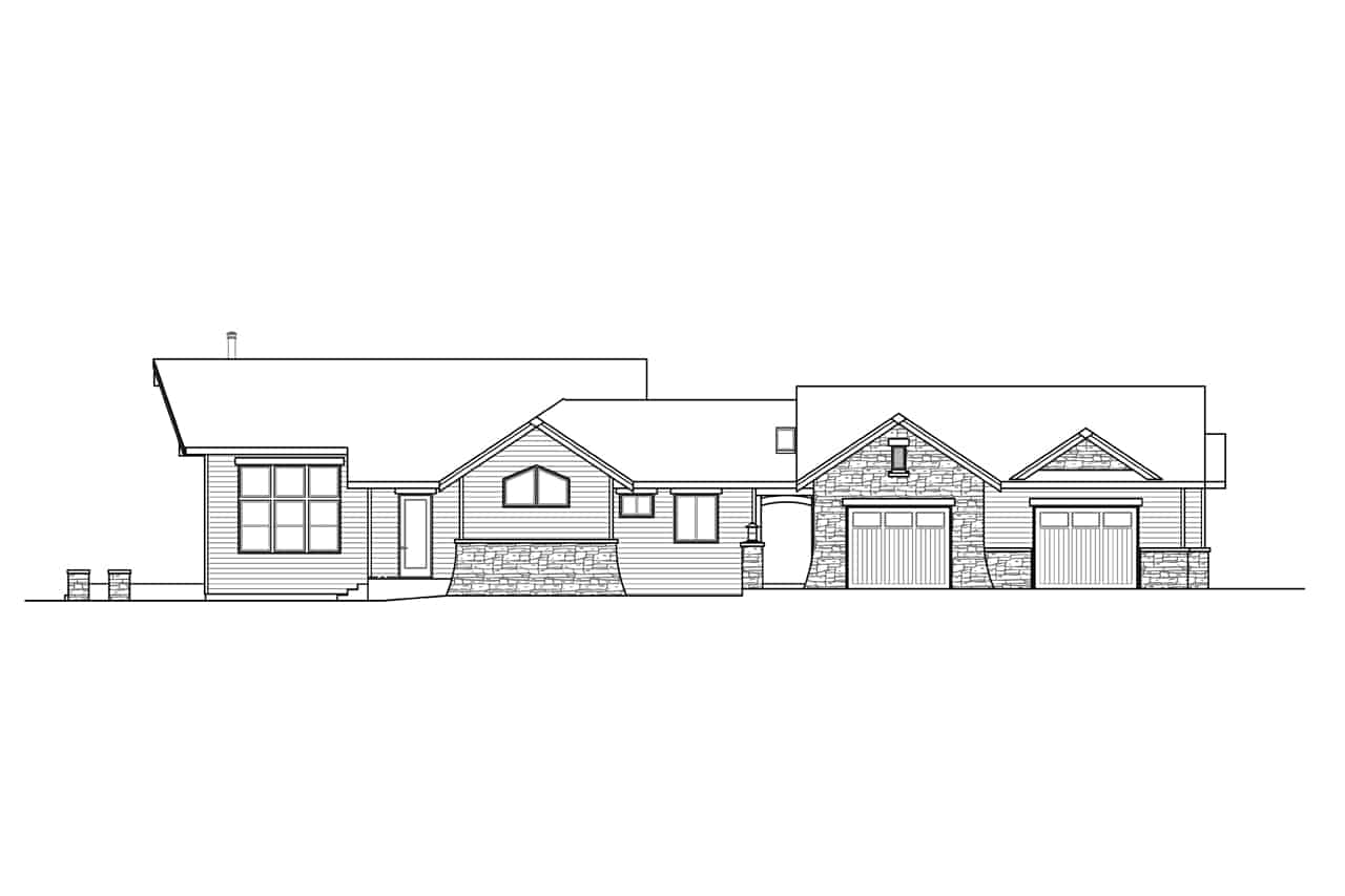
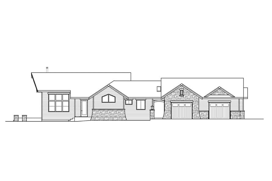
This Single Family Country Style Ranch House Plan has 2383 square feet, 2 bedrooms, and 2 bathrooms.
You'll love coming home to this spectacular Country style Ranch home – simple but elegant. Its subtle and style-appropriate use of materials for the roof and exterior walls gives it an attractive curb appeal. The magnificent 1-story floor plan has 2383 square feet of heated and cooled living space and includes these special amenities:
• Fireplace in the Great Room
• Vaulted ceiling
• Walk-in kitchen pantry
• Utility room with a sink
• Lots of storage space
Estimate your costs based on your location and materials.
All sales of house plans, modifications, and other products found on this site are final. No refunds or exchanges can be given once your order has begun the fulfillment process. Please see our Policies for additional information.
All plans offered on ThePlanCollection.com are designed to conform to the local building codes when and where the original plan was drawn.
The homes as shown in photographs and renderings may differ from the actual blueprints. For more detailed information, please review the floor plan images herein carefully.
Estimate your costs based on your location and materials.




