4-Bedroom, 2373 Sq Ft Southern Plan with Peninsula/Eating Bar

Main image for house plan # 17653

Images/Plans copyrighted by designer. Photos may reflect homeowner modifications.

About House Plan #153-1800

Sq Ft
2373
Sq Ft
Bedrooms
4
Bedrooms
Bathroom
3
Baths
Half Baths
0
Half Baths
Bedrooms
2
Cars
Bedrooms
2
Stories
Bedrooms
76' 10'
Width
Bedrooms
53
Depth
Starting at$1200.00What's included
STEP 1Bedrooms
STEP 2Bedrooms
STEP 3Bedrooms

Subtotal:$0
BedroomsBest Price Guaranteed
Plan Collection

How much will it cost to build?

Estimate your costs based on your location and materials.

Free Cost Instant Estimator

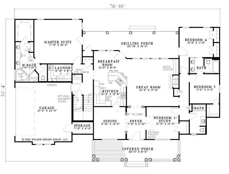
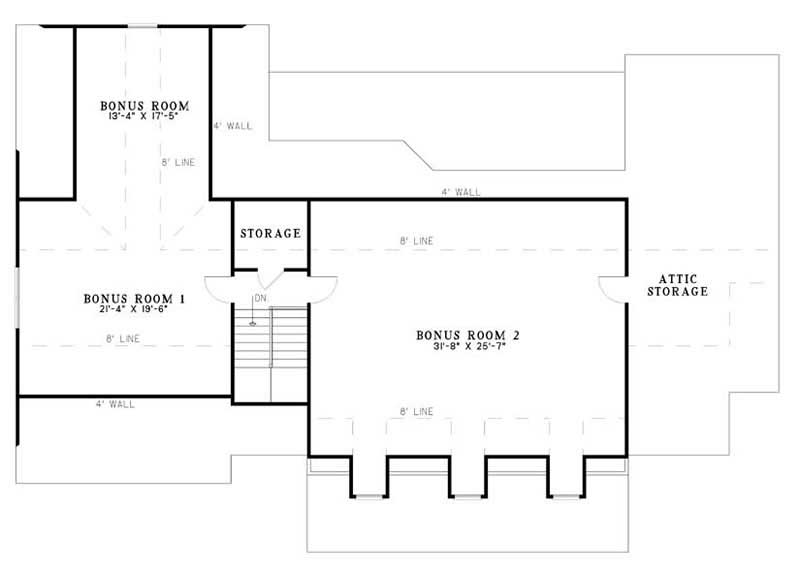
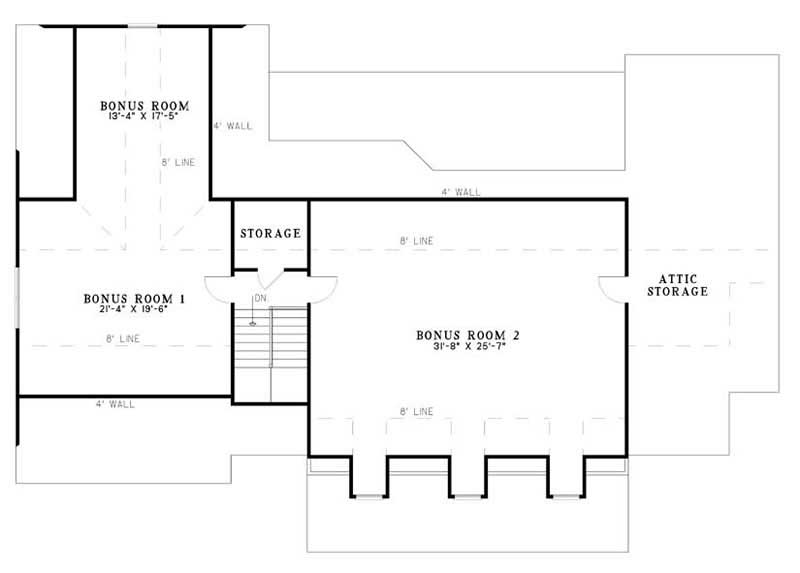
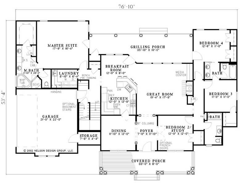
Floor Plans

MAIN LEVEL FLOOR PLAN
MAIN LEVEL FLOOR PLAN
BONUS ROOM
BONUS ROOM
Plan Collection

Can I modify this plan?

Yes! This plan can be customized—contact us for a free quote.

Additional Notes from Designer

Plans by this designer do NOT usually come with FRAMING - some plans may have framing available for an extra fee - please contact us to find out about a specific plan & we will check with the designer!! Additionally: For this designer, if you choose optional features such as but not limited to: 2x6 framing, reverse or optional basement, the designer will need an additional 2-5 business days to adjust the plan accordingly. Please keep this in mind when choosing your shipping option. If you would like Express or Priority shipping, the designer will ship the plan to you using the method you choose but you will still have the 2-5 business day waiting period BEFORE they ship! Please feel free to contact us with any questions! PLEASE NOTE: Multi-licenses are available. The plans do not come with ICF specifications. If ICF construction method is desired, the CAD plan can be purchased and then forwarded to the ICF dealer and they’ll do a takeoff to assist with that specific projec

House Plan Description

This spectacular split design blends the warmth of country with classic southern tradition in a detailed porch with round columns on stone pillars. The spacious great room has a built-in media center, fireplace and wall of windows leading to a breakfast room/kitchen combination sharing a handy breakfast bar. The large master suite accesses a column lined porch and has a private bathroom featuring a corner whirlpool tub, makeup area and large walk-in closet. Three additional bedrooms with two shared bathrooms complete the main level. Upstairs you’ll find several bonus rooms with creative...

Home Details

Summary
Plan #:153-1800
Starting at:$1200.00
Floors:2
Bedrooms:4
Full Baths:3
Half Baths:0
Garage:
Square Footage
Heated Area:2373 Sq. Ft.
First Floor:2373 Sq. Ft.
Unheated Area:
Bonus Room:776 Sq. Ft.
Garage:523 Sq. Ft.
Dimensions
Width:76' 10''
Depth:53' 4''
Ridge Height:26'3' 0''
Architectural Styles
Roof Pitch
10/12
Ceiling Height
9 Foot Ceiling8 Foot Ceiling
Special Feature
FireplaceGuest RoomBonus Room
Garage Type
Attached GarageSide Entry
Fireplaces
One Fireplace

What’s Included

Most plan sets include the following:

icon text-secondary-400 included floorplan

icon text-secondary-400 included 4 side exterior elevations,

icon text-secondary-400 included electrical plan,

icon text-secondary-400 included birds-eye view of the roof,

icon text-secondary-400 included foundation plan,

icon text-secondary-400 included and some miscellaneous details. Please Note We do not offer plumbing, HVAC, or window scheduling. This will have to be done on a local level, probably by your building team!

What’s Not Included

These items are  NOT included:

icon text-secondary-400 includedArchitectural or Engineering Stamp - handled locally if required.

icon text-secondary-400 includedSite Plan - handled locally when required.

icon text-secondary-400 includedMechanical Drawings (location of heating and air equipment and ductwork) - your subcontractors handle this.

icon text-secondary-400 includedPlumbing Drawings (drawings showing the actual plumbing pipe sizes and locations) - your subcontractors handle this.

icon text-secondary-400 includedEnergy calculations - handled locally when required.

Related House Plans

Plan Collection
Plan Collection
Plan Collection
Plan#153-1786
Starting at$1200
2363
Sq Ft
2
Story
4
Bed
3
Bath
2
Car
Plan Collection
Plan Collection
Plan Collection
Plan#178-1096
Starting at$1155
2252
Sq Ft
2
Story
4
Bed
3
Bath
3
Car
Plan Collection
Plan Collection
Plan Collection
Plan#109-1191
Starting at$1495
2909
Sq Ft
2
Story
4
Bed
3.5
Bath
0
Car
View All

Other Plans By This Designer

Plan Collection
Plan Collection
Plan Collection
Plan#153-1454
Starting at$1100
2039
Sq Ft
1
Story
4
Bed
3
Bath
2
Car
Plan Collection
Plan Collection
Plan Collection
Plan#153-1249
Starting at$1100
1927
Sq Ft
2
Story
3
Bed
2
Bath
2
Car
Plan Collection
Plan Collection
Plan Collection
Plan#153-1324
Starting at$1200
1169
Sq Ft
1
Story
3
Bed
2
Bath
0
Car