Estimate your costs based on your location and materials.
Yes! This plan can be customized—contact us for a free quote.


Yes! This plan can be customized—contact us for a free quote.
PLEASE NOTE! This designer's plans do NOT come with framing!
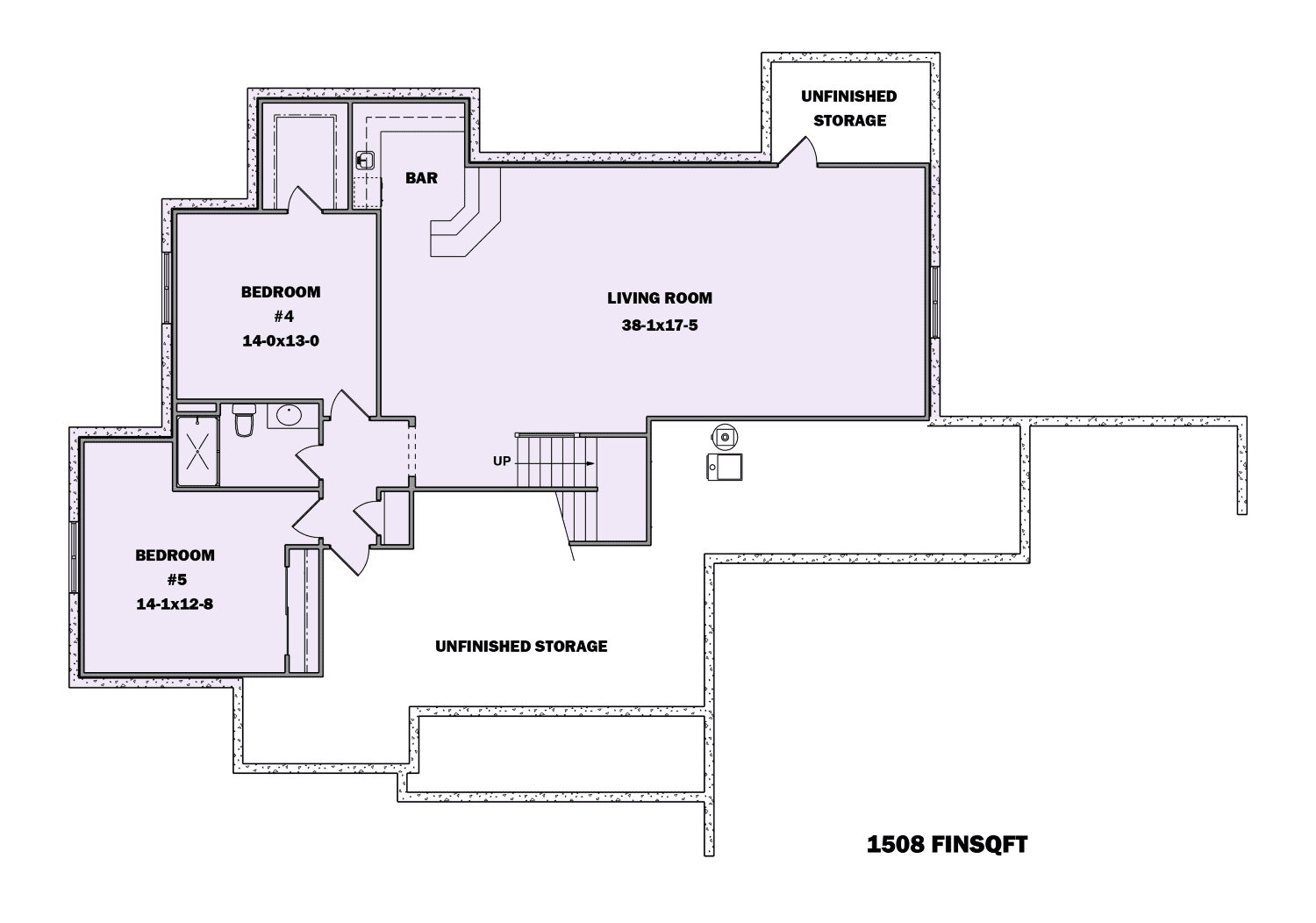
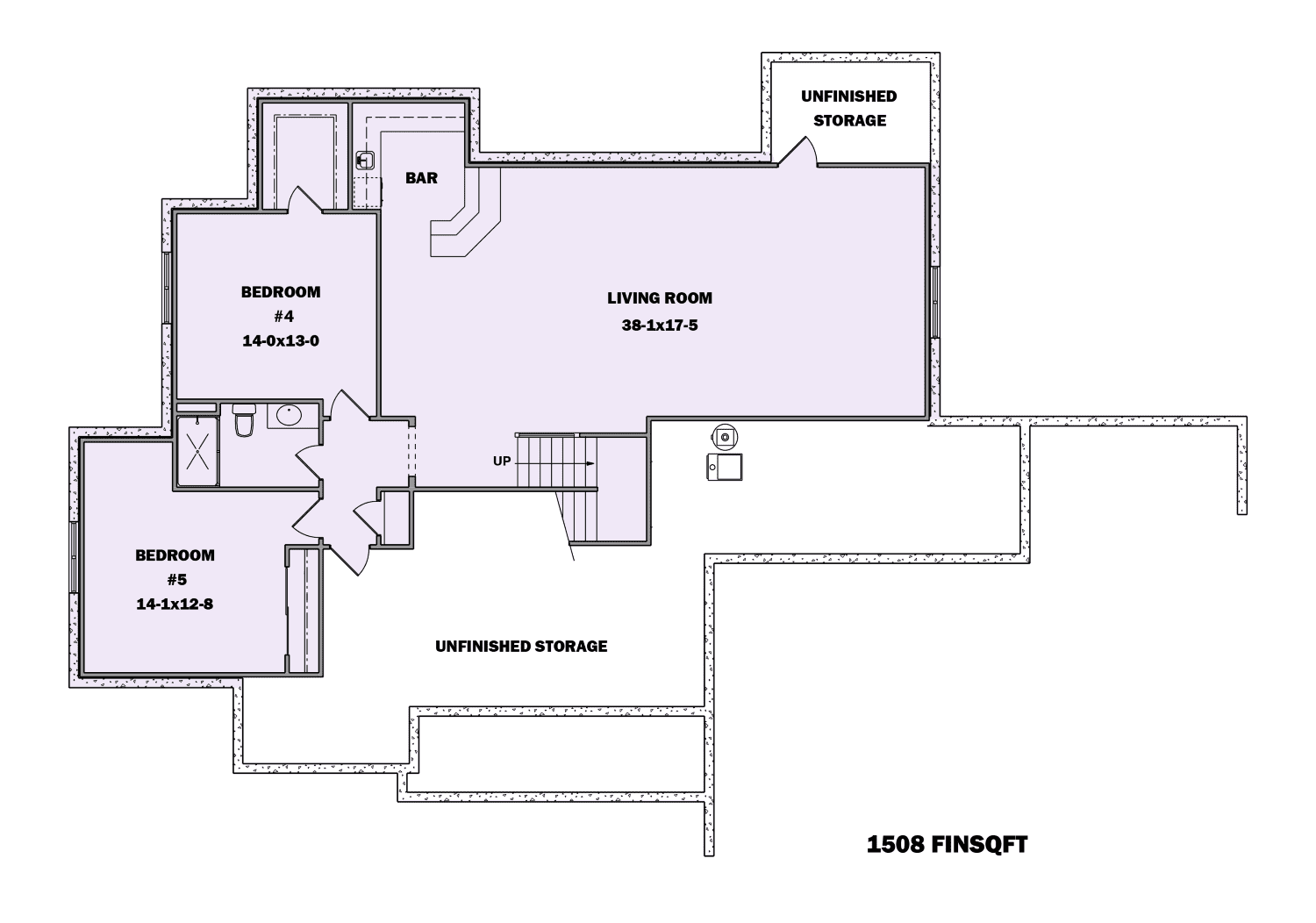
This 3–5-bedroom house is a Rustic style Ranch with Craftsman appointments and a modern appeal, which caters to a wide range of buyers from the old to the young. It holds a 2,350-heated-square-foot main level and an optional 1,508-heated-square-foot lower level with an additional 842-square-foot unfinished space.
From the grand covered front porch, the main entrance door ushers you into the foyer leading to the Great Room, nook, and kitchen with an open floor plan. The covered porch at the back further enhances the intrior, and it can serve as overflow...
Estimate your costs based on your location and materials.
All sales of house plans, modifications, and other products found on this site are final. No refunds or exchanges can be given once your order has begun the fulfillment process. Please see our Policies for additional information.
All plans offered on ThePlanCollection.com are designed to conform to the local building codes when and where the original plan was drawn.
The homes as shown in photographs and renderings may differ from the actual blueprints. For more detailed information, please review the floor plan images herein carefully.
Estimate your costs based on your location and materials.
















