Estimate your costs based on your location and materials.
Yes! This plan can be customized—contact us for a free quote.


Yes! This plan can be customized—contact us for a free quote.
PLEASE NOTE! This designer's plans do NOT come with framing!
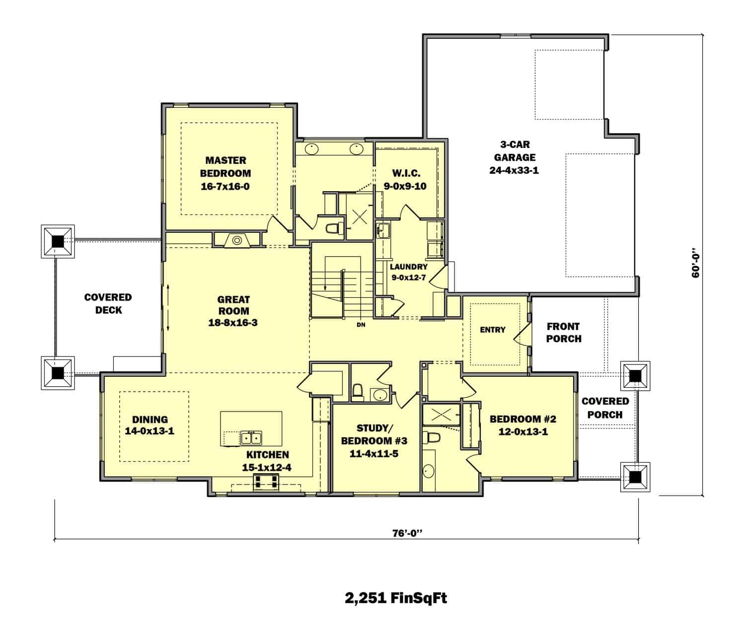
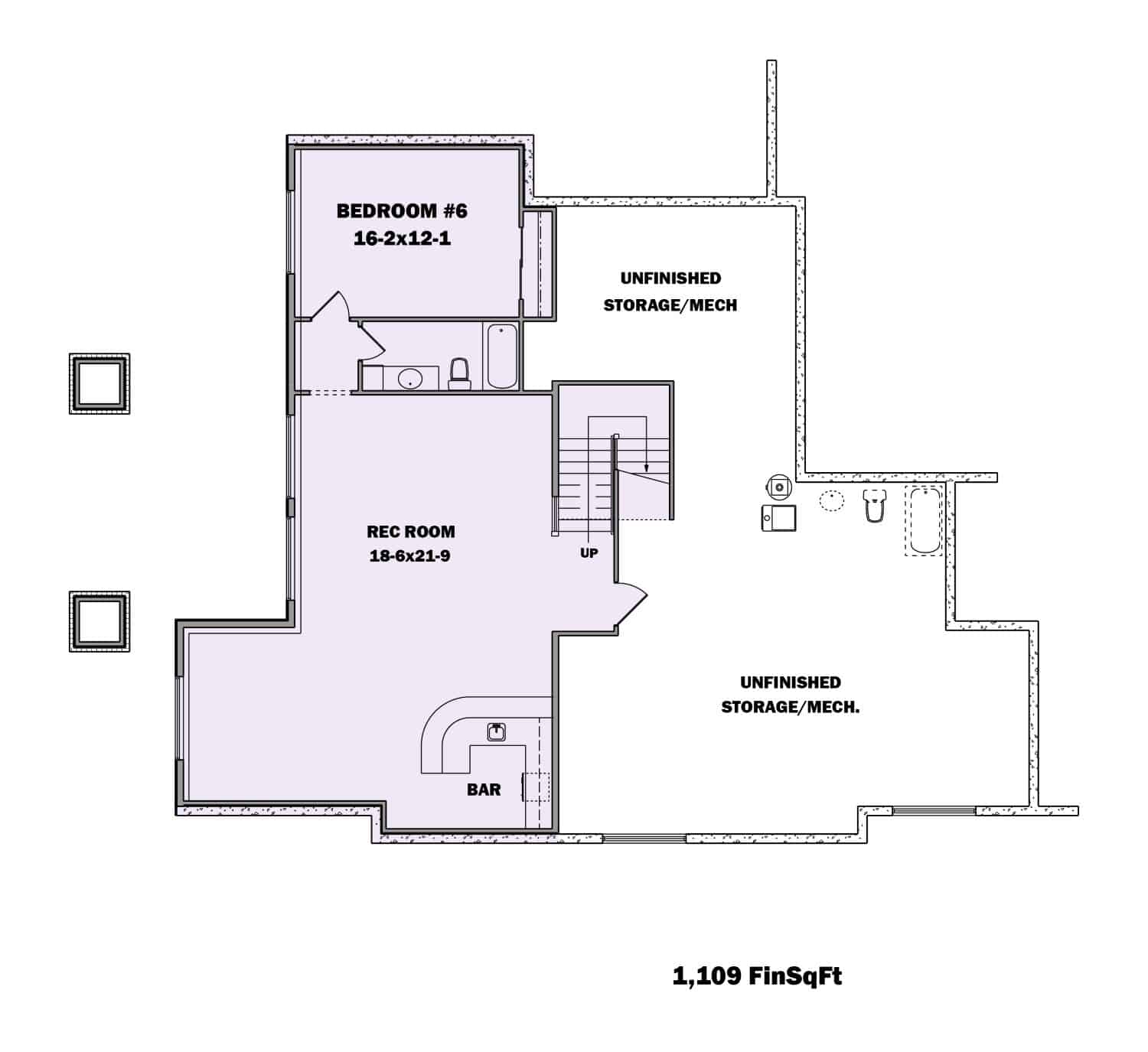
Comfort and style await you with this beautiful Ranch style home with Contemporary characteristics. The awesome use and balance of natural stone and warm-toned colors give this place a nice cozy feel. Everyone in your family will surely fall in love with the house and make it their top choice. The adorable home's 1-story floor plan has 2251 square feet of heated and cooled living space with a full basement that you may finish at your option – according to the suggested floor plan if you wish.
Upon stepping up to the front of the house,...
Estimate your costs based on your location and materials.
All sales of house plans, modifications, and other products found on this site are final. No refunds or exchanges can be given once your order has begun the fulfillment process. Please see our Policies for additional information.
All plans offered on ThePlanCollection.com are designed to conform to the local building codes when and where the original plan was drawn.
The homes as shown in photographs and renderings may differ from the actual blueprints. For more detailed information, please review the floor plan images herein carefully.
Estimate your costs based on your location and materials.








