Estimate your costs based on your location and materials.
Yes! This plan can be customized—contact us for a free quote.


Yes! This plan can be customized—contact us for a free quote.
On some plans, Basement Foundations, Walkout Basement Foundations, & 2x6 Conversions could take up to ONE WEEK to produce. Materials Lists could take up to FOUR WEEKS to produce and they will be for the ORIGINAL plan! Any modifications will NOT be reflected on the Materials List. NOTE FROM DESIGNER: If you purchase a CAD, you will automatically receive the unlimited build license - no need to purchase separately!
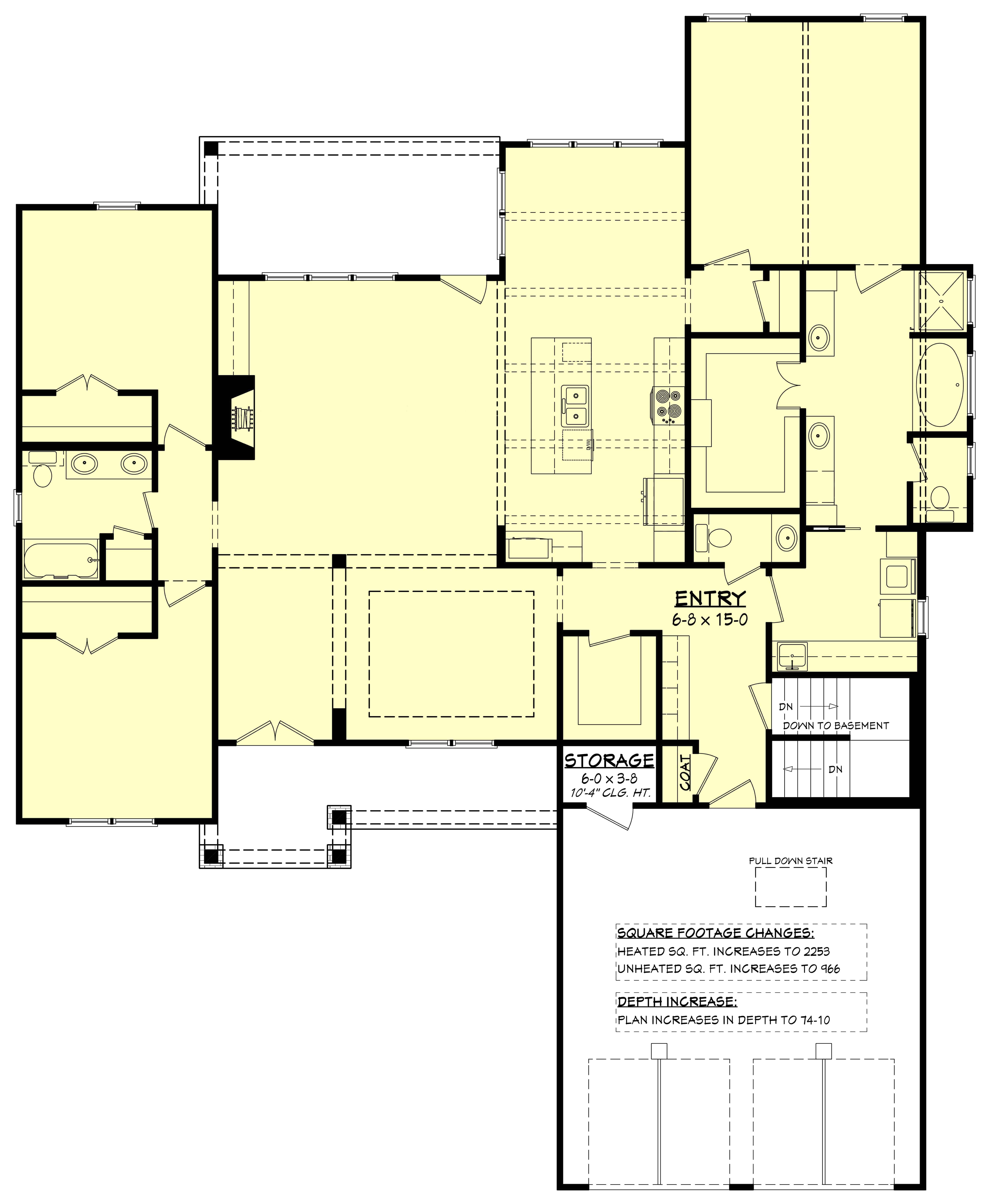
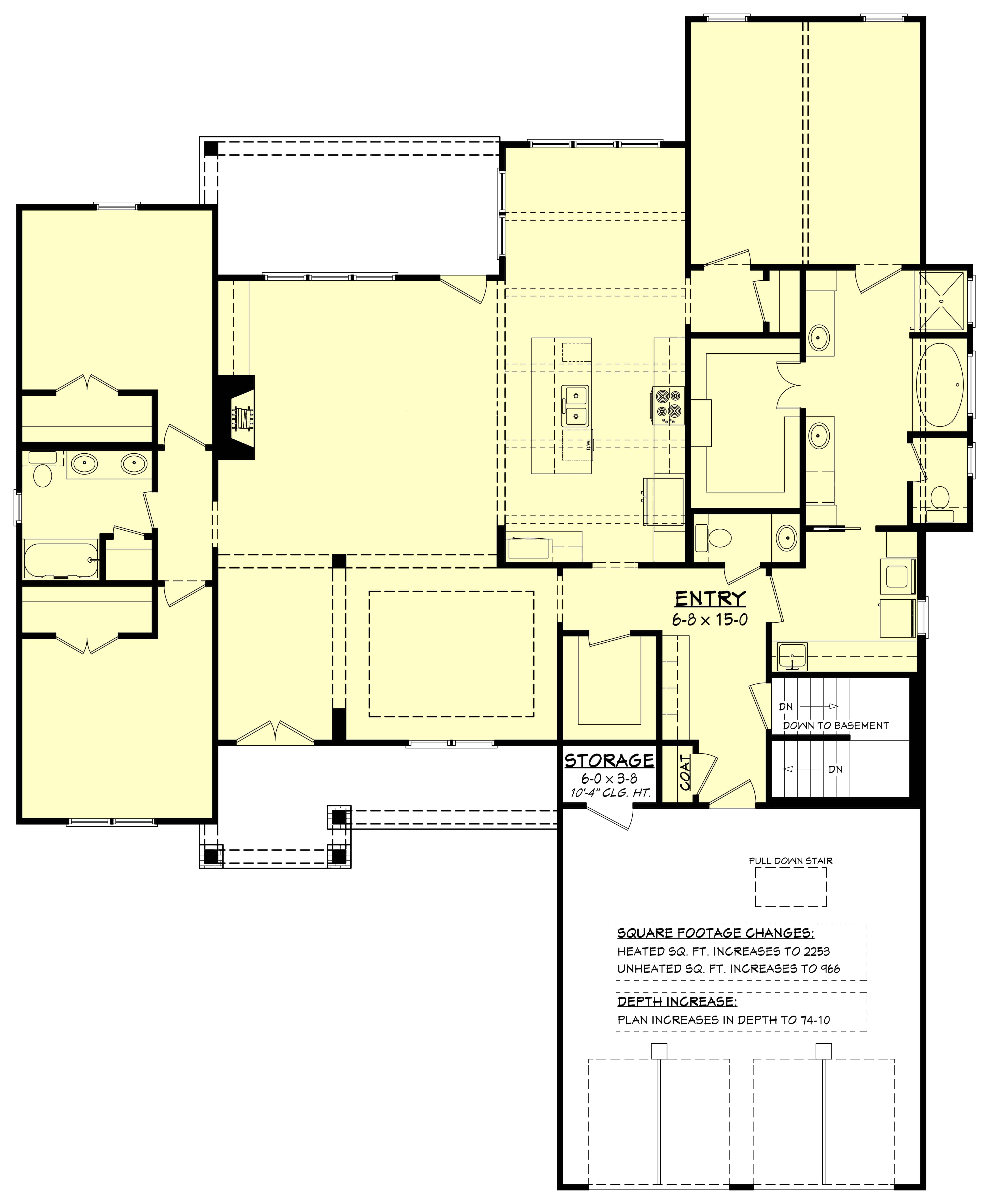
Looking for a bit of everything in your new home? This 3-bed, 2234 sq ft open traditional plan has got you covered! With formal dining and breakfast spaces, large living space, rear porch, and all the amenities you could want, this home is perfect for anyone. The kitchen features a large island perfect for meal prep or entertaining guests. You'll love the oversized pantry and the natural light that flows throughout the space. The main suite features its own private bathroom extra storage closet space, a private bath with dual sinks and knee space. The walk-in closet is an added bonus...
Estimate your costs based on your location and materials.
All sales of house plans, modifications, and other products found on this site are final. No refunds or exchanges can be given once your order has begun the fulfillment process. Please see our Policies for additional information.
All plans offered on ThePlanCollection.com are designed to conform to the local building codes when and where the original plan was drawn.
The homes as shown in photographs and renderings may differ from the actual blueprints. For more detailed information, please review the floor plan images herein carefully.
Estimate your costs based on your location and materials.






