Estimate your costs based on your location and materials.
Yes! This plan can be customized—contact us for a free quote.

Yes! This plan can be customized—contact us for a free quote.
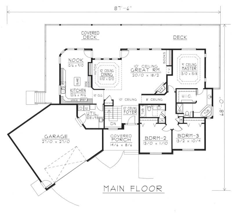
Home Plan RDI-2132R1-DB features open spaces in a traditional floor plan. The Great Room and Dining Room are together, yet each room is defined by elegant ceiling detail and multi dimensional room depths. The Kitchen and Nook are separate and open to each other. The Master Suite is secluded with a large private bath. Two more bedrooms and an unfinished basement make this home perfect for any family.
Estimate your costs based on your location and materials.
All sales of house plans, modifications, and other products found on this site are final. No refunds or exchanges can be given once your order has begun the fulfillment process. Please see our Policies for additional information.
All plans offered on ThePlanCollection.com are designed to conform to the local building codes when and where the original plan was drawn.
The homes as shown in photographs and renderings may differ from the actual blueprints. For more detailed information, please review the floor plan images herein carefully.
Estimate your costs based on your location and materials.


