Estimate your costs based on your location and materials.
Yes! This plan can be customized—contact us for a free quote.


Yes! This plan can be customized—contact us for a free quote.
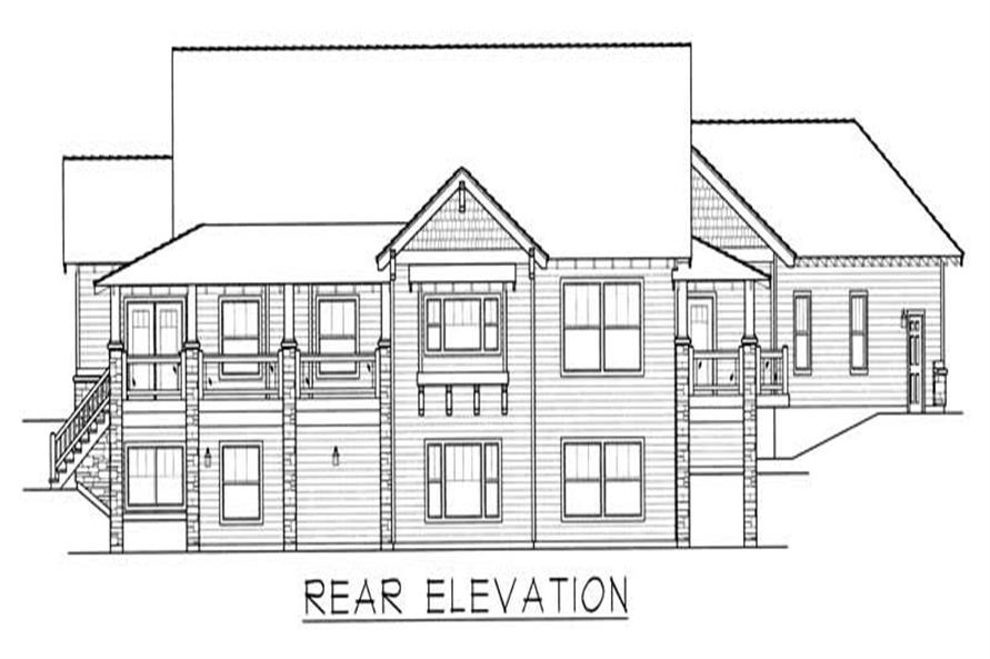
This prototypical Ranch style home is a modestly large housee with spacious rooms and high ceilings. The main portion of the home features 10-ft.-high and vaulted ceilings, while the bedrooms are vaulted as well. The master suite is elegant with a private deck, private bath with large soaking tub, and a large walk-in closet. Across the house is a guest room which is secluded near the entry with access to a full bath. The home also features a walk-in pantry, big laundry room, and a finished basement. The basement houses a family room, two more bedrooms, an office, and plenty of...
Estimate your costs based on your location and materials.
All sales of house plans, modifications, and other products found on this site are final. No refunds or exchanges can be given once your order has begun the fulfillment process. Please see our Policies for additional information.
All plans offered on ThePlanCollection.com are designed to conform to the local building codes when and where the original plan was drawn.
The homes as shown in photographs and renderings may differ from the actual blueprints. For more detailed information, please review the floor plan images herein carefully.
Estimate your costs based on your location and materials.



