Estimate your costs based on your location and materials.
Yes! This plan can be customized—contact us for a free quote.


Yes! This plan can be customized—contact us for a free quote.
NOTE FROM DESIGNER REGARDING PLAN PURCHASES: 80% of a 5 set purchase price can be applied to any PDF or CAD license upgrade. Additionally, 80% of PDF Study purchase price can be applied to any CAD or PDF license upgrade.
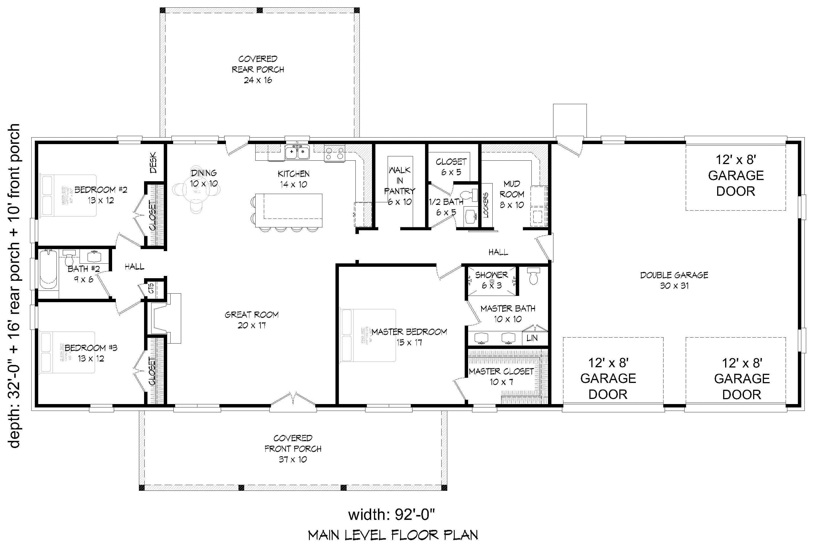
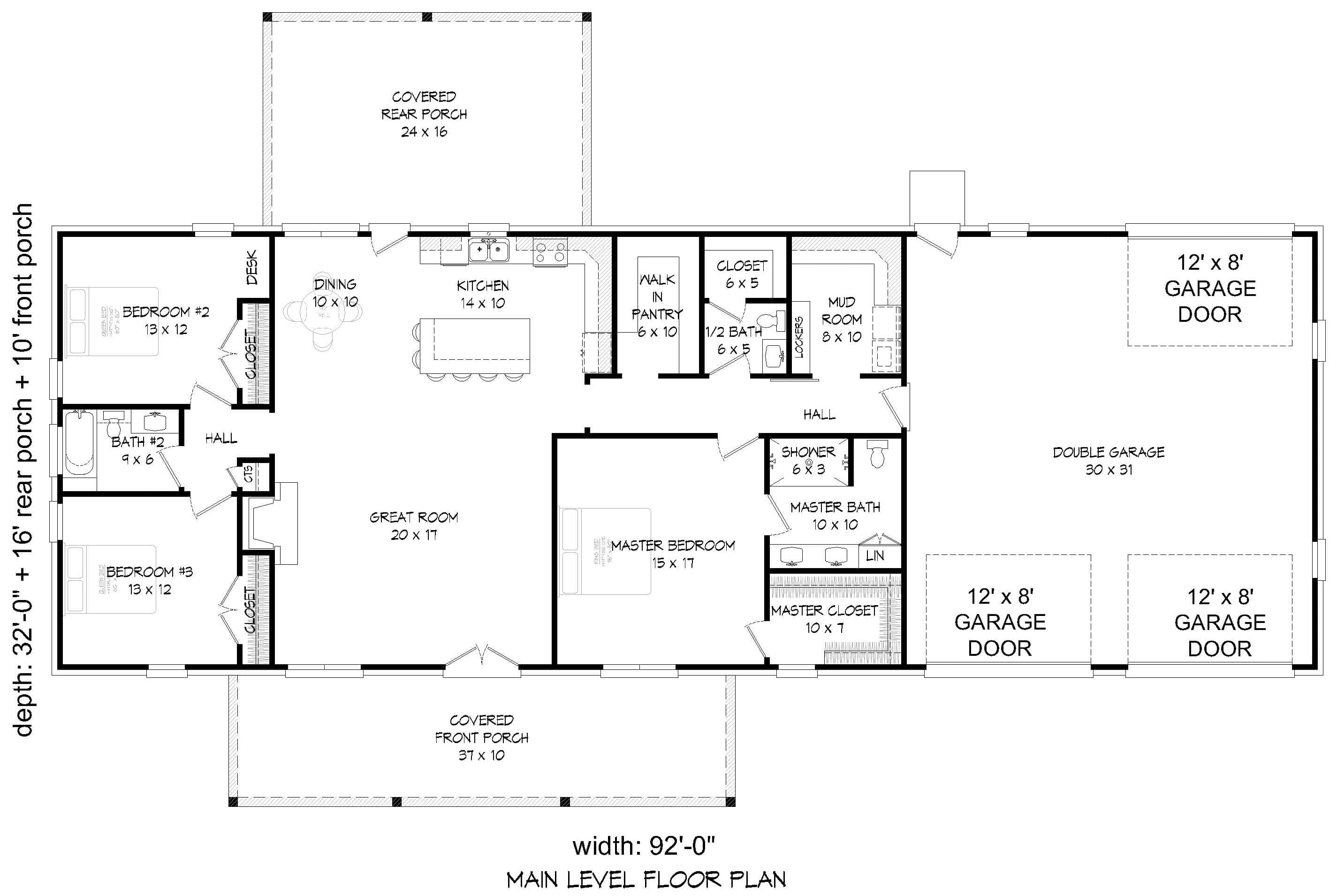
This modern farmhouse plan offers 2,049 sq ft of heated living space in a well-designed single-story layout. With a 92'-0" width and 32'-0" depth, this ranch-style home features a metal gable roof with 8:12 primary and 3:12 secondary pitch and a ridge height of 20'-5". The exterior showcases board and batten siding with stone accents, delivering a clean and timeless farmhouse design.
Inside, the open-concept floor plan includes a spacious great room, dining area, and kitchen with island, eating bar, and walk-in pantry. The home features 3 bedrooms, 2...
Estimate your costs based on your location and materials.
All sales of house plans, modifications, and other products found on this site are final. No refunds or exchanges can be given once your order has begun the fulfillment process. Please see our Policies for additional information.
All plans offered on ThePlanCollection.com are designed to conform to the local building codes when and where the original plan was drawn.
The homes as shown in photographs and renderings may differ from the actual blueprints. For more detailed information, please review the floor plan images herein carefully.
Estimate your costs based on your location and materials.








