Estimate your costs based on your location and materials.
Yes! This plan can be customized—contact us for a free quote.

Yes! This plan can be customized—contact us for a free quote.
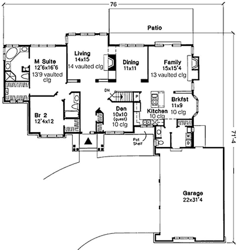
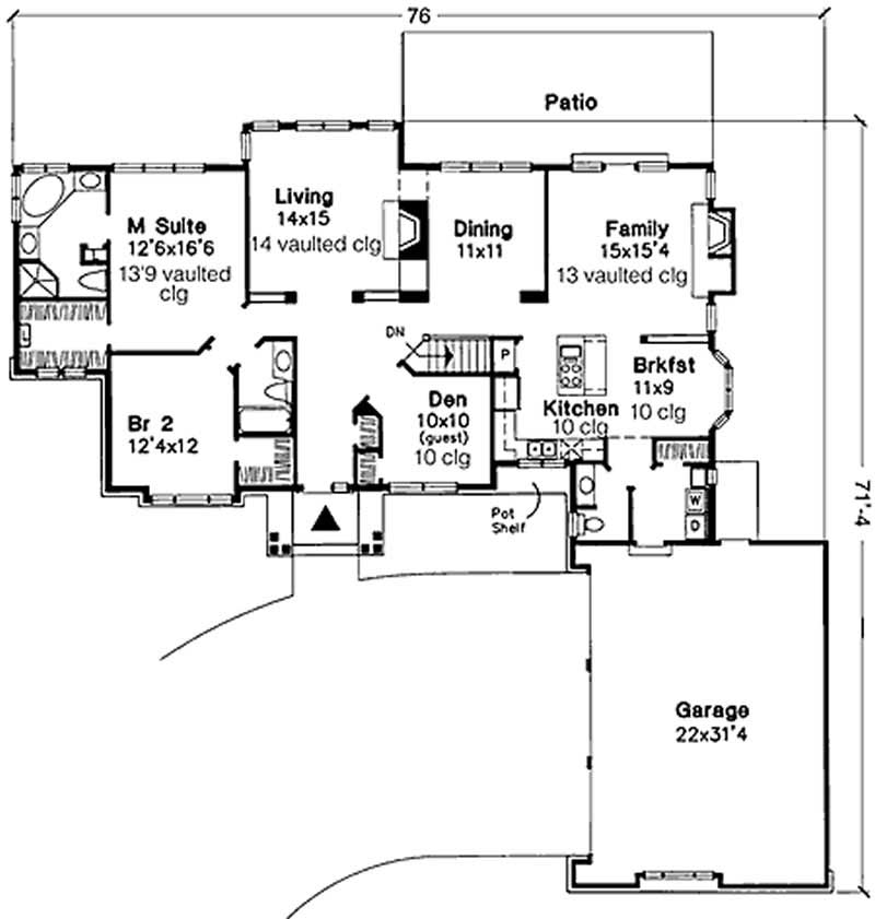
A stunning columned porch and bright stucco adorn the exterior of this attractive one-story home. The bold foyer leads to the formal living room, which is set off with decorative half-walls and a high plant shelf. The room is further enhanced by a 14-ft. vaulted ceiling and an energy-efficient fireplace. A 36-in.-high counter to the right of the fireplace is open to the adjoining dining room. The spacious kitchen, which includes a space-saving island cooktop, merges with the cheery bayed breakfast nook. The nearby family room boasts a 13-ft. vaulted ceiling, a nice fireplace and a French door...
Estimate your costs based on your location and materials.
All sales of house plans, modifications, and other products found on this site are final. No refunds or exchanges can be given once your order has begun the fulfillment process. Please see our Policies for additional information.
All plans offered on ThePlanCollection.com are designed to conform to the local building codes when and where the original plan was drawn.
The homes as shown in photographs and renderings may differ from the actual blueprints. For more detailed information, please review the floor plan images herein carefully.
Estimate your costs based on your location and materials.

