Estimate your costs based on your location and materials.
Yes! This plan can be customized—contact us for a free quote.



Yes! This plan can be customized—contact us for a free quote.
Please Note: There might be a 4-5 day delay in getting the sales orders out due to updates being made to the designer's plans.
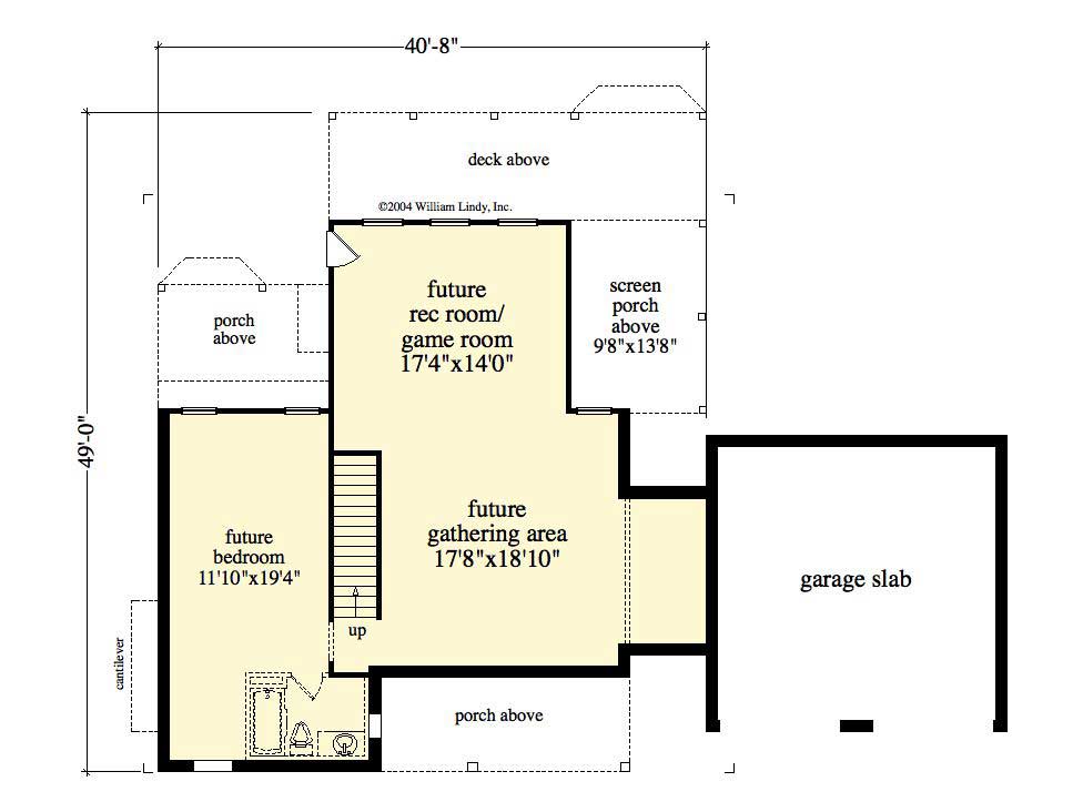
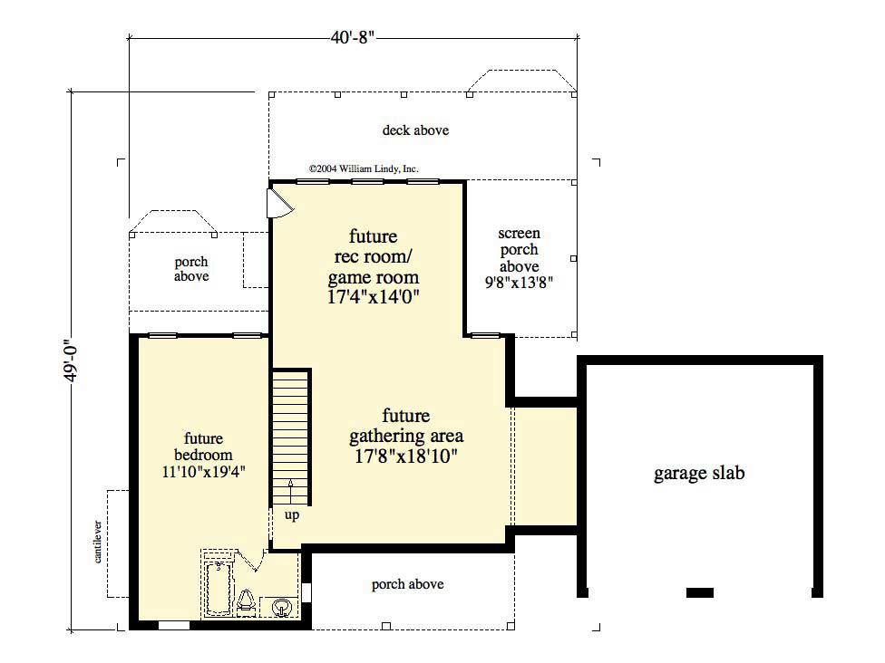
This is a cozy mountain cottage home or vacation home. It blends perfectly with the outdoors and has a covered front and rear porch, decks and a detached garage with a covered walkway. The main level showcases an open and inviting floor plan. The master suite is a comfortable size and has an adjoining porch to enjoy the outdoors. The master bath has a double vanity, separate garden tub and shower and walk-in closet. The kitchen is on the front of the house and has an open window to the dining room and two story great room. A screen porch and lots of windows make the great room bright and...
Estimate your costs based on your location and materials.
All sales of house plans, modifications, and other products found on this site are final. No refunds or exchanges can be given once your order has begun the fulfillment process. Please see our Policies for additional information.
All plans offered on ThePlanCollection.com are designed to conform to the local building codes when and where the original plan was drawn.
The homes as shown in photographs and renderings may differ from the actual blueprints. For more detailed information, please review the floor plan images herein carefully.
Estimate your costs based on your location and materials.

































