Estimate your costs based on your location and materials.
Yes! This plan can be customized—contact us for a free quote.


Yes! This plan can be customized—contact us for a free quote.
PLEASE NOTE!! For this designer, The PDF that comes with the PRINT Packages (5 set+PDF and 8 set+PDF) is NOT Modifiable - it is for printing ONLY! PLEASE NOTE!! Optional Foundations (foundations that cost extra money) will take 5-10 business days to complete.
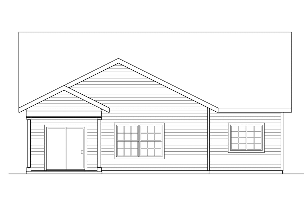
You will be captivated by this 2 story Bungalow Ranch style home. The house has a heated area of 1,763 square feet and a total of 2,347 square feet of finished and unfinished space under its roof.
In the inside, the living area is open to the dining area that is windowed on two sides and open to the kitchen on its fourth side. The 475 square-foot 2-car garage at the front provides easy access to the kitchen and living areas. The laundry facilities are mere steps away, in a good-size utility room with built-in cabinets.
The house...
Estimate your costs based on your location and materials.
All sales of house plans, modifications, and other products found on this site are final. No refunds or exchanges can be given once your order has begun the fulfillment process. Please see our Policies for additional information.
All plans offered on ThePlanCollection.com are designed to conform to the local building codes when and where the original plan was drawn.
The homes as shown in photographs and renderings may differ from the actual blueprints. For more detailed information, please review the floor plan images herein carefully.
Estimate your costs based on your location and materials.













