Estimate your costs based on your location and materials.
Yes! This plan can be customized—contact us for a free quote.


Yes! This plan can be customized—contact us for a free quote.
PLEASE NOTE!! For this designer, The PDF that comes with the PRINT Packages (5 set+PDF and 8 set+PDF) is NOT Modifiable - it is for printing ONLY! PLEASE NOTE!! Optional Foundations (foundations that cost extra money) will take 5-10 business days to complete.
If you're looking for something just a bit bigger than a small house, this transitional, country-style bungalow may be perfect for you and your family. The amazing house has a total heated area of 1716 square feet main and second levels. There's no wasted space in this comfortable home.
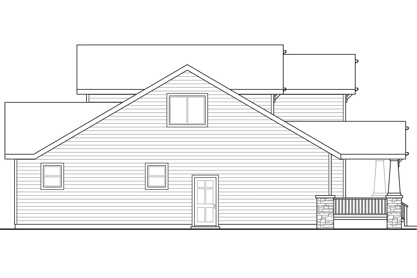
The varied rooflines and heights, together with the use of natural materials and stone cladding give this house its curb appeal.
A 457-square-foot 2-car garage located at the front of the house offers a secondary entry to the home and an entry from...
Estimate your costs based on your location and materials.
All sales of house plans, modifications, and other products found on this site are final. No refunds or exchanges can be given once your order has begun the fulfillment process. Please see our Policies for additional information.
All plans offered on ThePlanCollection.com are designed to conform to the local building codes when and where the original plan was drawn.
The homes as shown in photographs and renderings may differ from the actual blueprints. For more detailed information, please review the floor plan images herein carefully.
Estimate your costs based on your location and materials.











