Estimate your costs based on your location and materials.
Yes! This plan can be customized—contact us for a free quote.
Yes! This plan can be customized—contact us for a free quote.
Please Note! This designer does NOT ship paper copies to Canada. Please order your plans in electronic format (PDF or CAD)! USDA Approval is available for this plan. If interested, submit a modification request for a free quote. What is USDA Approval? Certification that a particular house plan meets the housing requirements of the US Department of Agriculture's Rural Housing Service. This is one of the requirements if you intend to apply for a loan through the Rural Housing Service.
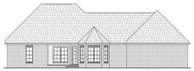
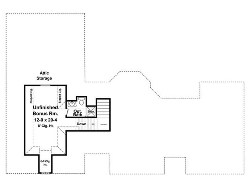
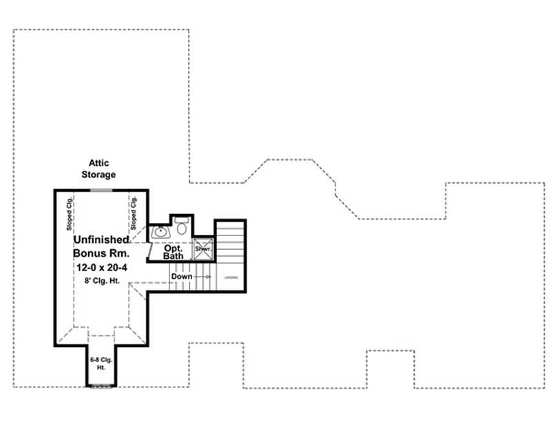
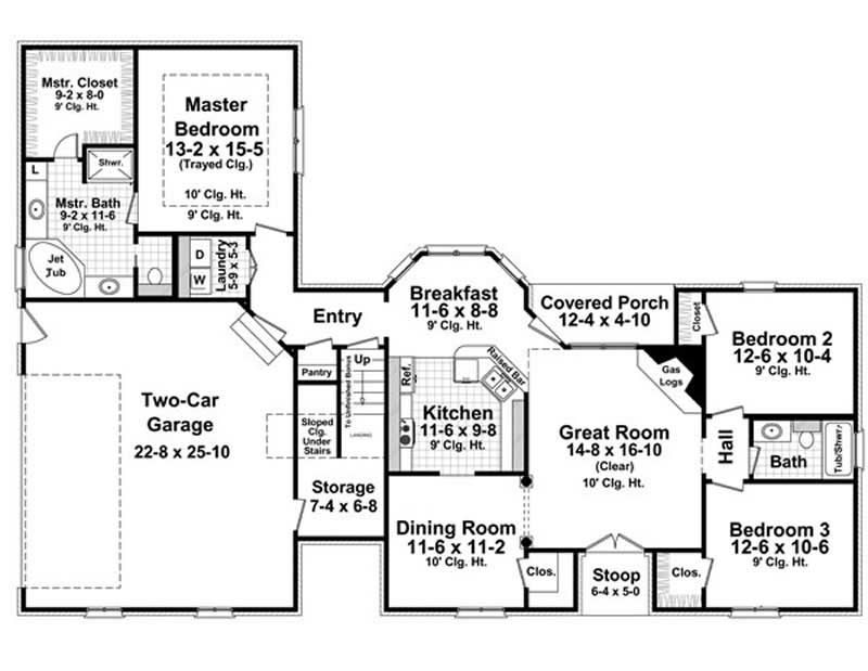
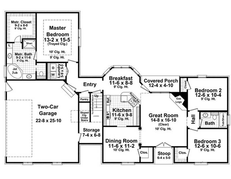
This beautiful Ranch with European influences has 3 bedrooms and 2 baths. The split floor layout provides privacy for the well appointed Master Suite which includes an oversized walk-in closet, trayed ceilings and Master Bath with jet tub, separate shower and dual vanities. The large Eat-In Kitchen includes a breakfast nook. The Great Room features 10' ceilings and a gas fireplace. A large 2 car garage includes additional storage space and an optional unfinished Bonus Room above the garage provides even more storage or finish it for a home...
Estimate your costs based on your location and materials.
All sales of house plans, modifications, and other products found on this site are final. No refunds or exchanges can be given once your order has begun the fulfillment process. Please see our Policies for additional information.
All plans offered on ThePlanCollection.com are designed to conform to the local building codes when and where the original plan was drawn.
The homes as shown in photographs and renderings may differ from the actual blueprints. For more detailed information, please review the floor plan images herein carefully.
Estimate your costs based on your location and materials.
