Estimate your costs based on your location and materials.
Yes! This plan can be customized—contact us for a free quote.

Yes! This plan can be customized—contact us for a free quote.
Great Room ceiling vaults to 14'-0"; the master bedroom ceiling vaults to 12'-6"; bedroom #2 and #3 ceilings vault to 9'-11".
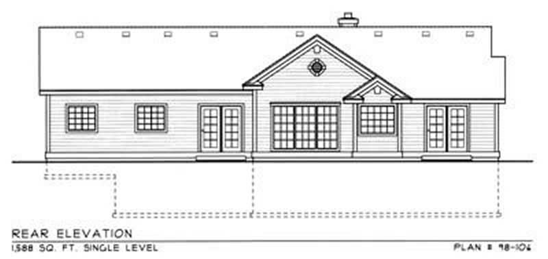
This simple and attractive ranch home delivers a lot in an under 1,600 living square feet package. From the classically designed front covered porch, step into the entry hall and then through an arch to the vaulted Great Room. A wall of windows defines the rear of the Great Room, making it an ideal plan for a view lot. A corner fireplace is there to warm things up on a cool night. The Great Room flows smoothly to the dining area with views and access to one of two rear patios. The open-concept kitchen has an island and boasts a skylight.
The main floor master has access...
Estimate your costs based on your location and materials.
All sales of house plans, modifications, and other products found on this site are final. No refunds or exchanges can be given once your order has begun the fulfillment process. Please see our Policies for additional information.
All plans offered on ThePlanCollection.com are designed to conform to the local building codes when and where the original plan was drawn.
The homes as shown in photographs and renderings may differ from the actual blueprints. For more detailed information, please review the floor plan images herein carefully.
Estimate your costs based on your location and materials.


