Estimate your costs based on your location and materials.
Yes! This plan can be customized—contact us for a free quote.

Yes! This plan can be customized—contact us for a free quote.
When ordering RRR, please know that it could take an additional 2-3 business days to complete BEFORE your order is sent out, regardless of the package ordered.
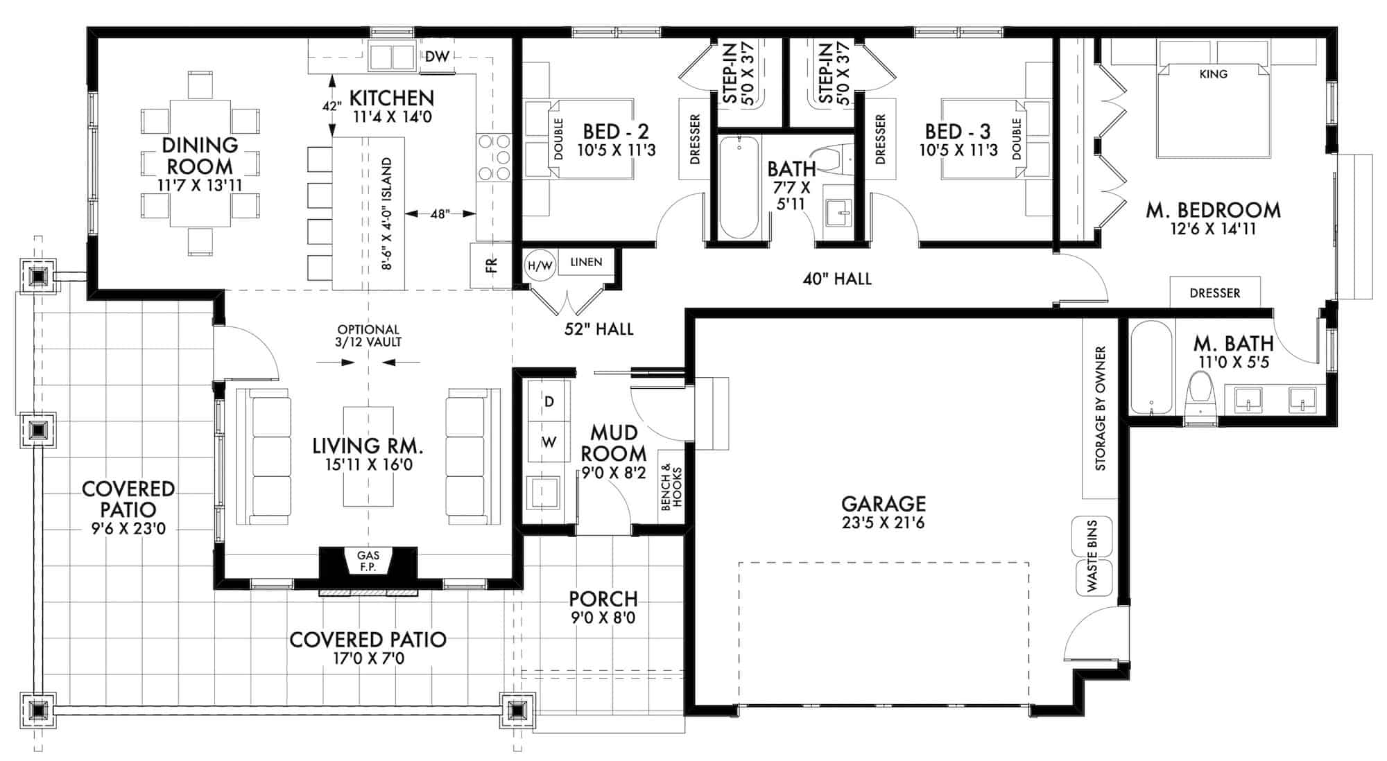
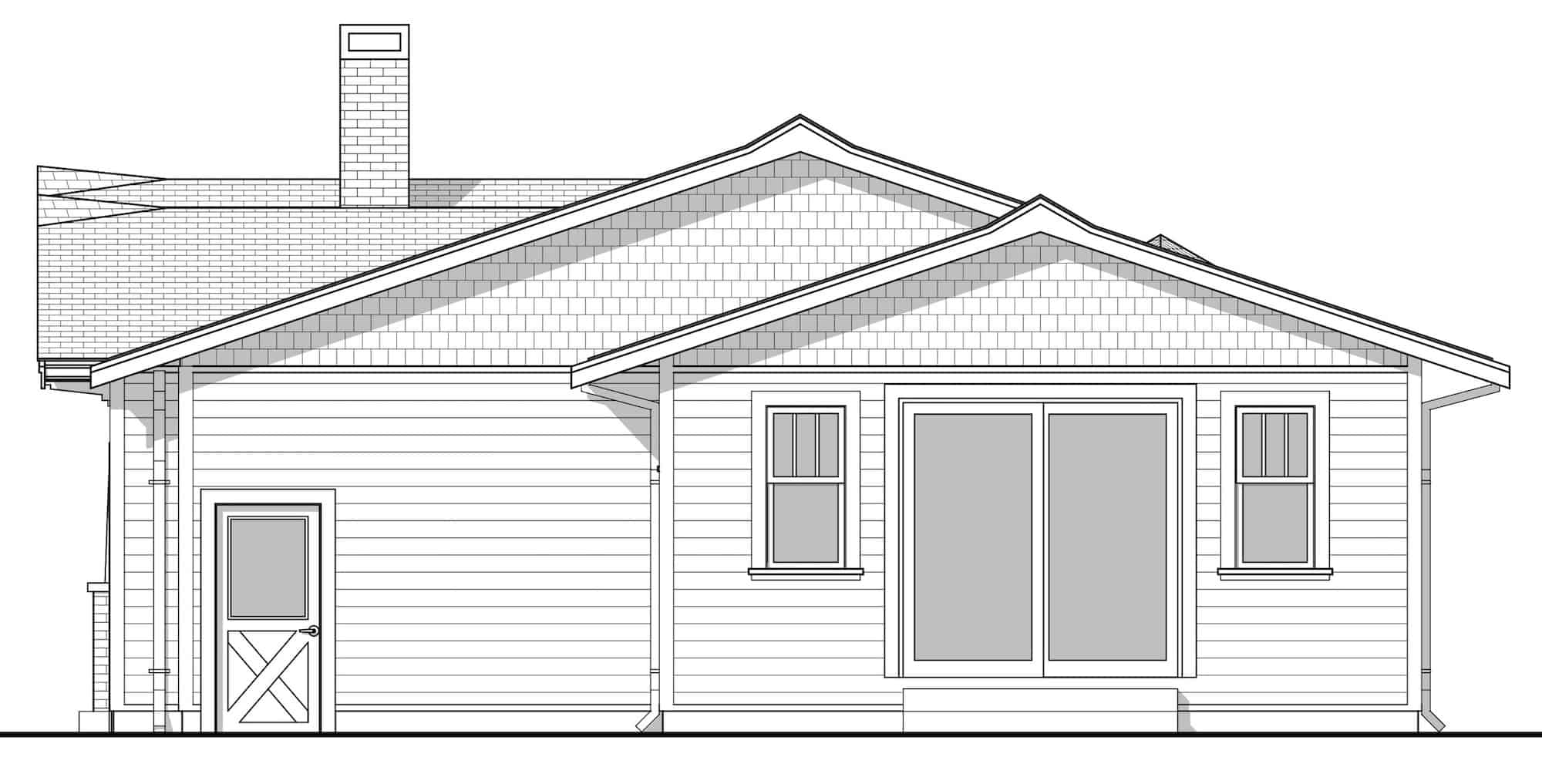
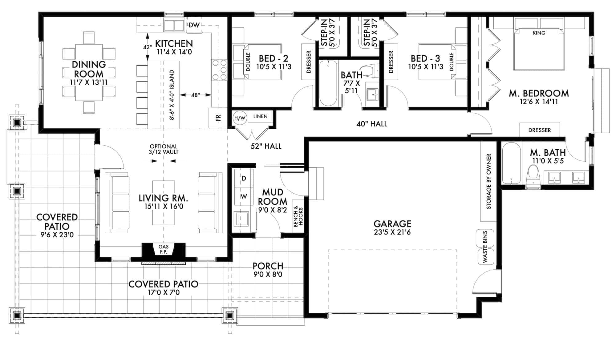
Come and see this inviting Ranch style house featuring the open and airy feel of the house with its variety of windows, making the rooms brilliant and bright. The pleasant covered wrap around porch with gracious width is certain to be a spot for gathering on warm evenings. The house covers a total heated and cooled area of 1540 square feet. You will also love these amenities:
• Fireplace in the living room
• Mudroom with a bench
• Spacious porch
• Lots of storage space
Estimate your costs based on your location and materials.
All sales of house plans, modifications, and other products found on this site are final. No refunds or exchanges can be given once your order has begun the fulfillment process. Please see our Policies for additional information.
All plans offered on ThePlanCollection.com are designed to conform to the local building codes when and where the original plan was drawn.
The homes as shown in photographs and renderings may differ from the actual blueprints. For more detailed information, please review the floor plan images herein carefully.
Estimate your costs based on your location and materials.





