Estimate your costs based on your location and materials.
Yes! This plan can be customized—contact us for a free quote.



Yes! This plan can be customized—contact us for a free quote.
When ordering RRR, please know that it could take an additional 2-3 business days to complete BEFORE your order is sent out, regardless of the package ordered.
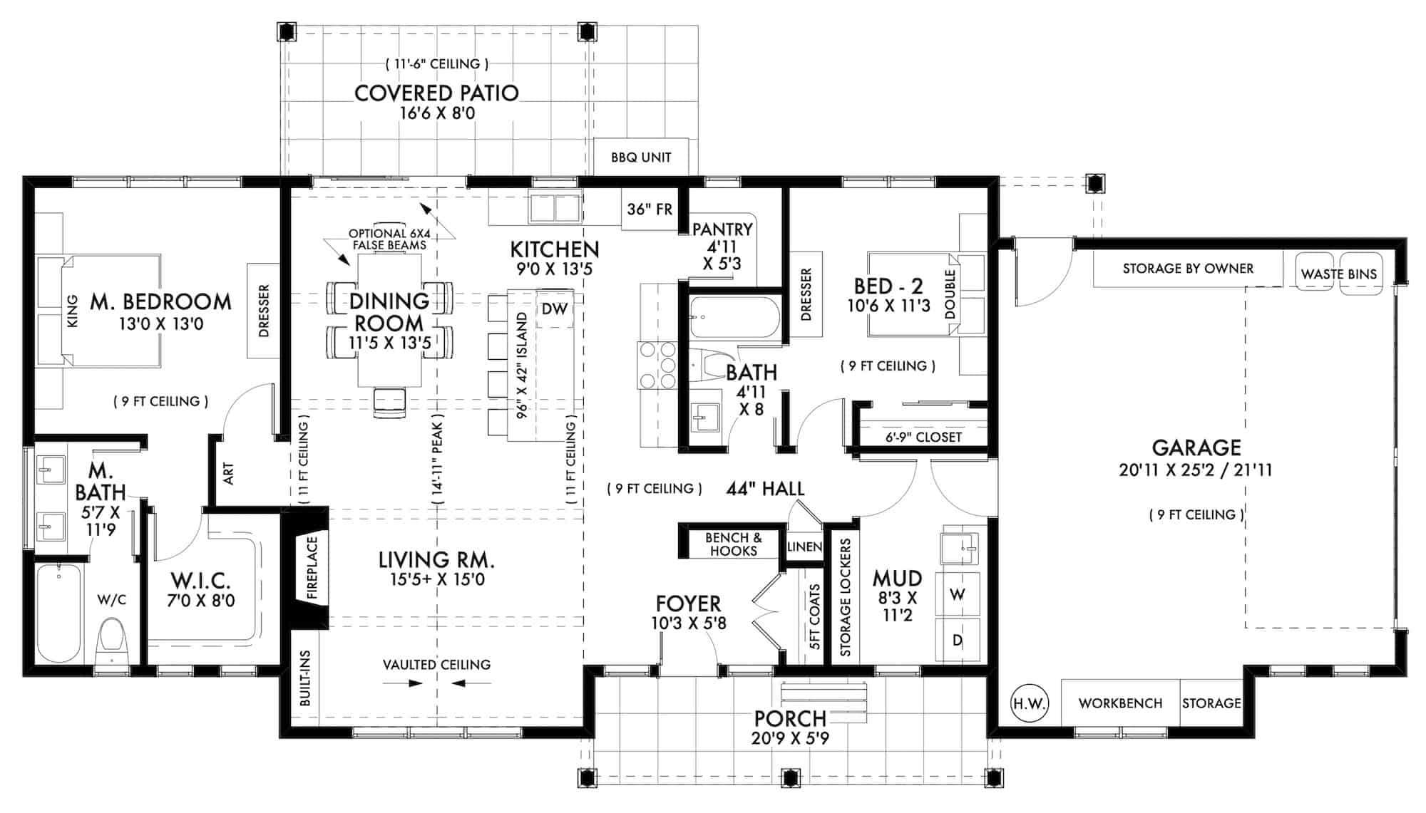
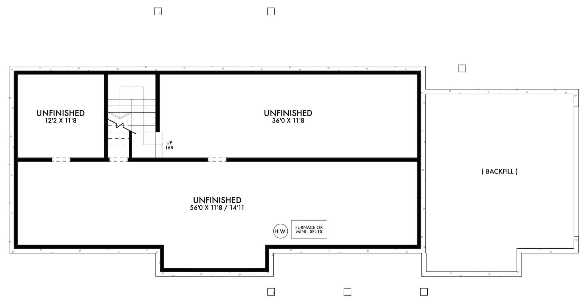
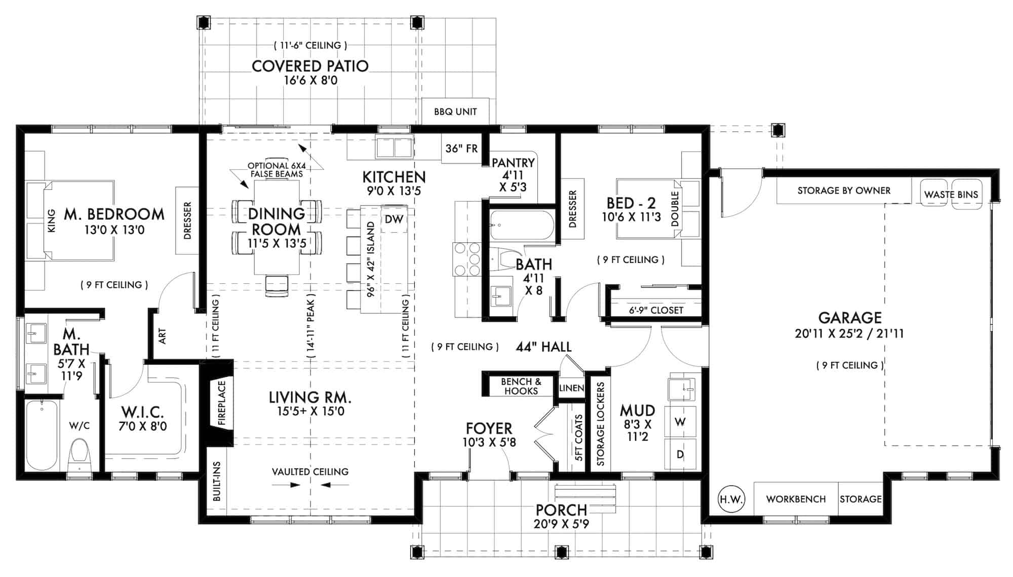
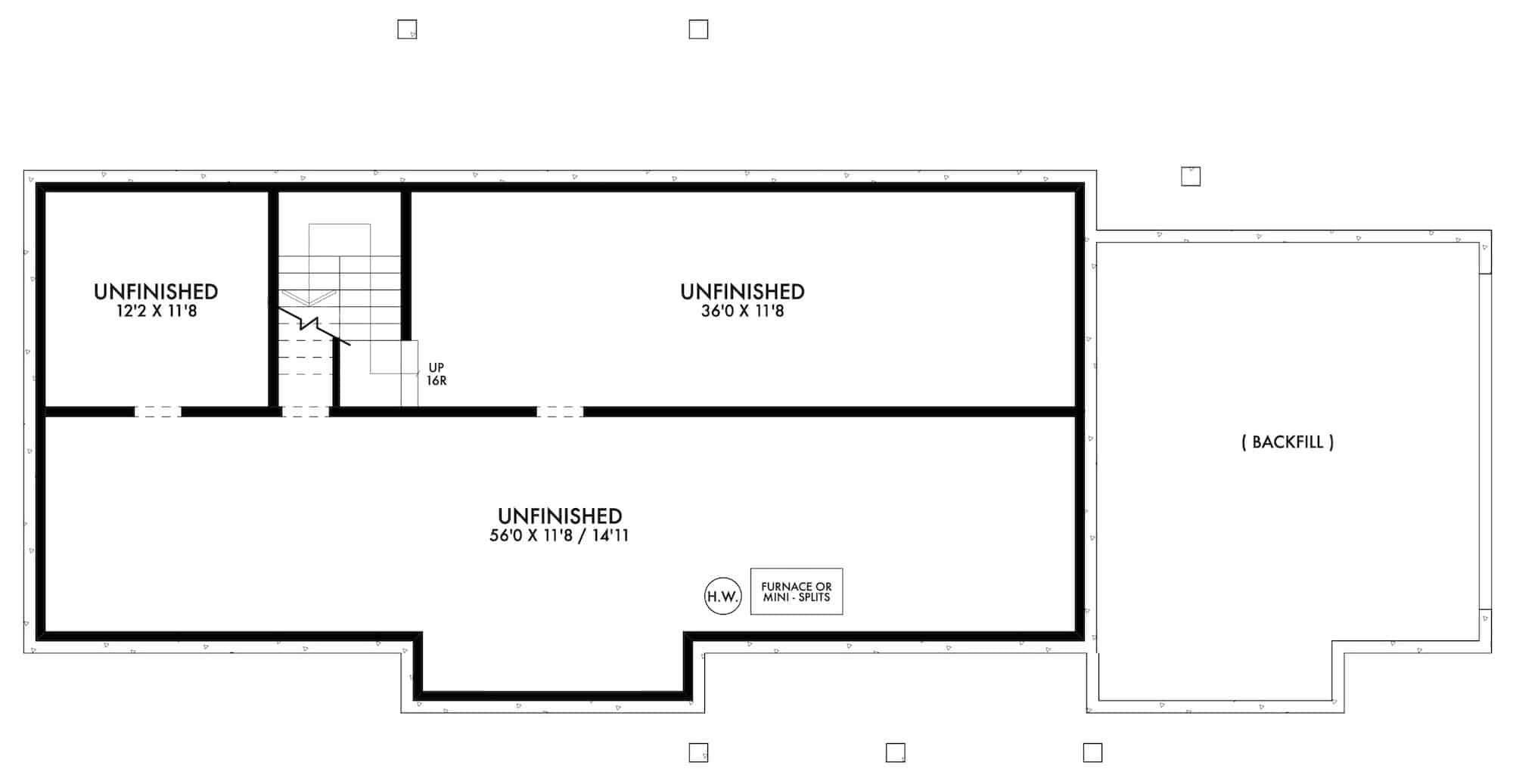
This Ranch-Country style home that has a total living area of 1400 square feet will surely captivate your heart. The impressive home, with its cozy covered entry and simple yet elegant design, features spaces that are bound to please all members of the family. Enjoy these amenties such as:
• Fireplace in the living room
• Vaulted ceiling
• Spacious walk-in kitchen pantry
• Mudroom
Estimate your costs based on your location and materials.
All sales of house plans, modifications, and other products found on this site are final. No refunds or exchanges can be given once your order has begun the fulfillment process. Please see our Policies for additional information.
All plans offered on ThePlanCollection.com are designed to conform to the local building codes when and where the original plan was drawn.
The homes as shown in photographs and renderings may differ from the actual blueprints. For more detailed information, please review the floor plan images herein carefully.
Estimate your costs based on your location and materials.










