Estimate your costs based on your location and materials.
Yes! This plan can be customized—contact us for a free quote.


Yes! This plan can be customized—contact us for a free quote.
PLEASE NOTE!! For this designer, The PDF that comes with the PRINT Packages (5 set+PDF and 8 set+PDF) is NOT Modifiable - it is for printing ONLY!
PLEASE NOTE!! Optional Foundations (foundations that cost extra money) will take 5-10 business days to complete.
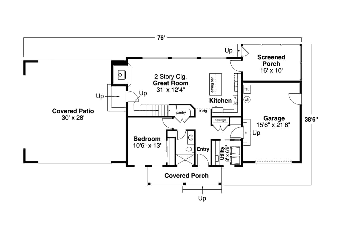
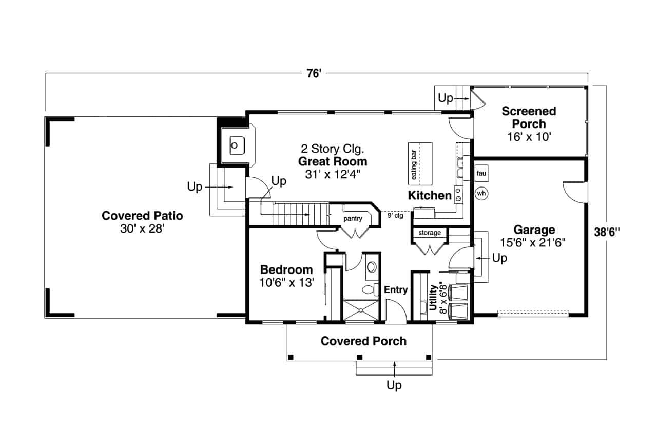
This single-family Farmhouse Style House Plan has 1468 living square feet, 3 bedrooms, and 2 bathrooms.
Enjoy the country living feel of this Farmhouse style home that will definitely be your family’s first choice in the list of your dream home. An impressive covered porch embraced the house on its lengthy front facade. The gracious 1.5-story floor plan has 1468 square feet of heated and cooled living space with awesome amenities :
• Fireplace in the Great Room
• Open concept in the Great Room
• Spacious walk-in kitchen pantry
• Mudroom with a bench
• Lots of storage...
Estimate your costs based on your location and materials.
All sales of house plans, modifications, and other products found on this site are final. No refunds or exchanges can be given once your order has begun the fulfillment process. Please see our Policies for additional information.
All plans offered on ThePlanCollection.com are designed to conform to the local building codes when and where the original plan was drawn.
The homes as shown in photographs and renderings may differ from the actual blueprints. For more detailed information, please review the floor plan images herein carefully.
Estimate your costs based on your location and materials.





