Estimate your costs based on your location and materials.
Yes! This plan can be customized—contact us for a free quote.


Yes! This plan can be customized—contact us for a free quote.
PLEASE NOTE! If you order an optional foundation and a materials list, the materials list will NOT include the optional foundation, only the standard foundation. The designer can provide an updated materials list for a fee, so please ask for a quote! ATTENTION! All CAD orders include a PDF
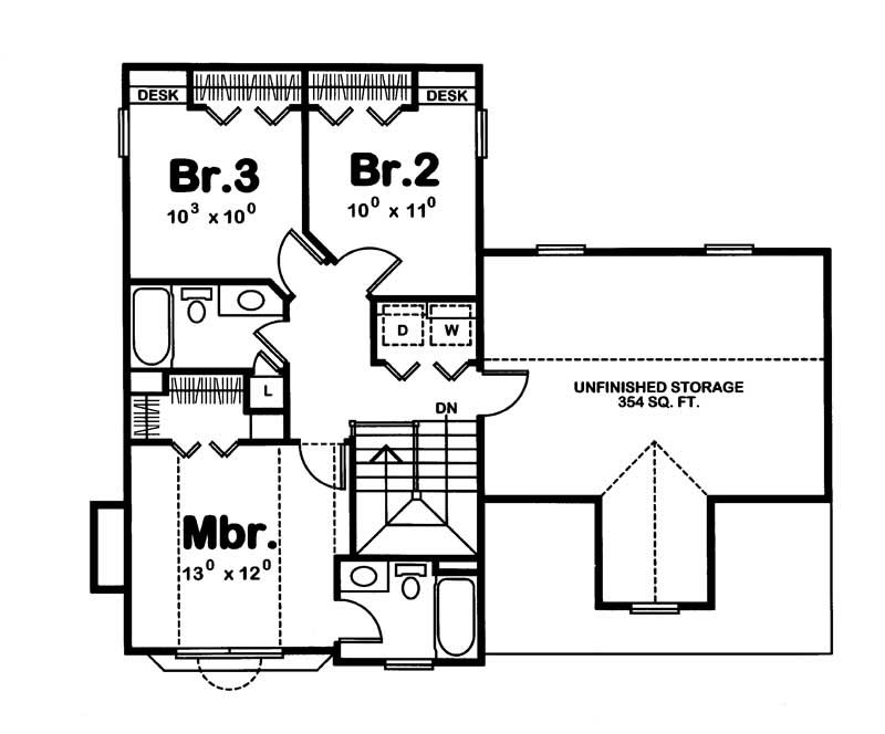
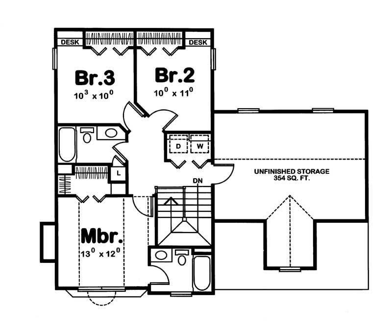
This lovely Country-style home plan with Farmhouse influences (House Plan #120-1368) has a small footprint – but over 1290 square feet of living space. The two-story floor plan includes 3 bedrooms, 2 baths, 1 half bath, and an attached garage.
Walk into the home plan from the covered front porch into the open floor plan. The the left and right are the dining area and kitchen, respecively, with the living room directly in front, past the stairs and half bath.
The house plan's three bedrooms, including the master suite, are upstairs. The...
Estimate your costs based on your location and materials.
All sales of house plans, modifications, and other products found on this site are final. No refunds or exchanges can be given once your order has begun the fulfillment process. Please see our Policies for additional information.
All plans offered on ThePlanCollection.com are designed to conform to the local building codes when and where the original plan was drawn.
The homes as shown in photographs and renderings may differ from the actual blueprints. For more detailed information, please review the floor plan images herein carefully.
Estimate your costs based on your location and materials.



