Estimate your costs based on your location and materials.
Yes! This plan can be customized—contact us for a free quote.



Yes! This plan can be customized—contact us for a free quote.
PLEASE NOTE: 5 sets and 8 sets include a PDF as well.
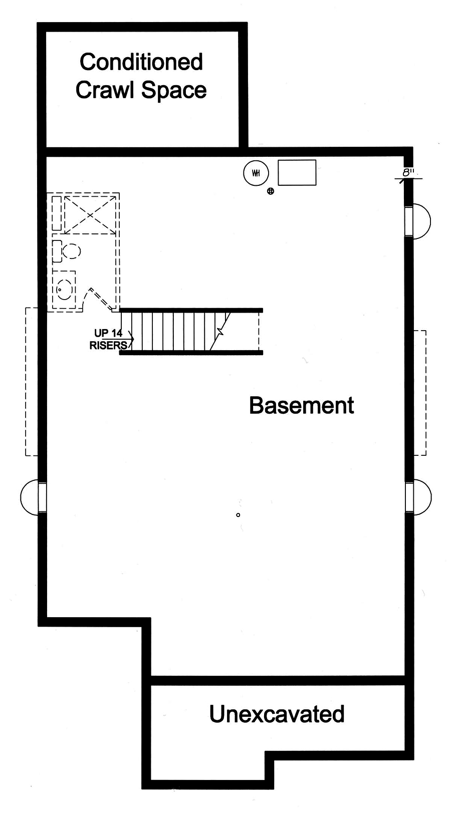
This lovely Craftsman style home plan with Cottage influences (House Plan #169-1160) has 1403 square feet of living space. The 1 story floor plan includes 3 bedrooms. Note that the detached garage plan is included with the house plans.
The plan comes standard with crawlspace and full basement foundation options. The basement option is under the full house, is 7’10” high, and is the same square footage of the first floor. The crawlspace is conditioned: it has a gravel floor with a vapor barrier and has ductwork running through it as a basement...
Estimate your costs based on your location and materials.
All sales of house plans, modifications, and other products found on this site are final. No refunds or exchanges can be given once your order has begun the fulfillment process. Please see our Policies for additional information.
All plans offered on ThePlanCollection.com are designed to conform to the local building codes when and where the original plan was drawn.
The homes as shown in photographs and renderings may differ from the actual blueprints. For more detailed information, please review the floor plan images herein carefully.
Estimate your costs based on your location and materials.







