Estimate your costs based on your location and materials.
Yes! This plan can be customized—contact us for a free quote.

Yes! This plan can be customized—contact us for a free quote.
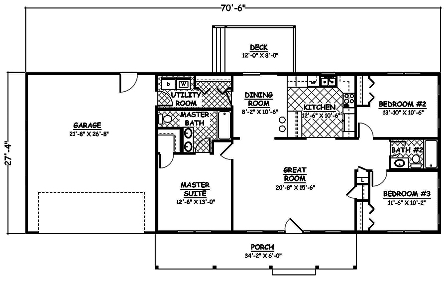
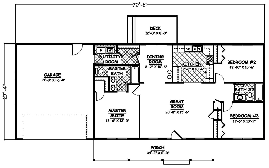
Looking for a spacious and affordable country ranch home? This 3-bedroom, 1324 living sq ft plan is perfect for those who want the best of both worlds. The split bedroom layout gives you privacy when you need it, while the open floor plan creates a more spacious feel than its size would suggest. The eating bar in the kitchen is perfect for entertaining, and the attached 2-car garage makes parking a breeze. The large windows allow plenty of light inside, and the rear deck is perfect for spending time outdoors. The master suite features a walk-in closet and private bath with his-and-her sink...
Estimate your costs based on your location and materials.
All sales of house plans, modifications, and other products found on this site are final. No refunds or exchanges can be given once your order has begun the fulfillment process. Please see our Policies for additional information.
All plans offered on ThePlanCollection.com are designed to conform to the local building codes when and where the original plan was drawn.
The homes as shown in photographs and renderings may differ from the actual blueprints. For more detailed information, please review the floor plan images herein carefully.
Estimate your costs based on your location and materials.





