Estimate your costs based on your location and materials.
Yes! This plan can be customized—contact us for a free quote.

Yes! This plan can be customized—contact us for a free quote.
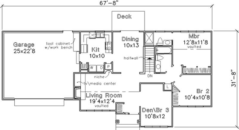
The interior of this one-story wonder is light and bright, with a vaulted ceiling greeting guests entering the living room. There is also a fireplace with built-in TV/media cabinets in the living room. To the right of the entry double doors introduce the den, a great spot for quiet reading or to house overnight guests on a day-bed. The kitchen is well situated between the dining room, with sliders to the rear yard and the garage, for quick grocery access. The master bedroom offers the excitement of a vaulted ceiling and includes a private bath with a shower.
Estimate your costs based on your location and materials.
All sales of house plans, modifications, and other products found on this site are final. No refunds or exchanges can be given once your order has begun the fulfillment process. Please see our Policies for additional information.
All plans offered on ThePlanCollection.com are designed to conform to the local building codes when and where the original plan was drawn.
The homes as shown in photographs and renderings may differ from the actual blueprints. For more detailed information, please review the floor plan images herein carefully.
Estimate your costs based on your location and materials.

