2-Bedroom, 1093 Sq Ft Vacation Homes Plan with Walk In Closet

Front elevation of Vacation Homes home (ThePlanCollection: House Plan #131-1147)

Images/Plans copyrighted by designer. Photos may reflect homeowner modifications.

About House Plan #131-1147

Sq Ft
1093
Sq Ft
Bedrooms
2
Bedrooms
Bathroom
1
Baths
Half Baths
1
Half Baths
Bedrooms
0
Cars
Bedrooms
2
Stories
Bedrooms
22' 0'
Width
Bedrooms
46
Depth
Starting at$750.00What's included
STEP 1Bedrooms
STEP 2Bedrooms
STEP 3Bedrooms

Subtotal:$0
BedroomsBest Price Guaranteed
Plan Collection

How much will it cost to build?

Estimate your costs based on your location and materials.

Free Cost Instant Estimator

Floor Plans

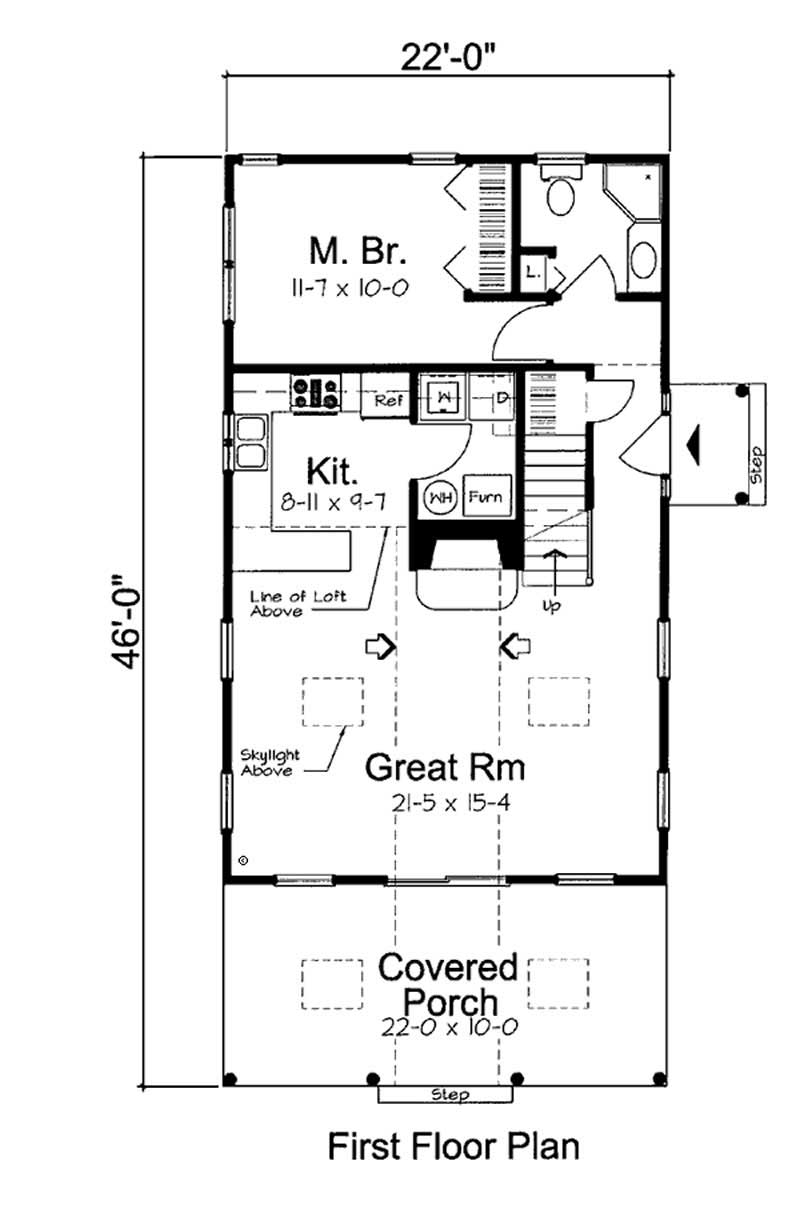
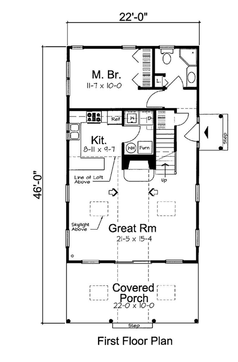
MAIN LEVEL FLOOR PLAN
MAIN LEVEL FLOOR PLAN
SECOND LEVEL FLOOR PLAN
SECOND LEVEL FLOOR PLAN
Plan Collection

Can I modify this plan?

Yes! This plan can be customized—contact us for a free quote.

House Plan Description

The side covered porch of this home encourages the occupants to enjoy the outdoors. The covered porch and great room both receive an abundance of natural light from overhead skylights. In the great room, a soaring vaulted ceiling enhances the home’s sense of airiness. A loft overlooks the great room, and opts as a terrific computer/study area.

Home Details

Summary
Plan #:131-1147
Starting at:$750.00
Floors:2
Bedrooms:2
Full Baths:1
Half Baths:1
Garage:
Square Footage
Heated Area:1093 Sq. Ft.
First Floor:792 Sq. Ft.
Second Floor:301 Sq. Ft.
Unheated Area:
Dimensions
Ridge Height:22' 6''
Architectural Styles
Roofing Type
Gable
Roof Pitch
12/12
Ceiling Height
8 Foot Ceiling
Special Feature
Main Level Laundry
Fireplaces
One Fireplace
Exterior Wall Framing
2x4
Building Lot Type
Narrow Lot Design

What’s Included

Most plan sets include the following:

icon text-secondary-400 includedExterior elevations

icon text-secondary-400 includedFoundation plans

icon text-secondary-400 includedInterior elevations

icon text-secondary-400 includedElectrical layout

icon text-secondary-400 includedDetailed house floor plans

What’s Not Included

These items are  NOT included:

icon text-secondary-400 includedArchitectural or Engineering Stamp - handled locally if required.

icon text-secondary-400 includedSite Plan - handled locally when required.

icon text-secondary-400 includedMechanical Drawings (location of heating and air equipment and ductwork) - your subcontractors handle this.

icon text-secondary-400 includedPlumbing Drawings (drawings showing the actual plumbing pipe sizes and locations) - your subcontractors handle this.

icon text-secondary-400 includedEnergy calculations - handled locally when required.

Related House Plans

Plan Collection
Plan Collection
Plan Collection
Plan#176-1003
Starting at$600
1122
Sq Ft
2
Story
2
Bed
1
Bath
0
Car
Plan Collection
Plan Collection
Plan Collection
Plan#177-1027
Starting at$1195
849
Sq Ft
2
Story
2
Bed
1
Bath
0
Car
Plan Collection
Plan Collection
Plan Collection
Plan#126-1237
Starting at$1275
996
Sq Ft
2
Story
2
Bed
1.5
Bath
2
Car
View All

Other Plans By This Designer

Plan Collection
Plan Collection
Plan Collection
Plan#131-1047
Starting at$800
1792
Sq Ft
1
Story
3
Bed
2
Bath
0
Car
Plan Collection
Plan Collection
Plan Collection
Plan#131-1013
Starting at$900
2083
Sq Ft
2
Story
3
Bed
2.5
Bath
2
Car
Plan Collection
Plan Collection
Plan Collection
Plan#131-1243
Starting at$600
972
Sq Ft
2
Story
3
Bed
1
Bath
0
Car