4-Bedroom, 3468 Sq Ft Contemporary Plan with Kitchen Island

Front Elevation of this Contemporary House (#132-1468) at The Plan Collection.

Images/Plans copyrighted by designer. Photos may reflect homeowner modifications.

About House Plan #132-1468

Sq Ft
3468
Sq Ft
Bedrooms
4
Bedrooms
Bathroom
3
Baths
Half Baths
0
Half Baths
Bedrooms
2
Cars
Bedrooms
2
Stories
Bedrooms
79' 10'
Width
Bedrooms
52
Depth
Starting at$1480.00What's included
STEP 1Bedrooms
STEP 2Bedrooms
STEP 3Bedrooms

Subtotal:$0
BedroomsBest Price Guaranteed
Plan Collection

How much will it cost to build?

Estimate your costs based on your location and materials.

Free Cost Instant Estimator

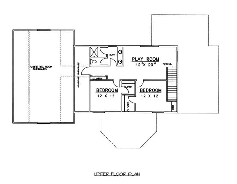
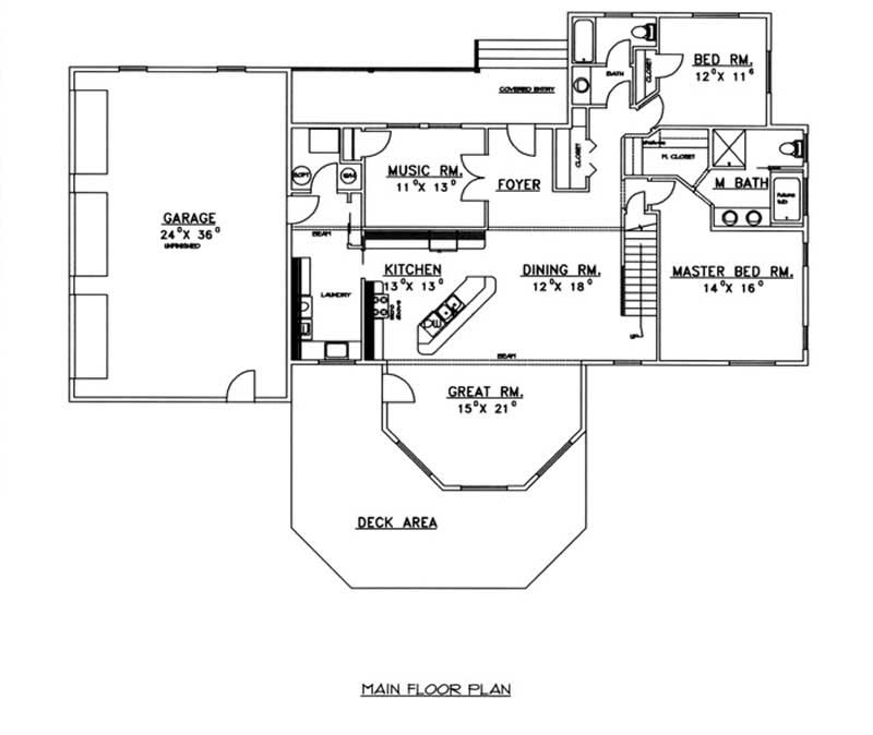
Floor Plans

FLOOR PLAN
FLOOR PLAN
SECOND FLOOR PLAN
SECOND FLOOR PLAN
Plan Collection

Can I modify this plan?

Yes! This plan can be customized—contact us for a free quote.

Additional Notes from Designer

PLEASE NOTE! The CAD - Unlimited package is NOT an unlimited license - it is a license to build up to 5 homes. ATTENTION! Printed sets can ONLY be sent via ground shipping. NO priority or express shipping is available. ATTENTION! Printed sets can ONLY be sent by ground - NO priority or express shipping on printed sets!

House Plan Description

*Standard Frame Construction *3 Car Garage *Play Room *Future Recreation Room *Deck *Kitchen Island *Double Sinks In Master Bathroom *Laundry Room *Music Room *Covered Entry Porch *Large Great Room

Home Details

Summary
Plan #:132-1468
Starting at:$1480.00
Floors:2
Bedrooms:4
Full Baths:3
Half Baths:0
Garage:
Square Footage
Heated Area:3468 Sq. Ft.
First Floor:1983 Sq. Ft.
Second Floor:1053 Sq. Ft.
Unheated Area:
Bonus Room:432 Sq. Ft.
Dimensions
Width:79' 10''
Depth:52' 6''
Ridge Height:27-4' 0''
Architectural Styles
Exterior Wall Material
BrickWood Siding
Roof Pitch
6/12
Ceiling Height
9 Foot Ceiling
Garage Type
Attached Garage
Exterior Wall Framing
2x6
Kitchen Features
Kitchen Island

What’s Included

Most plan sets include the following:

icon text-secondary-400 includedExterior elevations: shows the home on all four sides, calls out exterior finishes, rooflines, window and door locations.

icon text-secondary-400 includedFloor plans: includes interior and exterior dimensions, window/door schedule, wall framing details.

icon text-secondary-400 includedFoundation plan: shows footing, stem wall, and slab placement, including all connection details.

icon text-secondary-400 includedFloor and roof framing plans show truss/rafter placements, including all beams/connection details.

icon text-secondary-400 includedCross-sections: cut-through view of the structure from roof to foundation, shows framing, plate heights, insulation, etc.

icon text-secondary-400 includedElectrical layout

icon text-secondary-400 includedGeneral notes/details to cover the entirety of the project

What’s Not Included

These items are  NOT included:

icon text-secondary-400 includedArchitectural or Engineering Stamp - handled locally if required.

icon text-secondary-400 includedSite Plan - handled locally when required.

icon text-secondary-400 includedMechanical Drawings (location of heating and air equipment and ductwork) - your subcontractors handle this.

icon text-secondary-400 includedPlumbing Drawings (drawings showing the actual plumbing pipe sizes and locations) - your subcontractors handle this.

icon text-secondary-400 includedEnergy calculations - handled locally when required.

Related House Plans

Plan Collection
Plan Collection
Plan Collection
Plan#161-1145
Starting at$2650
3907
Sq Ft
2
Story
4
Bed
3.5
Bath
3
Car
Plan Collection
Plan Collection
Plan Collection
Plan#168-1099
Starting at$2600
2609
Sq Ft
2
Story
4
Bed
3.5
Bath
3
Car
Plan Collection
Plan Collection
Plan Collection
Plan#116-1028
Starting at$0
3469
Sq Ft
2
Story
4
Bed
3.5
Bath
2
Car
View All

Other Plans By This Designer

Plan Collection
Plan Collection
Plan Collection
Plan#132-1107
Starting at$1205
689
Sq Ft
1
Story
1
Bed
1
Bath
0
Car
Plan Collection
Plan Collection
Plan Collection
Plan#132-1694
Starting at$1370
1920
Sq Ft
2
Story
3
Bed
3
Bath
3
Car
Plan Collection
Plan Collection
Plan Collection
Plan#132-1709
Starting at$1480
3391
Sq Ft
2
Story
3
Bed
3.5
Bath
0
Car