Estimate your costs based on your location and materials.
Yes! This plan can be customized—contact us for a free quote.


Yes! This plan can be customized—contact us for a free quote.
CHRISTMAS: CLOSED Wednesday, December 24th thru Friday, December 26th. We will return Monday, December 29th at normal business hours. NEW YEARS: CLOSED Wednesday, December 31st thru Friday, January 2nd. We will return Monday, January 5th, 2026 at normal business hours. We wish you all a Merry Christmas and a Happy New Years! Enjoy your time with family and friends. All orders and requests submitted during this time, will be fulfilled when we resume office hours.
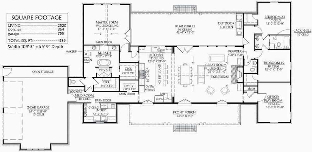
Enjoy the country living feel of this Farmhouse style home with a charming Rustic-Contemporary treatment. We're sure it will be on your family’s list of dream-home possibilities once they see it – and it may well rise to the top! The impressive covered porch with natural timber accents embraces the house on its lengthy front facade, welcoming you home and beckoning you to "rest and sit a spell." The gracious 1-story floor plan has 2520 square feet of heated and cooled living space and includes 3 bedrooms.
Estimate your costs based on your location and materials.
All sales of house plans, modifications, and other products found on this site are final. No refunds or exchanges can be given once your order has begun the fulfillment process. Please see our Policies for additional information.
All plans offered on ThePlanCollection.com are designed to conform to the local building codes when and where the original plan was drawn.
The homes as shown in photographs and renderings may differ from the actual blueprints. For more detailed information, please review the floor plan images herein carefully.
Estimate your costs based on your location and materials.




