Estimate your costs based on your location and materials.
Yes! This plan can be customized—contact us for a free quote.



Yes! This plan can be customized—contact us for a free quote.
Please Note: There might be a 4-5 day delay in getting the sales orders out due to updates being made to the designer's plans.
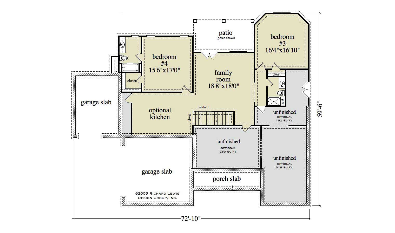
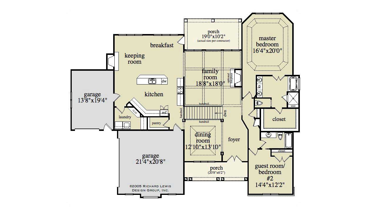
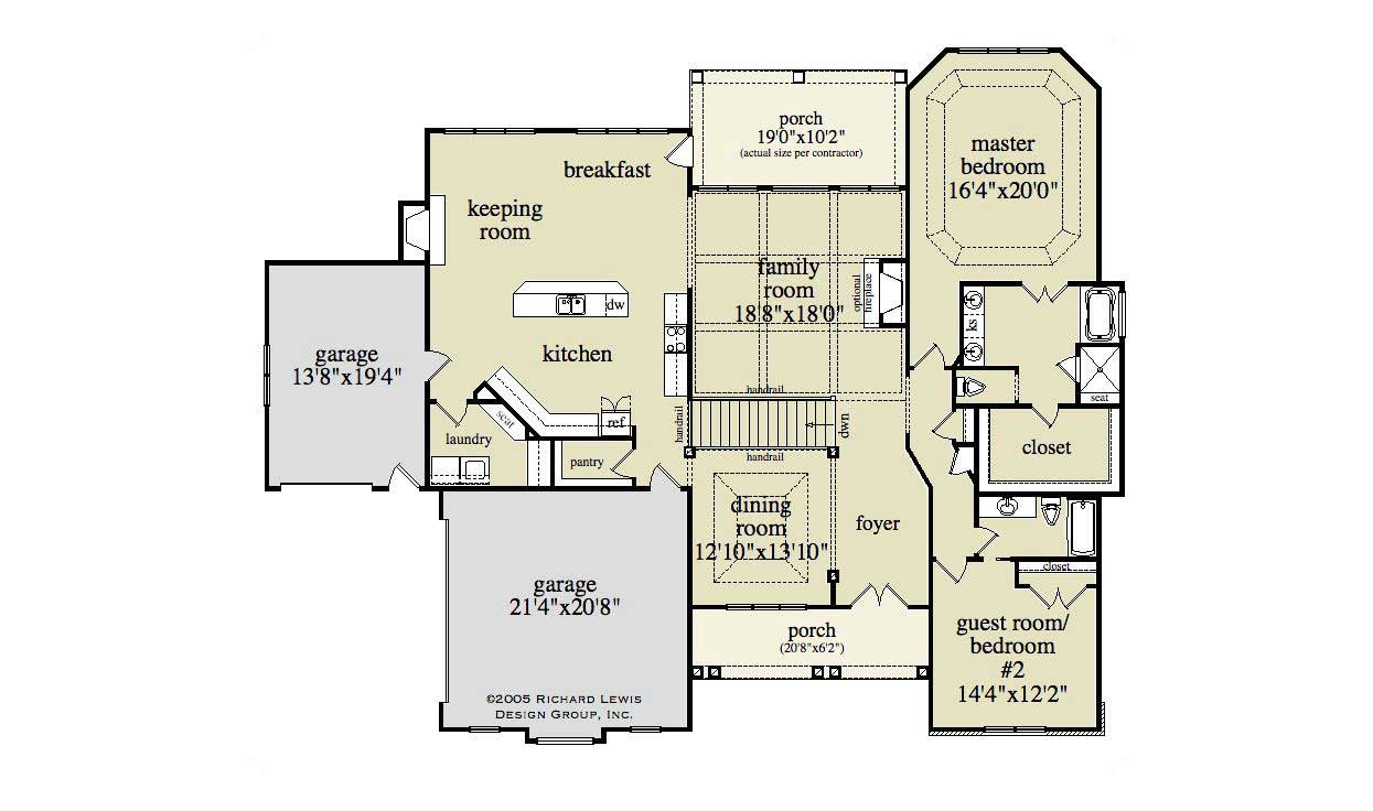
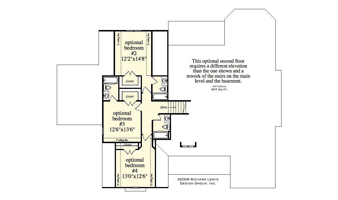
This mountain home has a winning elevation and floor plan. It is actually bigger than it looks with its 3rd garage bay (1 car bay and a 2 car bay) covered front porch and distinct elevation. The exterior has stacked stone, board and batten, hardi-plank siding and cedar shakes. The floor plan is open and inviting. It has a master bedroom suite on the main level and a guest bedroom and bath that could also be a study. The house is great for entertaining with its keeping room, breakfast and kitchen open to the family room which has a coffered ceiling. There is a fireplace in the keeping room and...
Estimate your costs based on your location and materials.
All sales of house plans, modifications, and other products found on this site are final. No refunds or exchanges can be given once your order has begun the fulfillment process. Please see our Policies for additional information.
All plans offered on ThePlanCollection.com are designed to conform to the local building codes when and where the original plan was drawn.
The homes as shown in photographs and renderings may differ from the actual blueprints. For more detailed information, please review the floor plan images herein carefully.
Estimate your costs based on your location and materials.








