2-Bedroom, 3887 Sq Ft Country Plan with Split Master Bedroom

Main image for house plan # 20325

Images/Plans copyrighted by designer. Photos may reflect homeowner modifications.

About House Plan #100-1022

Sq Ft
3887
Sq Ft
Bedrooms
2
Bedrooms
Bathroom
2
Baths
Half Baths
0
Half Baths
Bedrooms
3
Cars
Bedrooms
2
Stories
Bedrooms
116' 2'
Width
Bedrooms
87
Depth
Starting at$2000.00What's included
STEP 1Bedrooms
STEP 2Bedrooms
STEP 3Bedrooms

Subtotal:$0
BedroomsBest Price Guaranteed
Plan Collection

How much will it cost to build?

Estimate your costs based on your location and materials.

Free Cost Instant Estimator

Floor Plans

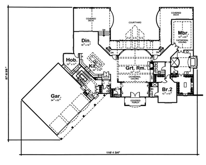
MAIN LEVEL FLOOR PLAN
MAIN LEVEL FLOOR PLAN
SECOND LEVEL FLOOR PLAN
SECOND LEVEL FLOOR PLAN
Plan Collection

Can I modify this plan?

Yes! This plan can be customized—contact us for a free quote.

Additional Notes from Designer

The CAD File formats are drawn in SoftPlan. PLEASE NOTE: Plans by this designer do NOT come with FRAMING! This designer does not do ICF.

House Plan Description

This house plan is a two story, country house plan with 3887 total living square feet. This home plan has 2 bedrooms, 2 baths, and an attached 3 car garage. The entry of this house plan welcomes you into the great room, to the left is the kitchen and dining area, to the right is the master bedroom and bath as well as the other bedroom. The upper floor plan has an office as well as a library. This is a perfect place to find refuge from the rest of the house and lose yourself in work or a great book.

Home Details

Summary
Plan #:100-1022
Starting at:$2000.00
Floors:2
Bedrooms:2
Full Baths:2
Half Baths:0
Garage:
Square Footage
Heated Area:3887 Sq. Ft.
First Floor:2872 Sq. Ft.
Second Floor:1015 Sq. Ft.
Unheated Area:
Garage:1128 Sq. Ft.
Dimensions
Width:116' 2''
Depth:87' 8''
Ridge Height:30'7' 0''
Architectural Styles
Roofing Type
Gable
Roof Pitch
12/12
Ceiling Height
8 Foot Ceiling
Special Feature
Mother in law apartment
Garage Type
Attached GarageFront Entry
Fireplaces
One Fireplace
Exterior Wall Framing
2x4

What’s Included

Most plan sets include the following:

icon text-secondary-400 includedCover Sheet: Shows the front elevation and typical notes and requirements.

icon text-secondary-400 includedExterior Elevations: Shows the front, rear and sides of the home including exterior materials, details and measurements

icon text-secondary-400 includedFloor Plans: Shows the placement of walls and the dimensions for rooms, doors, windows, stairways, etc. for each floor.

icon text-secondary-400 includedElectrical Plans: Shows the location of outlets, fixtures and switches. They are shown as a separate sheet to make the floor plans more legible

icon text-secondary-400 includedFoundation Plans: will include a basement, crawlspace or slab depending on what is available for that home plan. (Please refer to the home plan's details sheet to see what foundation options are available for a specific home plan.) The foundation plan details the layout and construction of the foundation.

icon text-secondary-400 includedRoof Plan

icon text-secondary-400 includedTypical wall section

icon text-secondary-400 includedTypical stair section

icon text-secondary-400 includedCabinets are shown on all plans.

What’s Not Included

These items are  NOT included:

icon text-secondary-400 includedArchitectural or Engineering Stamp - handled locally if required.

icon text-secondary-400 includedSite Plan - handled locally when required.

icon text-secondary-400 includedMechanical Drawings (location of heating and air equipment and ductwork) - your subcontractors handle this.

icon text-secondary-400 includedPlumbing Drawings (drawings showing the actual plumbing pipe sizes and locations) - your subcontractors handle this.

icon text-secondary-400 includedEnergy calculations - handled locally when required.

Related House Plans

Plan Collection
Plan Collection
Plan Collection
Plan#115-1156
Starting at$2600
4000
Sq Ft
2
Story
2
Bed
2
Bath
4
Car
Plan Collection
Plan Collection
Plan Collection
Plan#165-1091
Starting at$2050
3006
Sq Ft
2
Story
2
Bed
2
Bath
0
Car
Plan Collection
Plan Collection
Plan Collection
Plan#132-1651
Starting at$2085
4730
Sq Ft
2
Story
2
Bed
2.5
Bath
2
Car
View All

Other Plans By This Designer

Plan Collection
Plan Collection
Plan Collection
Plan#100-1315
Starting at$700
576
Sq Ft
1
Story
1
Bed
1
Bath
0
Car
Plan Collection
Plan Collection
Plan Collection
Plan#100-1364
Starting at$400
224
Sq Ft
1.5
Story
0
Bed
0
Bath
0
Car
Plan Collection
Plan Collection
Plan Collection
Plan#100-1205
Starting at$1400
1440
Sq Ft
1
Story
2
Bed
2
Bath
2
Car