Estimate your costs based on your location and materials.
Yes! This plan can be customized—contact us for a free quote.


Yes! This plan can be customized—contact us for a free quote.
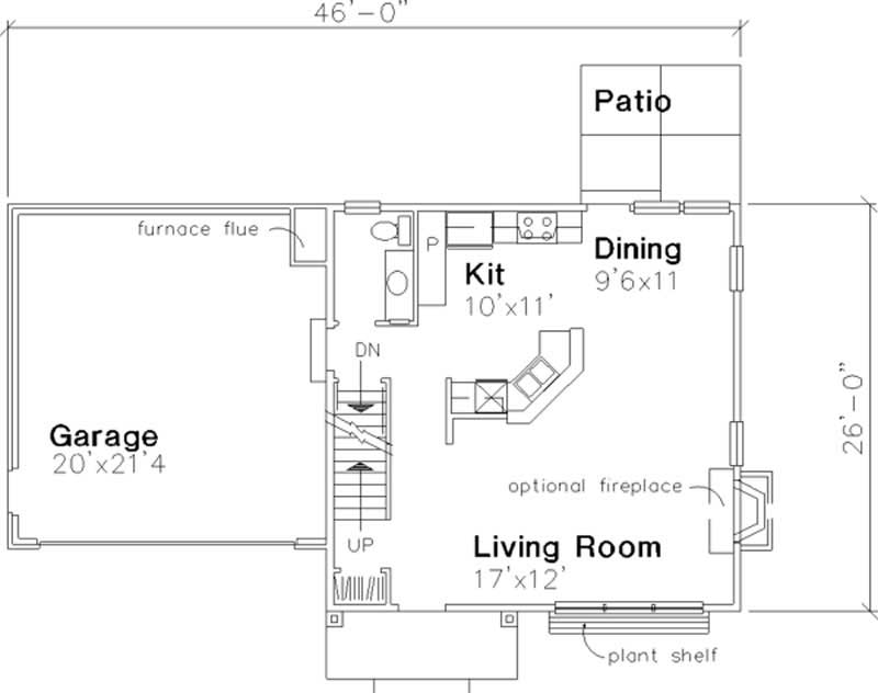
The living room offers an optional fireplace and opens to the dining room forming an "L"-shape so the dining table can use all of its leaves to accommodate extra family members on special occasions. The angled kitchen opens to the living and dining rooms above the corner sink so the whole family can share precious time together. The main floor even offers a powder room so guests will not have to walk the stairs, a real bonus in a 1352 square foot plan. The upper floor houses three good-sized bedrooms, including a vaulted master bedroom that offers private access to the full bath.
Estimate your costs based on your location and materials.
All sales of house plans, modifications, and other products found on this site are final. No refunds or exchanges can be given once your order has begun the fulfillment process. Please see our Policies for additional information.
All plans offered on ThePlanCollection.com are designed to conform to the local building codes when and where the original plan was drawn.
The homes as shown in photographs and renderings may differ from the actual blueprints. For more detailed information, please review the floor plan images herein carefully.
Estimate your costs based on your location and materials.


