Estimate your costs based on your location and materials.
Yes! This plan can be customized—contact us for a free quote.


Yes! This plan can be customized—contact us for a free quote.
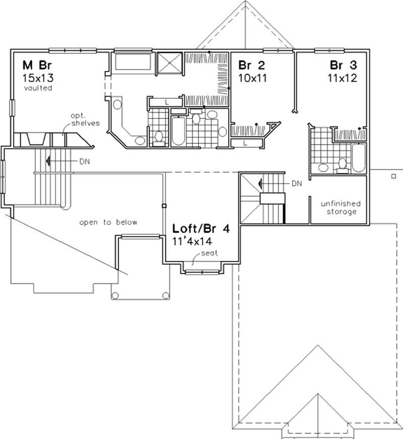
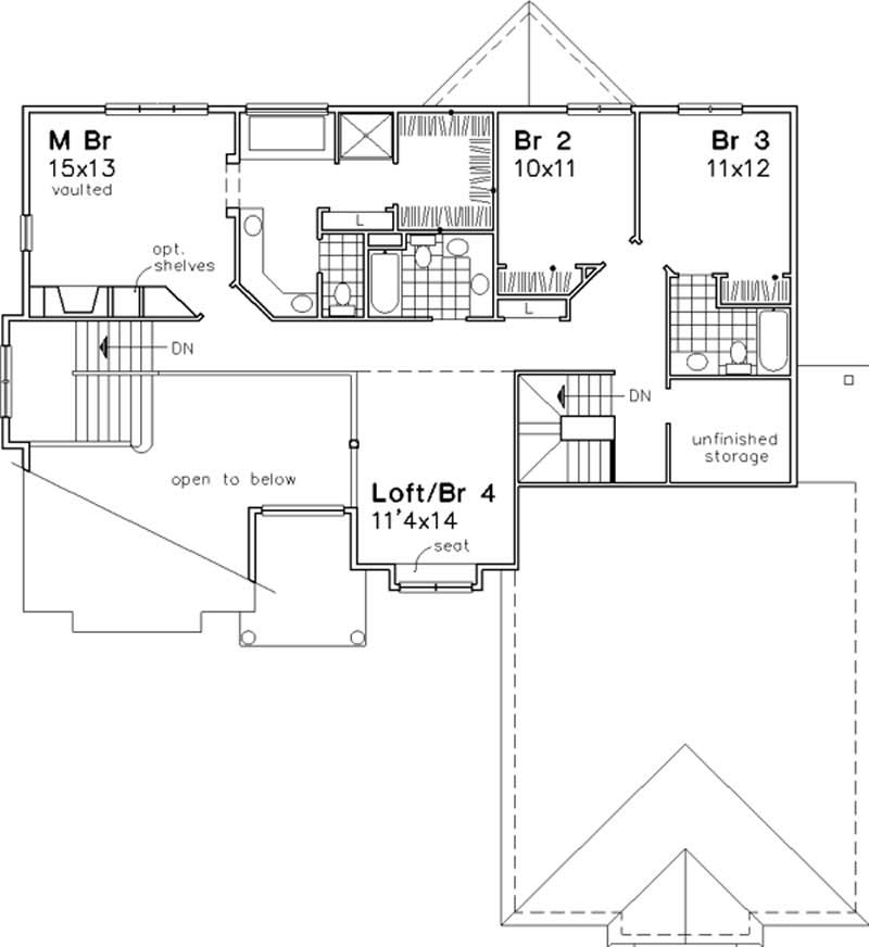
The kitchen also offers an island cooktop, service window for outdoor eating and is just steps from the breakfast room and formal dining room through the butler's pantry with sink and built-in cabinets. The formal living room has a dramatic vaulted ceiling, arched transom windows and double back stairs with loft overlook above. The family room incorporates a fireplace and built-in media center. A main floor sunroom can serve as a swing suite for guests or in-laws. A private second staircase leads upstairs to the three or four bedrooms plus storage room. The master suite has a vaulted ceiling,...
Estimate your costs based on your location and materials.
All sales of house plans, modifications, and other products found on this site are final. No refunds or exchanges can be given once your order has begun the fulfillment process. Please see our Policies for additional information.
All plans offered on ThePlanCollection.com are designed to conform to the local building codes when and where the original plan was drawn.
The homes as shown in photographs and renderings may differ from the actual blueprints. For more detailed information, please review the floor plan images herein carefully.
Estimate your costs based on your location and materials.


