Estimate your costs based on your location and materials.
Yes! This plan can be customized—contact us for a free quote.

Yes! This plan can be customized—contact us for a free quote.
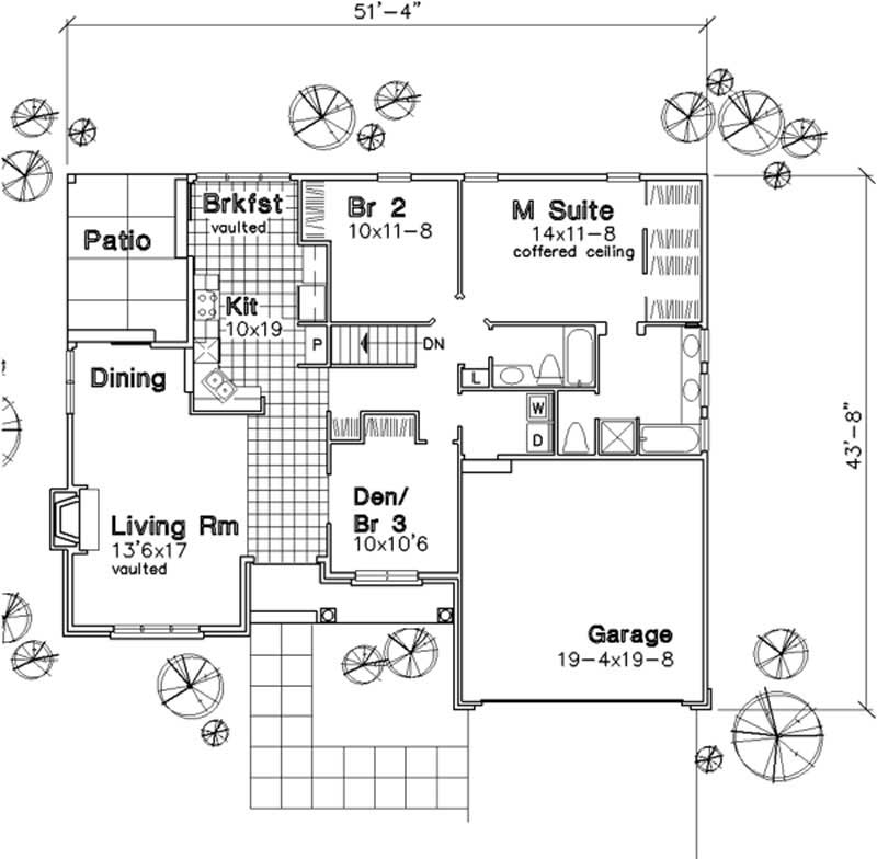
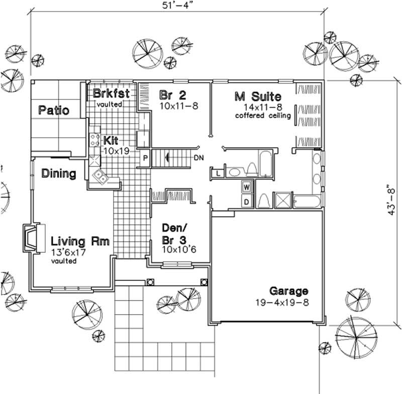
This beautiful one-story's charming looks, efficient floor plan and elegant amenities make it a great starter home. Half-round windows, decorative corner quoins and a covered front porch add character to the distinctive exterior. Past the double-door entry, the foyer flows into the vaulted living room, which boasts a handsome fireplace and a ceiling that slopes to nearly 14 feet. The adjoining formal dining room is brightened by French doors to a covered patio. A convenient pass-through provides service from the kitchen, which enjoys a 10-ft. vaulted ceiling and a sunny breakfast nook with...
Estimate your costs based on your location and materials.
All sales of house plans, modifications, and other products found on this site are final. No refunds or exchanges can be given once your order has begun the fulfillment process. Please see our Policies for additional information.
All plans offered on ThePlanCollection.com are designed to conform to the local building codes when and where the original plan was drawn.
The homes as shown in photographs and renderings may differ from the actual blueprints. For more detailed information, please review the floor plan images herein carefully.
Estimate your costs based on your location and materials.

