Estimate your costs based on your location and materials.
Yes! This plan can be customized—contact us for a free quote.


Yes! This plan can be customized—contact us for a free quote.
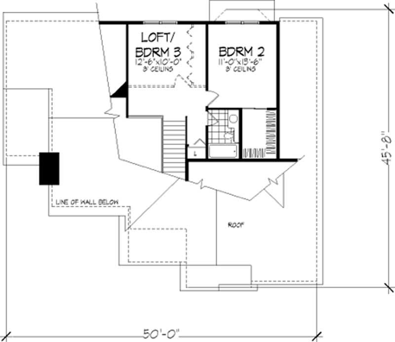
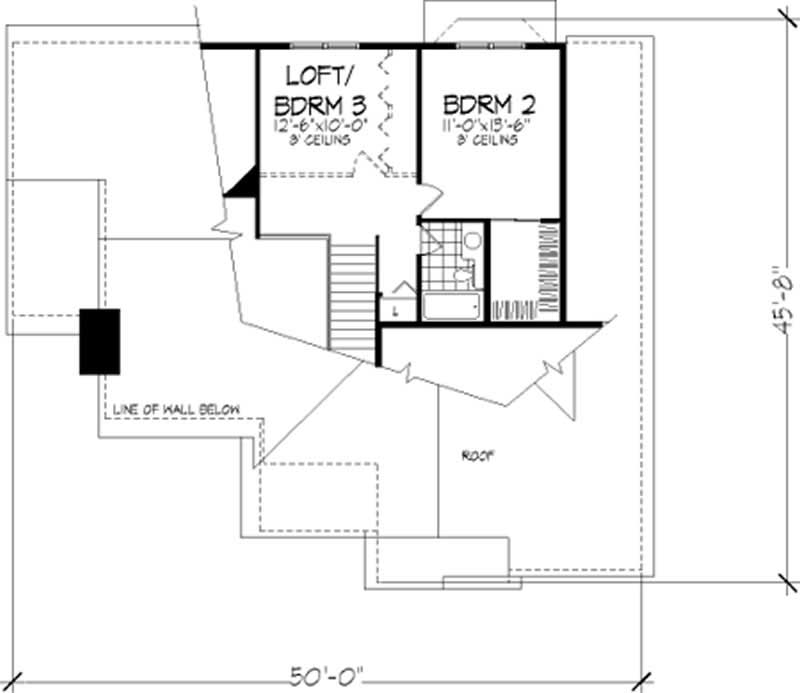
This country home uses traditional details and materials to create instant curb appeal in this three-bedroom, one-and-a-half-story design. A classic, covered entry porch directly opens to a stately staircase and a large vaulted living room with a cozy fireplace. A huge country kitchen, which features a bay window and a desk, is perfect for family-room-type activities. The vaulted master suite, with a spacious walk-in closet and a private bath, completes the first floor plan. The upper level houses a second bedroom, a full bath and a loft that can double as a third bedroom.
Estimate your costs based on your location and materials.
All sales of house plans, modifications, and other products found on this site are final. No refunds or exchanges can be given once your order has begun the fulfillment process. Please see our Policies for additional information.
All plans offered on ThePlanCollection.com are designed to conform to the local building codes when and where the original plan was drawn.
The homes as shown in photographs and renderings may differ from the actual blueprints. For more detailed information, please review the floor plan images herein carefully.
Estimate your costs based on your location and materials.


