Estimate your costs based on your location and materials.
Yes! This plan can be customized—contact us for a free quote.


Yes! This plan can be customized—contact us for a free quote.
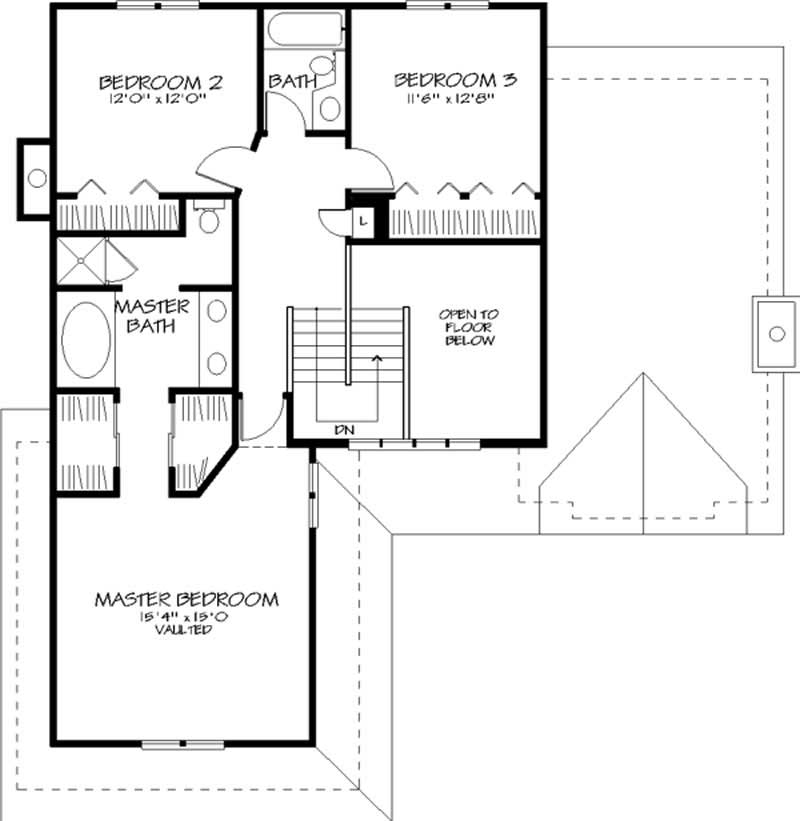
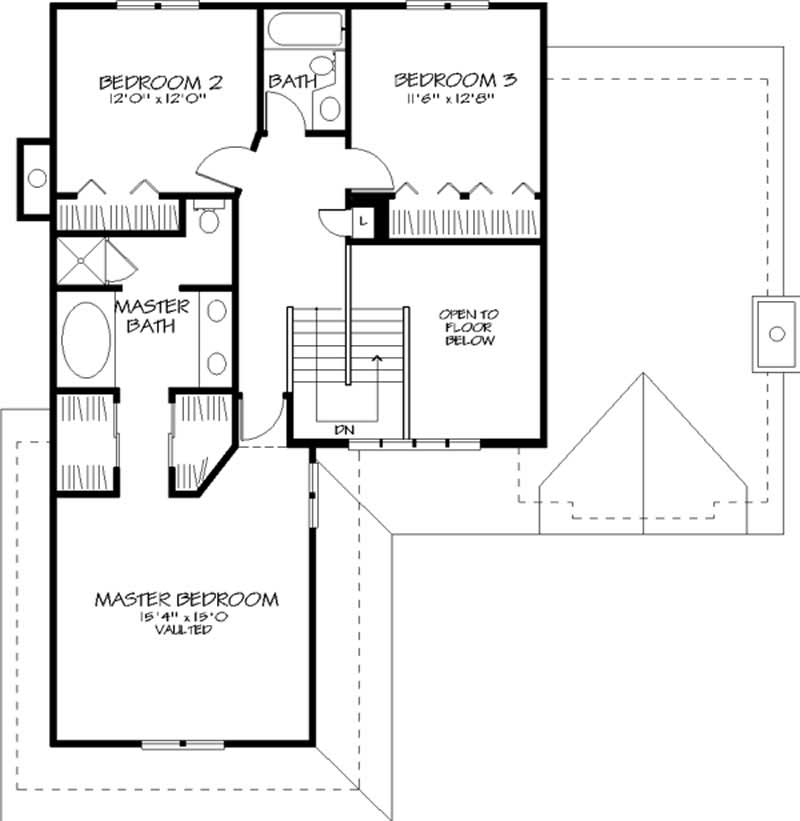
Narrow lap siding and half-circle, paned-glass windows give this two-story a creative country look. Inside, the vaulted entry has an open staircase and a balcony overlook. To the right of the foyer lies the sunken Great Room, which features a vaulted ceiling, a handsome fireplace and a boxed front window topped by a half-circle transom. The kitchen, breakfast nook and family room are combined to take advantage of the cozy fireplace and the views to the large deck. On the upper floor there are two large bedrooms plus a vaulted master suite. The suite is brightened by the half-circle window and...
Estimate your costs based on your location and materials.
All sales of house plans, modifications, and other products found on this site are final. No refunds or exchanges can be given once your order has begun the fulfillment process. Please see our Policies for additional information.
All plans offered on ThePlanCollection.com are designed to conform to the local building codes when and where the original plan was drawn.
The homes as shown in photographs and renderings may differ from the actual blueprints. For more detailed information, please review the floor plan images herein carefully.
Estimate your costs based on your location and materials.


