Estimate your costs based on your location and materials.
Yes! This plan can be customized—contact us for a free quote.


Yes! This plan can be customized—contact us for a free quote.
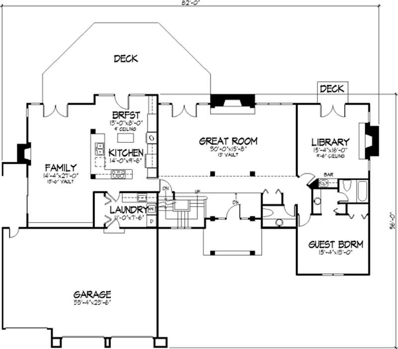
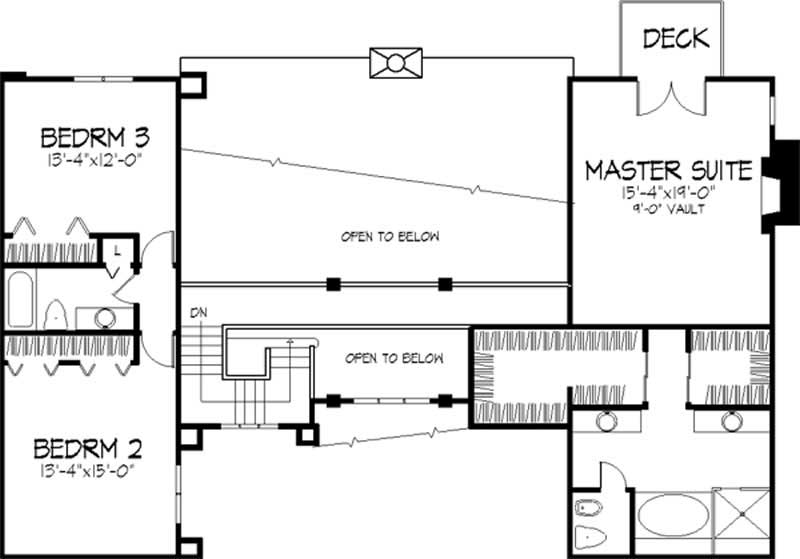
This incredible floor plan is the perfect reward for your years of hard work. Just beyond the raised entry foyer, a vaulted Great Room is anchored by a grand fireplace, one of three throughout the first floor. The island kitchen has a sunny breakfast nook with access to a rear deck. It also features a pass-through counter to the adjacent family room. A library and a guest bedroom with a private bath complete the first floor. Upstairs, the master suite features its own fireplace and a private deck. The suite's private bath has his-and-hers walk-in closets, twin vanities, a garden spa, a...
Estimate your costs based on your location and materials.
All sales of house plans, modifications, and other products found on this site are final. No refunds or exchanges can be given once your order has begun the fulfillment process. Please see our Policies for additional information.
All plans offered on ThePlanCollection.com are designed to conform to the local building codes when and where the original plan was drawn.
The homes as shown in photographs and renderings may differ from the actual blueprints. For more detailed information, please review the floor plan images herein carefully.
Estimate your costs based on your location and materials.


