Estimate your costs based on your location and materials.
Yes! This plan can be customized—contact us for a free quote.


Yes! This plan can be customized—contact us for a free quote.
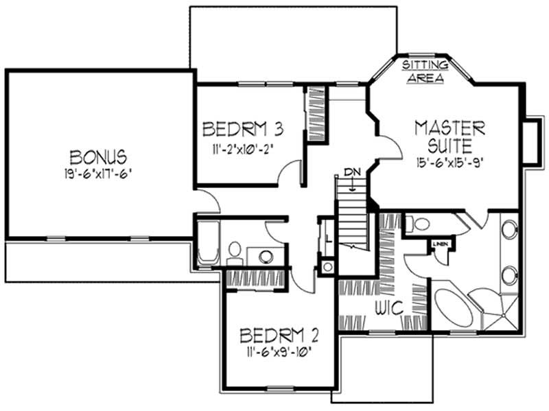
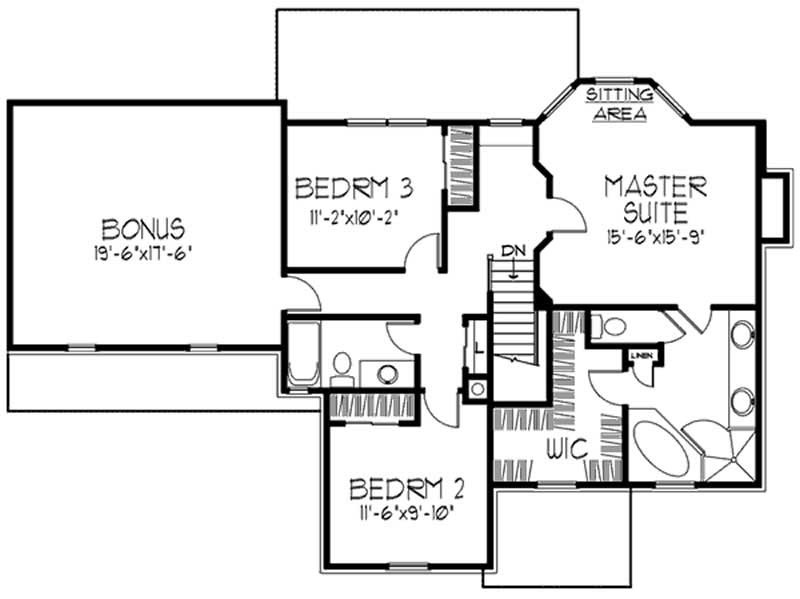
A formal dining room and a living room flank the foyer of this two-story home, where Colonial- style design features accent the exterior and a modern floorplan graces the interior. The spacious family room offers a fireplace and a bayed sitting area, and leads into the breakfast nook adjoining the roomy island kitchen. The luxurious master suite also boasts a bayed sitting area, as well as a generous walk-in closet and a private bath with a corner tub, a separate shower and a dual-sink vanity, while two additional bedrooms and a large bonus room above the garage share a second full bath.
Estimate your costs based on your location and materials.
All sales of house plans, modifications, and other products found on this site are final. No refunds or exchanges can be given once your order has begun the fulfillment process. Please see our Policies for additional information.
All plans offered on ThePlanCollection.com are designed to conform to the local building codes when and where the original plan was drawn.
The homes as shown in photographs and renderings may differ from the actual blueprints. For more detailed information, please review the floor plan images herein carefully.
Estimate your costs based on your location and materials.


