Estimate your costs based on your location and materials.
Yes! This plan can be customized—contact us for a free quote.
Yes! This plan can be customized—contact us for a free quote.
The CAD File formats are drawn in SoftPlan. PLEASE NOTE: Plans by this designer do NOT come with FRAMING! This designer does not do ICF.
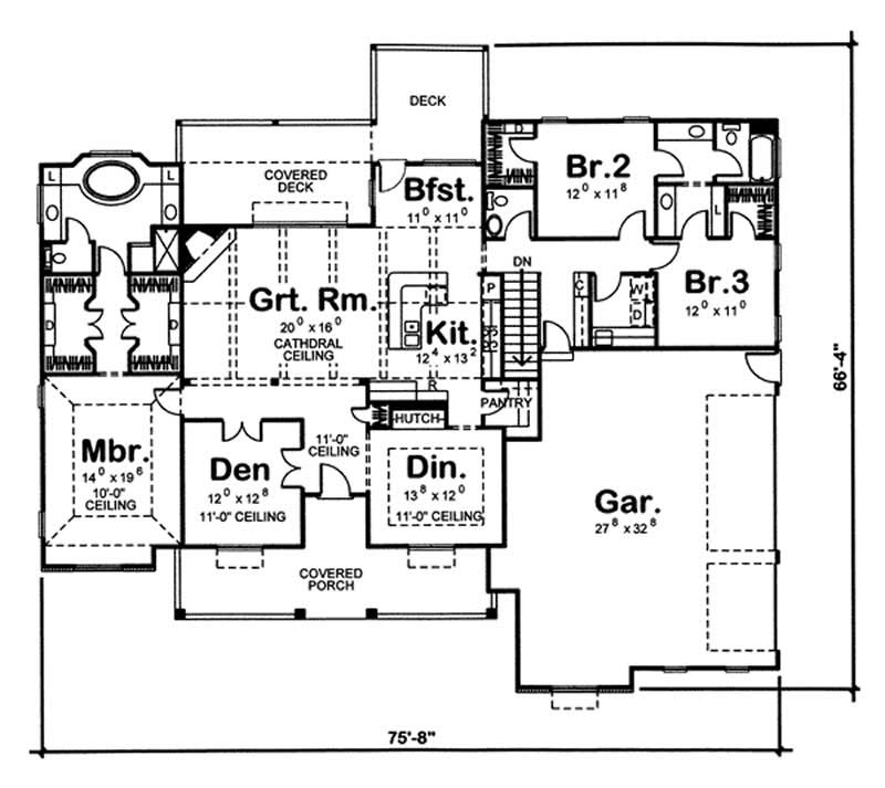
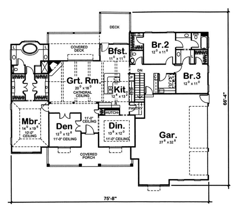
This home plan is a single-story Cape Cod style house plan with 2471 total living square feet. This plan has 3 bedrooms, 2 baths, and an attached side-entry 3-car garage. This house plan has a large great room at the center, which comes equipped with a cathedral ceiling. There's also a den, a dining room (with 11- ft. ceiling), breakfast and kitchen area, as well as the master bedroom and bath. The plan mixes the styles of Cape Cod and Country masterfully, creating a very beautiful exterior while still maintaining an ordinary interior.
Estimate your costs based on your location and materials.
All sales of house plans, modifications, and other products found on this site are final. No refunds or exchanges can be given once your order has begun the fulfillment process. Please see our Policies for additional information.
All plans offered on ThePlanCollection.com are designed to conform to the local building codes when and where the original plan was drawn.
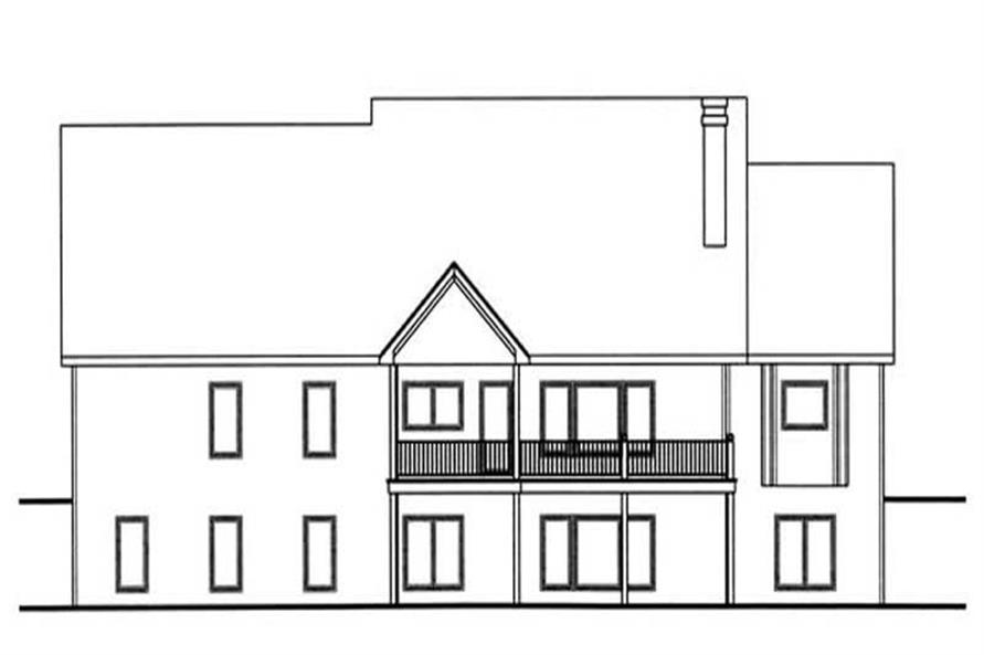
The homes as shown in photographs and renderings may differ from the actual blueprints. For more detailed information, please review the floor plan images herein carefully.
Estimate your costs based on your location and materials.

