5-Bedroom, 2758 Sq Ft Country Plan with Walk In Closet

Front elevation of Country home (ThePlanCollection: House Plan #147-1113)

Images/Plans copyrighted by designer. Photos may reflect homeowner modifications.

About House Plan #147-1113

Sq Ft
2758
Sq Ft
Bedrooms
5
Bedrooms
Bathroom
3
Baths
Half Baths
0
Half Baths
Bedrooms
0
Cars
Bedrooms
2
Stories
Bedrooms
61' 0'
Width
Bedrooms
32
Depth
Starting at$1233.75What's included
STEP 1Bedrooms
STEP 2Bedrooms
STEP 3Bedrooms

Subtotal:$0
BedroomsBest Price Guaranteed
Plan Collection

How much will it cost to build?

Estimate your costs based on your location and materials.

Free Cost Instant Estimator

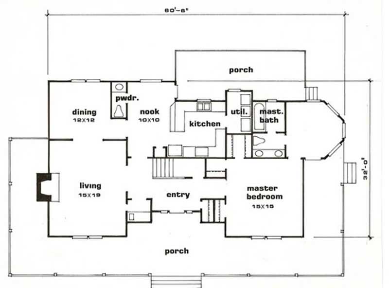
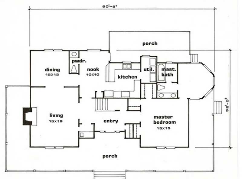
Floor Plans

MAIN FLOOR PLAN
MAIN FLOOR PLAN
SECOND FLOOR PLAN
SECOND FLOOR PLAN
Plan Collection

Can I modify this plan?

Yes! This plan can be customized—contact us for a free quote.

Additional Notes from Designer

PLEASE NOTE!! Mirror Reverse ONLY available if purchasing a PDF. Right Reading Reverse ONLY available if purchasing a CAD!

House Plan Description

House Plan number 147-1113 is a two story, Country/Ranch Style home with 2758 square feet total living area. This house plan boasts five bedrooms, three baths, and a large front and side porch. The main floor holds the living room, dining room, kitchen, and master bedroom. While on the second floor of the house plan are the other four bedrooms, each with easy access to a bathroom. Perfect for a large family.

Home Details

Summary
Plan #:147-1113
Starting at:$1233.75
Floors:2
Bedrooms:5
Full Baths:3
Half Baths:0
Garage:
Square Footage
Heated Area:2758 Sq. Ft.
First Floor:2758 Sq. Ft.
Unheated Area:
Dimensions
Architectural Styles
Exterior Wall Material
Aluminum SidingVinyl SidingWood Siding
Special Feature
FireplaceOpen Floor Plan
Fireplaces
One Fireplace
Kitchen Features
Nook/Breakfast AreaPeninsula/Eating Bar
Porches and Exterior Features
Wrap Around PorchCovered Rear Porch
Master Suite Features
Main Floor MasterMaster BathroomWalk In ClosetSitting Area

What’s Included

Most plan sets include the following:

icon text-secondary-400 includedFoundation Plan

icon text-secondary-400 includedFloor plans

icon text-secondary-400 includedRoof plan

icon text-secondary-400 includedExterior Elevations

icon text-secondary-400 includedCross Sections & typical details

icon text-secondary-400 includedInterior elevations as needed

icon text-secondary-400 includedDoor & Window schedule

icon text-secondary-400 includedElectrical layout

What’s Not Included

These items are  NOT included:

icon text-secondary-400 includedArchitectural or Engineering Stamp - handled locally if required.

icon text-secondary-400 includedSite Plan - handled locally when required.

icon text-secondary-400 includedMechanical Drawings (location of heating and air equipment and ductwork) - your subcontractors handle this.

icon text-secondary-400 includedPlumbing Drawings (drawings showing the actual plumbing pipe sizes and locations) - your subcontractors handle this.

icon text-secondary-400 includedEnergy calculations - handled locally when required.

Related House Plans

Plan Collection
Plan Collection
Plan Collection
Plan#173-1029
Starting at$1300
2750
Sq Ft
2
Story
5
Bed
3.5
Bath
2
Car
Plan Collection
Plan Collection
Plan Collection
Plan#153-1313
Starting at$1650
2704
Sq Ft
2
Story
5
Bed
3
Bath
0
Car
Plan Collection
Plan Collection
Plan Collection
Plan#189-1013
Starting at$2095
3263
Sq Ft
2
Story
5
Bed
3.5
Bath
2
Car
View All

Other Plans By This Designer

Plan Collection
Plan Collection
Plan Collection
Plan#147-1156
Starting at$1097
1950
Sq Ft
2
Story
4
Bed
2.5
Bath
2
Car
Plan Collection
Plan Collection
Plan Collection
Plan#147-1164
Starting at$924
1748
Sq Ft
1
Story
3
Bed
2
Bath
3
Car
Plan Collection
Plan Collection
Plan Collection
Plan#147-1166
Starting at$924
3168
Sq Ft
1
Story
4
Bed
3
Bath
3
Car