Estimate your costs based on your location and materials.
Yes! This plan can be customized—contact us for a free quote.


Yes! This plan can be customized—contact us for a free quote.
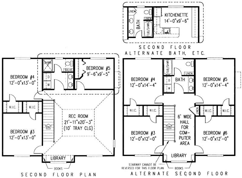
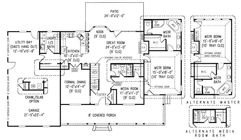
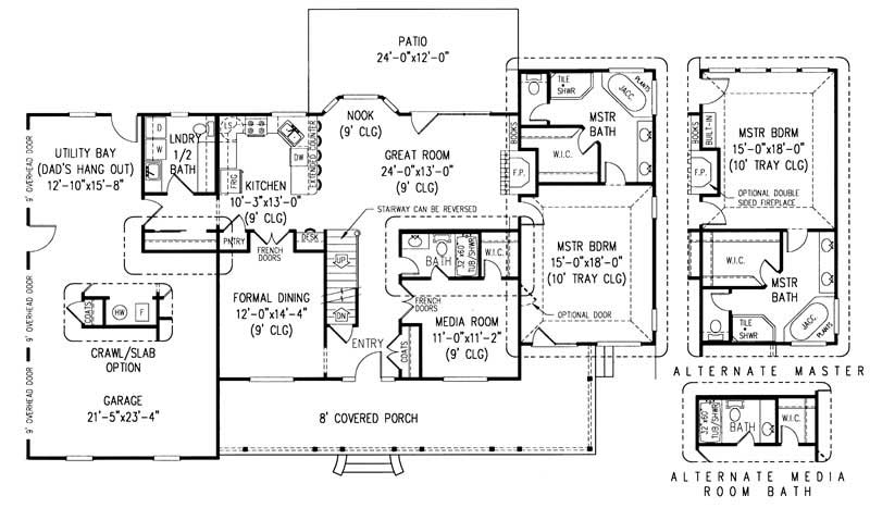
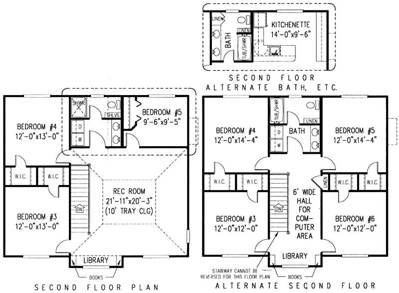
This house plan features a fireplace, built-ins, foyer, corner lot/side load garage, formal dining, great/gathering room, study/bedroom, work shop, home office, walk-in closet, media room, den/library, storage space, special ceiling treatments, master suite, split bedroom, guest room, family room, island kitchen, front porch, side porch, deck/patio, and oversized garage.
Estimate your costs based on your location and materials.
All sales of house plans, modifications, and other products found on this site are final. No refunds or exchanges can be given once your order has begun the fulfillment process. Please see our Policies for additional information.
All plans offered on ThePlanCollection.com are designed to conform to the local building codes when and where the original plan was drawn.
The homes as shown in photographs and renderings may differ from the actual blueprints. For more detailed information, please review the floor plan images herein carefully.
Estimate your costs based on your location and materials.


