Estimate your costs based on your location and materials.
Yes! This plan can be customized—contact us for a free quote.


Yes! This plan can be customized—contact us for a free quote.
Please Note: The plans by this designer DO NOT include electrical plans or electrical layout plans. NOTE: If you are building this home in Washington State, please contact us BEFORE placing your order!
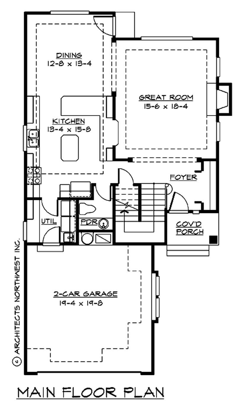
This houseplan has the nice feature of an open kitchen which allows plenty of room for cooking. This floor plan allows easy access from the kitchen to the dining area and into the great room. The great room has a pleasant and cozy fireplace to enjoy a good book by. There is a nice covered porch as you make your way into the home. The utilities room is located just oft from the garage for your convenience. You have a nice powder room located on the main floor where your guests can freshen up in. In the master bedroom you have a relaxing master bath along with a walk-in closet. Also on the...
Estimate your costs based on your location and materials.
All sales of house plans, modifications, and other products found on this site are final. No refunds or exchanges can be given once your order has begun the fulfillment process. Please see our Policies for additional information.
All plans offered on ThePlanCollection.com are designed to conform to the local building codes when and where the original plan was drawn.
The homes as shown in photographs and renderings may differ from the actual blueprints. For more detailed information, please review the floor plan images herein carefully.
Estimate your costs based on your location and materials.


