Estimate your costs based on your location and materials.
Yes! This plan can be customized—contact us for a free quote.


Yes! This plan can be customized—contact us for a free quote.
Please Note: The plans by this designer DO NOT include electrical plans or electrical layout plans. NOTE: If you are building this home in Washington State, please contact us BEFORE placing your order!
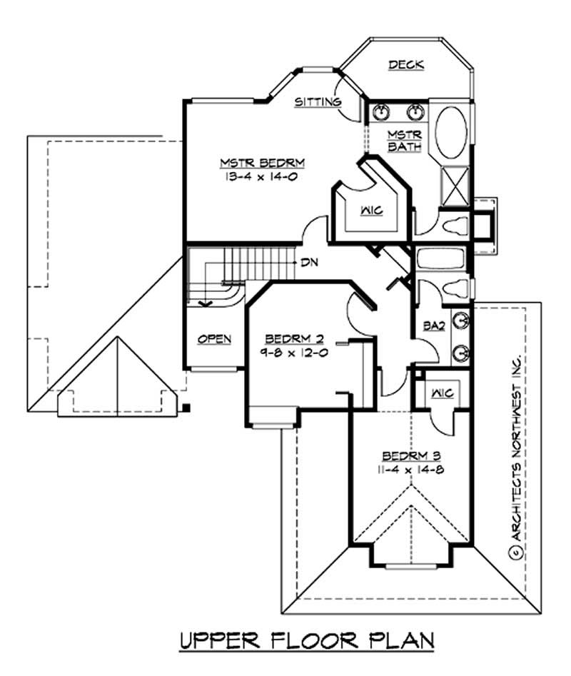
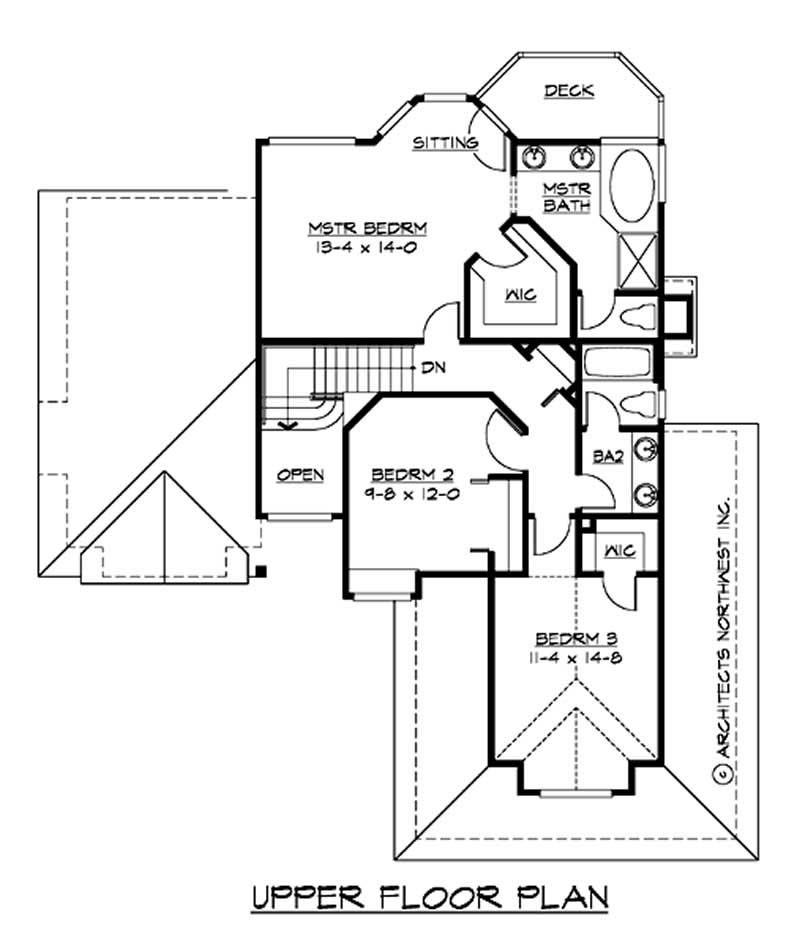
As you make your way into this houseplan you have the nice convenience of a powder room where your guests can freshen up in. The family room has a pleasant fireplace where you can cuddle up on the couch and read a good book by. There is a nice utilities room located by the garage where you can also store things. In the kitchen it is very open and gives you plenty of room for cooking. There is a nook located next to the kitchen and has a door leading out to a covered patio. The master suite is located on the second floor. This master bedroom includes a sitting area where there is a door...
Estimate your costs based on your location and materials.
All sales of house plans, modifications, and other products found on this site are final. No refunds or exchanges can be given once your order has begun the fulfillment process. Please see our Policies for additional information.
All plans offered on ThePlanCollection.com are designed to conform to the local building codes when and where the original plan was drawn.
The homes as shown in photographs and renderings may differ from the actual blueprints. For more detailed information, please review the floor plan images herein carefully.
Estimate your costs based on your location and materials.


