4-Bedroom, 2137 Sq Ft Country Plan with Nook/Breakfast Area

Main image for house plan # 13661

Images/Plans copyrighted by designer. Photos may reflect homeowner modifications.

About House Plan #101-1517

Sq Ft
2137
Sq Ft
Bedrooms
4
Bedrooms
Bathroom
2
Baths
Half Baths
0
Half Baths
Bedrooms
2
Cars
Bedrooms
2
Stories
Bedrooms
57' 0'
Width
Bedrooms
70
Depth
Starting at$1090.00What's included
STEP 1Bedrooms
STEP 2Bedrooms
STEP 3Bedrooms

Subtotal:$0
BedroomsBest Price Guaranteed
Plan Collection

How much will it cost to build?

Estimate your costs based on your location and materials.

Free Cost Instant Estimator

Floor Plans

MAIN FLOOR PLAN
MAIN FLOOR PLAN
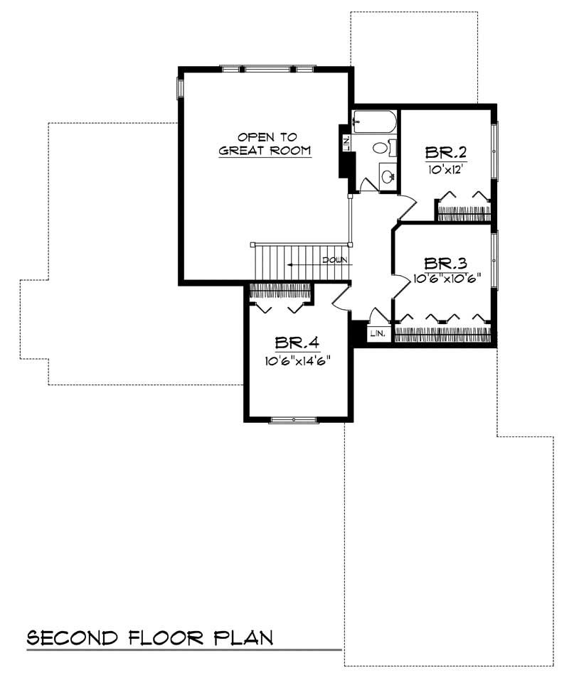
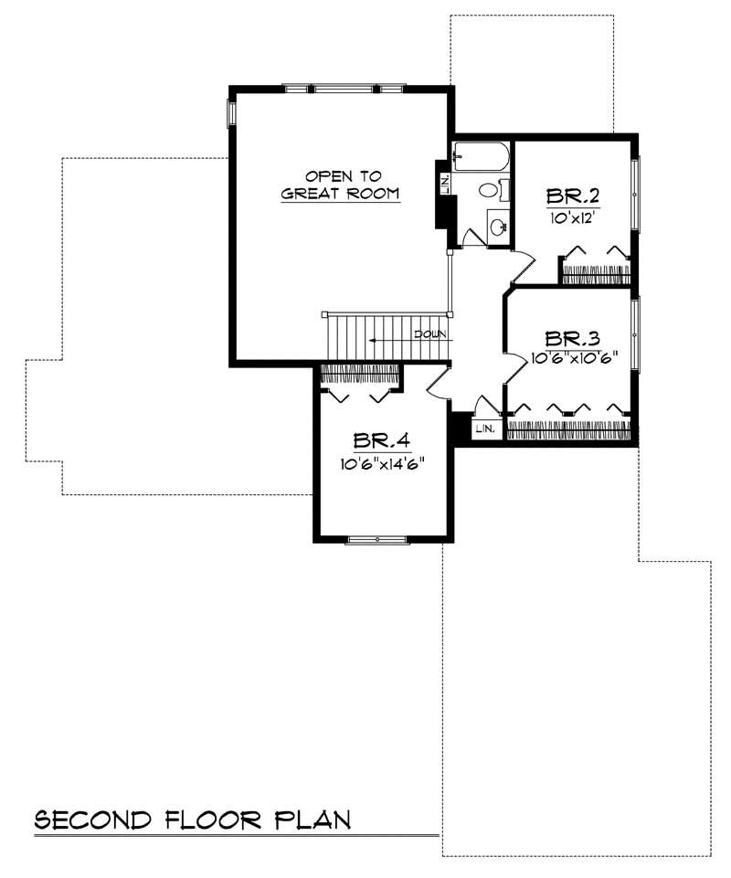
SECOND FLOOR PLAN
SECOND FLOOR PLAN
Plan Collection

Can I modify this plan?

Yes! This plan can be customized—contact us for a free quote.

House Plan Description

This charming 2-story, farmhouse design enjoys a 2-stall side load garage, large covered front porch, and screen porch off the rear. On the first floor of this home you will fall in love with the 2-story windows that highlight the Great Room. You are also sure to adore the convenience of a main floor Master Bedroom that is even more enjoyable with its tray ceiling, walk-in closet, and large Master Bath with a whirlpool surrounded by windows. The Dining Room is located to the right of the Foyer and has a nice view out the front of the home. The Kitchen of this home benefits from its...

Home Details

Summary
Plan #:101-1517
Starting at:$1090.00
Floors:2
Bedrooms:4
Full Baths:2
Half Baths:0
Garage:
Square Footage
Heated Area:2137 Sq. Ft.
First Floor:1547 Sq. Ft.
Second Floor:590 Sq. Ft.
Unheated Area:
Dimensions
Architectural Styles
Exterior Wall Material
Vinyl Siding
Roof Pitch
8/12
Ceiling Height
8 Foot Ceiling
Special Feature
Dining Room
Garage Type
Attached Garage
Exterior Wall Framing
2x6
Porches and Exterior Features
Covered Front Porch
Master Suite Features
Main Floor Master

What’s Included

Most plan sets include the following:

icon text-secondary-400 includedFront, Back & Side Elevations

icon text-secondary-400 includedFloor Plans

icon text-secondary-400 includedElectrical Layout (location of outlets, switches, etc. - it does not have wiring schematics)

icon text-secondary-400 includedRoof Plan (Birdseye view)

icon text-secondary-400 includedFoundation Layout

icon text-secondary-400 includedWall & Stair Sections

icon text-secondary-400 includedCross Section

icon text-secondary-400 includedKitchen Layout

icon text-secondary-400 includedGeneral Notes

What’s Not Included

These items are  NOT included:

icon text-secondary-400 includedArchitectural or Engineering Stamp - handled locally if required.

icon text-secondary-400 includedSite Plan - handled locally when required.

icon text-secondary-400 includedMechanical Drawings (location of heating and air equipment and ductwork) - your subcontractors handle this.

icon text-secondary-400 includedPlumbing Drawings (drawings showing the actual plumbing pipe sizes and locations) - your subcontractors handle this.

icon text-secondary-400 includedFraming layouts with beam sizes and locations.

icon text-secondary-400 includedEnergy calculations - handled locally when required.

Related House Plans

Plan Collection
Plan Collection
Plan Collection
Plan#169-1035
Starting at$770
2482
Sq Ft
2
Story
4
Bed
2.5
Bath
3
Car
Plan Collection
Plan Collection
Plan Collection
Plan#178-1080
Starting at$1105
1980
Sq Ft
2
Story
4
Bed
2.5
Bath
2
Car
Plan Collection
Plan Collection
Plan Collection
Plan#173-1015
Starting at$1150
1840
Sq Ft
2
Story
4
Bed
2.5
Bath
2
Car
View All

Other Plans By This Designer

Plan Collection
Plan Collection
Plan Collection
Plan#101-1503
Starting at$1090
2098
Sq Ft
2
Story
4
Bed
2
Bath
2
Car
Plan Collection
Plan Collection
Plan Collection
Plan#101-1028
Starting at$1240
3020
Sq Ft
2
Story
4
Bed
2.5
Bath
3
Car
Plan Collection
Plan Collection
Plan Collection
Plan#101-2024
Starting at$1240
3235
Sq Ft
1
Story
5
Bed
3.5
Bath
3
Car