3-Bedroom, 1537 Sq Ft Country Plan with Outdoor Kitchen

Main image for house plan # 13310

Images/Plans copyrighted by designer. Photos may reflect homeowner modifications.

About House Plan #101-1103

Sq Ft
1537
Sq Ft
Bedrooms
3
Bedrooms
Bathroom
2
Baths
Half Baths
0
Half Baths
Bedrooms
2
Cars
Bedrooms
1
Stories
Bedrooms
56' 0'
Width
Bedrooms
44
Depth
Starting at$1090.00What's included
STEP 1Bedrooms
STEP 2Bedrooms
STEP 3Bedrooms

Subtotal:$0
BedroomsBest Price Guaranteed
Plan Collection

How much will it cost to build?

Estimate your costs based on your location and materials.

Free Cost Instant Estimator

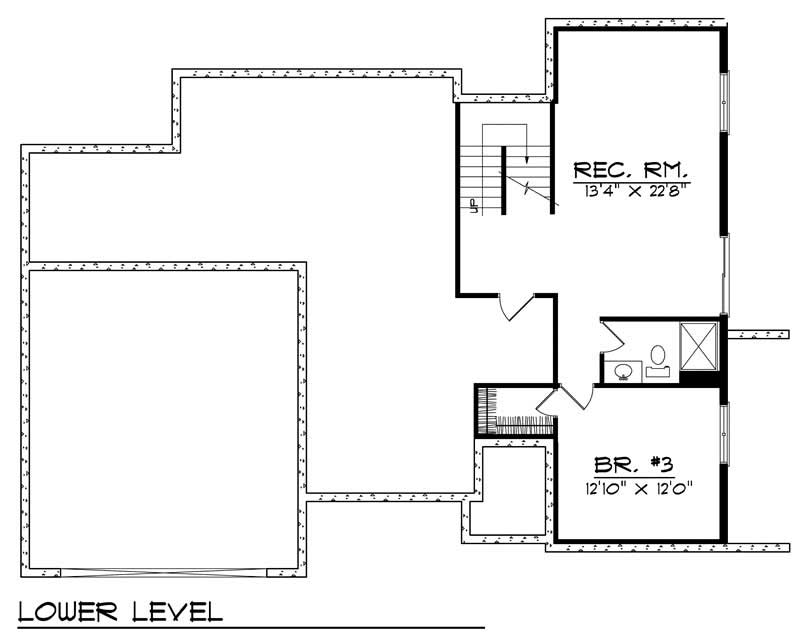
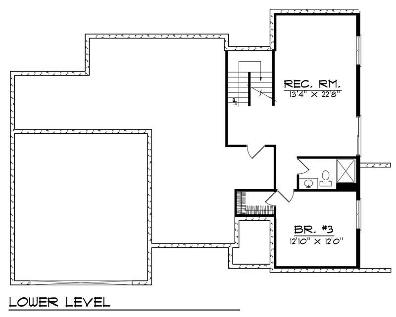
Floor Plans

MAIN FLOOR PLAN
MAIN FLOOR PLAN
BASEMENT FLOOR PLAN
BASEMENT FLOOR PLAN
Plan Collection

Can I modify this plan?

Yes! This plan can be customized—contact us for a free quote.

House Plan Description

Looks can be deceiving--and you'll be surprised and pleased by the open spacious floor plan of this cozy ranch. The tall ceiling in the great room is accented by the sunlight streaming in through the large windows located on the front of the home. The kitchen opens into the dining room, making these two rooms perfect for entertaining or just doing the day's schoolwork. The large laundry room, with its spacious closet, makes caring for your family that much easier. The deck in the rear of the home will provide a great place to relax and enjoy your yard. The master bedroom features a private...

Home Details

Summary
Plan #:101-1103
Starting at:$1090.00
Floors:1
Bedrooms:3
Full Baths:2
Half Baths:0
Garage:
Square Footage
Heated Area:1537 Sq. Ft.
First Floor:1537 Sq. Ft.
Unheated Area:
Basement:644 Sq. Ft.
Dimensions
Architectural Styles
Exterior Wall Material
Vinyl SidingBrick
Roof Pitch
9/12
Ceiling Height
8 Foot Ceiling
Special Feature
Dining Room
Garage Type
Attached Garage
Exterior Wall Framing
2x6

What’s Included

Most plan sets include the following:

icon text-secondary-400 includedFront, Back & Side Elevations

icon text-secondary-400 includedFloor Plans

icon text-secondary-400 includedElectrical Layout (location of outlets, switches, etc. - it does not have wiring schematics)

icon text-secondary-400 includedRoof Plan (Birdseye view)

icon text-secondary-400 includedFoundation Layout

icon text-secondary-400 includedWall & Stair Sections

icon text-secondary-400 includedCross Section

icon text-secondary-400 includedKitchen Layout

icon text-secondary-400 includedGeneral Notes

What’s Not Included

These items are  NOT included:

icon text-secondary-400 includedArchitectural or Engineering Stamp - handled locally if required.

icon text-secondary-400 includedSite Plan - handled locally when required.

icon text-secondary-400 includedMechanical Drawings (location of heating and air equipment and ductwork) - your subcontractors handle this.

icon text-secondary-400 includedPlumbing Drawings (drawings showing the actual plumbing pipe sizes and locations) - your subcontractors handle this.

icon text-secondary-400 includedFraming layouts with beam sizes and locations.

icon text-secondary-400 includedEnergy calculations - handled locally when required.

Related House Plans

Plan Collection
Plan Collection
Plan Collection
Plan#142-1041
Starting at$1345
1300
Sq Ft
1
Story
3
Bed
2
Bath
2
Car
Plan Collection
Plan Collection
Plan Collection
Plan#141-1243
Starting at$1300
1640
Sq Ft
1
Story
3
Bed
2
Bath
2
Car
Plan Collection
Plan Collection
Plan Collection
Plan#176-1012
Starting at$600
1412
Sq Ft
1
Story
3
Bed
2
Bath
0
Car
View All

Other Plans By This Designer

Plan Collection
Plan Collection
Plan Collection
Plan#101-1503
Starting at$1090
2098
Sq Ft
2
Story
4
Bed
2
Bath
2
Car
Plan Collection
Plan Collection
Plan Collection
Plan#101-1028
Starting at$1240
3020
Sq Ft
2
Story
4
Bed
2.5
Bath
3
Car
Plan Collection
Plan Collection
Plan Collection
Plan#101-2024
Starting at$1240
3235
Sq Ft
1
Story
5
Bed
3.5
Bath
3
Car