3-Bedroom, 1103 Sq Ft Ranch Plan with Main Floor Master

Main image for house plan # 12906

Images/Plans copyrighted by designer. Photos may reflect homeowner modifications.

About House Plan #157-1281

Sq Ft
1103
Sq Ft
Bedrooms
3
Bedrooms
Bathroom
1
Baths
Half Baths
0
Half Baths
Bedrooms
1
Cars
Bedrooms
2
Stories
Bedrooms
32' 0'
Width
Bedrooms
34
Depth
Starting at$1055.00What's included
STEP 1Bedrooms
STEP 2Bedrooms
STEP 3Bedrooms

Subtotal:$0
BedroomsBest Price Guaranteed
Plan Collection

How much will it cost to build?

Estimate your costs based on your location and materials.

Free Cost Instant Estimator

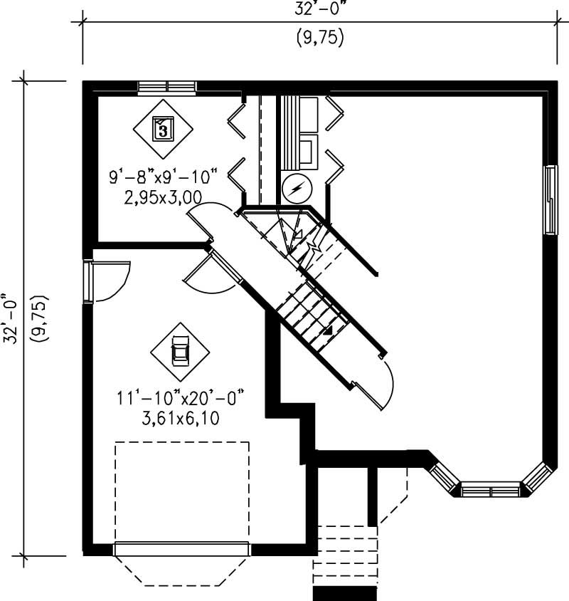
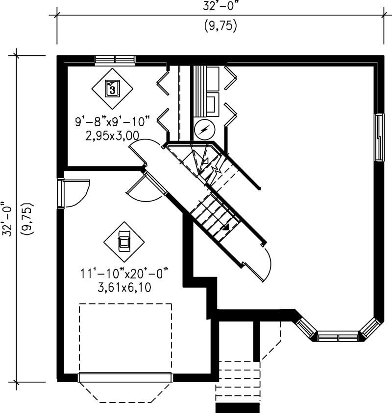
Floor Plans

MAIN FLOOR PLAN
MAIN FLOOR PLAN
BASEMENT FLOOR PLAN
BASEMENT FLOOR PLAN
Plan Collection

Can I modify this plan?

Yes! This plan can be customized—contact us for a free quote.

Additional Notes from Designer

Please Note that the designer's office will be closed for Christmas and New Year's Day from 12/21/2024 to 1/5/2025, inclusive. Any orders or modification requests submitted during this time will be processed when the designer resumes office on 1/6/2025. This designer doesn't offer electrical layouts with their plans! For our Ontario customers - BCIN is available for this designer's plans. Please submit a modification request to receive a free quote.

House Plan Description

The PI-20308 home plan is a two story, Traditional, Bungalow Style house plan with 1103 total living square feet. This house plan has a total of 3 bedrooms, 1 bathroom, and a single car garage. This house plan has both a beautiful floor plan and exterior, using the brick and aluminum siding exterior masterfully.

Home Details

Summary
Plan #:157-1281
Starting at:$1055.00
Floors:2
Bedrooms:3
Full Baths:1
Half Baths:0
Garage:
Square Footage
Heated Area:1103 Sq. Ft.
First Floor:955 Sq. Ft.
Unheated Area:
Basement:148 Sq. Ft.
Dimensions
Architectural Styles
Exterior Wall Material
Aluminum SidingBrick
Garage Type
Attached Garage
Building Lot Type
Narrow Lot Design

What’s Included

Most plan sets include the following:

icon text-secondary-400 includedExterior elevations

icon text-secondary-400 includedFoundation plan

icon text-secondary-400 includedFloor plans

icon text-secondary-400 includedCross sections

icon text-secondary-400 includedStaircase section

icon text-secondary-400 includedRoof truss drawings

icon text-secondary-400 includedSpecifications

icon text-secondary-400 includedConstruction details

icon text-secondary-400 includedSize of structural elements (posts, beams, concrete pads, etc.)

What’s Not Included

These items are  NOT included:

icon text-secondary-400 includedArchitectural or Engineering Stamp - handled locally if required.

icon text-secondary-400 includedSite Plan - handled locally when required.

icon text-secondary-400 includedMechanical Drawings (location of heating and air equipment and ductwork) - your subcontractors handle this.

icon text-secondary-400 includedPlumbing Drawings (drawings showing the actual plumbing pipe sizes and locations) - your subcontractors handle this.

icon text-secondary-400 includedEnergy calculations - handled locally when required.

Related House Plans

Plan Collection
Plan Collection
Plan Collection
Plan#146-2565
Starting at$885
1220
Sq Ft
2
Story
3
Bed
1.5
Bath
0
Car
Plan Collection
Plan Collection
Plan Collection
Plan#167-1026
Starting at$700
1073
Sq Ft
2
Story
3
Bed
1.5
Bath
0
Car
Plan Collection
Plan Collection
Plan Collection
Plan#137-1758
Starting at$735
1245
Sq Ft
2
Story
3
Bed
1.5
Bath
1
Car
View All

Other Plans By This Designer

Plan Collection
Plan Collection
Plan Collection
Plan#157-1148
Starting at$1055
1110
Sq Ft
1
Story
2
Bed
1
Bath
0
Car
Plan Collection
Plan Collection
Plan Collection
Plan#157-1381
Starting at$855
1000
Sq Ft
1
Story
2
Bed
1
Bath
1
Car
Plan Collection
Plan Collection
Plan Collection
Plan#157-1405
Starting at$1350
1820
Sq Ft
2
Story
4
Bed
2
Bath
1
Car