3-Bedroom, 912 Sq Ft Ranch Plan with Nook/Breakfast Area

Main image for house plan # 12661

Images/Plans copyrighted by designer. Photos may reflect homeowner modifications.

About House Plan #157-1055

Sq Ft
912
Sq Ft
Bedrooms
3
Bedrooms
Bathroom
1
Baths
Half Baths
0
Half Baths
Bedrooms
0
Cars
Bedrooms
1
Stories
Bedrooms
38' 0'
Width
Bedrooms
24
Depth
Starting at$855.00What's included
STEP 1Bedrooms
STEP 2Bedrooms
STEP 3Bedrooms

Subtotal:$0
BedroomsBest Price Guaranteed
Plan Collection

How much will it cost to build?

Estimate your costs based on your location and materials.

Free Cost Instant Estimator

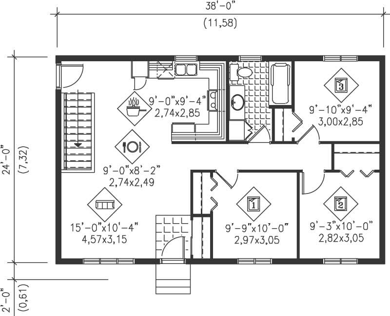
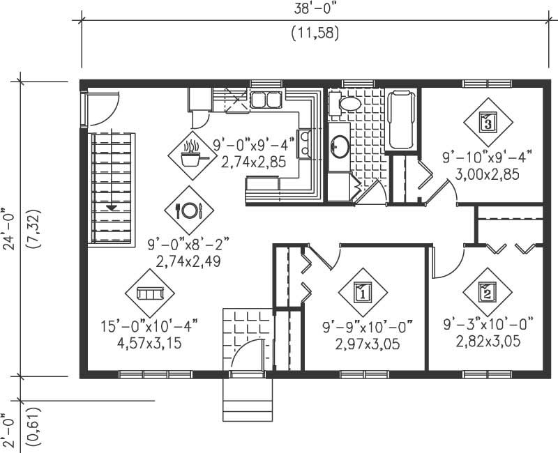
Floor Plans

MAIN FLOOR PLAN
MAIN FLOOR PLAN
Plan Collection

Can I modify this plan?

Yes! This plan can be customized—contact us for a free quote.

Additional Notes from Designer

Please Note that the designer's office will be closed for Christmas and New Year's Day from 12/21/2024 to 1/5/2025, inclusive. Any orders or modification requests submitted during this time will be processed when the designer resumes office on 1/6/2025. This designer doesn't offer electrical layouts with their plans! For our Ontario customers - BCIN is available for this designer's plans. Please submit a modification request to receive a free quote.

House Plan Description

This house plan features an open area inside the foyer that holds a living room, dining room and kitchen. The three bedrooms of the home are down the hallway with a bathroom for them to share.

Home Details

Summary
Plan #:157-1055
Starting at:$855.00
Floors:1
Bedrooms:3
Full Baths:1
Half Baths:0
Garage:
Square Footage
Heated Area:912 Sq. Ft.
First Floor:912 Sq. Ft.
Unheated Area:
Dimensions
Architectural Styles
Exterior Wall Material
Aluminum Siding
Building Lot Type
Narrow Lot Design

What’s Included

Most plan sets include the following:

icon text-secondary-400 includedExterior elevations

icon text-secondary-400 includedFoundation plan

icon text-secondary-400 includedFloor plans

icon text-secondary-400 includedCross sections

icon text-secondary-400 includedStaircase section

icon text-secondary-400 includedRoof truss drawings

icon text-secondary-400 includedSpecifications

icon text-secondary-400 includedConstruction details

icon text-secondary-400 includedSize of structural elements (posts, beams, concrete pads, etc.)

What’s Not Included

These items are  NOT included:

icon text-secondary-400 includedArchitectural or Engineering Stamp - handled locally if required.

icon text-secondary-400 includedSite Plan - handled locally when required.

icon text-secondary-400 includedMechanical Drawings (location of heating and air equipment and ductwork) - your subcontractors handle this.

icon text-secondary-400 includedPlumbing Drawings (drawings showing the actual plumbing pipe sizes and locations) - your subcontractors handle this.

icon text-secondary-400 includedEnergy calculations - handled locally when required.

Related House Plans

Plan Collection
Plan Collection
Plan Collection
Plan#148-1068
Starting at$750
936
Sq Ft
1
Story
3
Bed
1
Bath
2
Car
Plan Collection
Plan Collection
Plan Collection
Plan#211-1015
Starting at$900
900
Sq Ft
1
Story
3
Bed
1
Bath
0
Car
Plan Collection
Plan Collection
Plan Collection
Plan#137-1760
Starting at$735
864
Sq Ft
1
Story
3
Bed
1
Bath
0
Car
View All

Other Plans By This Designer

Plan Collection
Plan Collection
Plan Collection
Plan#157-1148
Starting at$1055
1110
Sq Ft
1
Story
2
Bed
1
Bath
0
Car
Plan Collection
Plan Collection
Plan Collection
Plan#157-1381
Starting at$855
1000
Sq Ft
1
Story
2
Bed
1
Bath
1
Car
Plan Collection
Plan Collection
Plan Collection
Plan#157-1405
Starting at$1350
1820
Sq Ft
2
Story
4
Bed
2
Bath
1
Car