3-Bedroom, 1124 Sq Ft Ranch Plan with Covered Rear Porch

Main image for house plan # 13255

Images/Plans copyrighted by designer. Photos may reflect homeowner modifications.

About House Plan #126-1407

Sq Ft
1124
Sq Ft
Bedrooms
3
Bedrooms
Bathroom
1
Baths
Half Baths
0
Half Baths
Bedrooms
0
Cars
Bedrooms
1
Stories
Bedrooms
42' 0'
Width
Bedrooms
28
Depth
Starting at$1450.00What's included
STEP 1Bedrooms
STEP 2Bedrooms
STEP 3Bedrooms

Subtotal:$0
BedroomsBest Price Guaranteed
Plan Collection

How much will it cost to build?

Estimate your costs based on your location and materials.

Free Cost Instant Estimator

Floor Plans

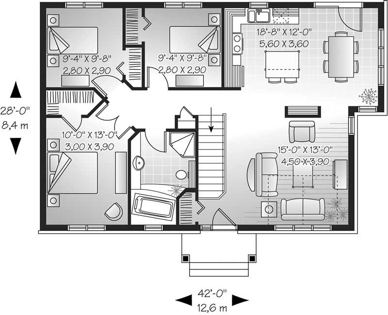
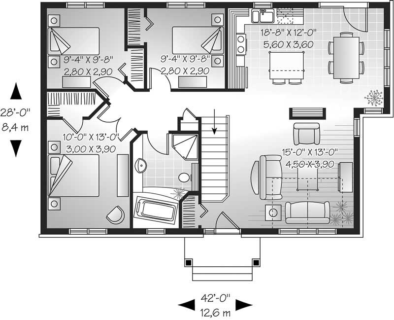
MAIN FLOOR PLAN
MAIN FLOOR PLAN
Plan Collection

Can I modify this plan?

Yes! This plan can be customized—contact us for a free quote.

Additional Notes from Designer

Please Note: The Designer's office will be closed for the holidays from 12/19/2025 to 1/5/2026. Any orders placed during this time will be fulfilled when the designer resumes office. This designer's plans take 7-14 additional business days regardless of the type of delivery (express, email, etc). Please keep this in mind when ordering. BCIN is available for this designer - please submit a modification request to get a quote and time frame. PLEASE NOTE! This designer's plans do NOT come with an electrical layout. They will provide an electrical layout for an additional fee.

House Plan Description

Living room, kitchen with island / lunch counter, dining room, master bedroom with walk-in closet, two secondary bedrooms, full bathroom. Partial cathedral ceiling in living room to make room for half-moon window. Abundant windowing in dining room, resembling a sun room. Well organized bathroom with separate shower and corner bathtub.

Home Details

Summary
Plan #:126-1407
Starting at:$1450.00
Floors:1
Bedrooms:3
Full Baths:1
Half Baths:0
Garage:
Square Footage
Heated Area:1124 Sq. Ft.
First Floor:1124 Sq. Ft.
Unheated Area:
Dimensions
Architectural Styles
Exterior Wall Material
BrickRock/Stone
Ceiling Height
8 Foot Ceiling
Special Feature
Dining Room
Building Lot Type
Narrow Lot Design

What’s Included

Most plan sets include the following:

icon text-secondary-400 includedExterior elevations

icon text-secondary-400 includedFoundation plan

icon text-secondary-400 includedMain floor plan

icon text-secondary-400 includedUpper floor plan (if applicable)

icon text-secondary-400 includedRoof plan

icon text-secondary-400 includedTruss diagrams & building sections

icon text-secondary-400 includedConstruction details

icon text-secondary-400 includedTypical wall section

What’s Not Included

These items are  NOT included:

icon text-secondary-400 includedArchitectural or Engineering Stamp - handled locally if required.

icon text-secondary-400 includedSite Plan - handled locally when required.

icon text-secondary-400 includedNo Electrical

icon text-secondary-400 includedMechanical Drawings (location of heating and air equipment and ductwork) - your subcontractors handle this.

icon text-secondary-400 includedPlumbing Drawings (drawings showing the actual plumbing pipe sizes and locations) - your subcontractors handle this.

icon text-secondary-400 includedEnergy calculations - handled locally when required.

Related House Plans

Plan Collection
Plan Collection
Plan Collection
Plan#158-1263
Starting at$1500
1268
Sq Ft
1
Story
3
Bed
1
Bath
1
Car
Plan Collection
Plan Collection
Plan Collection
Plan#126-1552
Starting at$1450
1147
Sq Ft
1
Story
3
Bed
1
Bath
0
Car
Plan Collection
Plan Collection
Plan Collection
Plan#158-1298
Starting at$1500
1180
Sq Ft
1
Story
3
Bed
1
Bath
1
Car
View All

Other Plans By This Designer

Plan Collection
Plan Collection
Plan Collection
Plan#126-1325
Starting at$3160
7624
Sq Ft
3
Story
16
Bed
8
Bath
0
Car
Plan Collection
Plan Collection
Plan Collection
Plan#126-1279
Starting at$1855
2252
Sq Ft
2
Story
4
Bed
3.5
Bath
2
Car
Plan Collection
Plan Collection
Plan Collection
Plan#126-1590
Starting at$1740
1872
Sq Ft
2
Story
3
Bed
2
Bath
2
Car