Estimate your costs based on your location and materials.
Yes! This plan can be customized—contact us for a free quote.

Yes! This plan can be customized—contact us for a free quote.
CAD files for this plan will be delivered in both DXF (AutoCad readable) and Sketchup Pro formats.
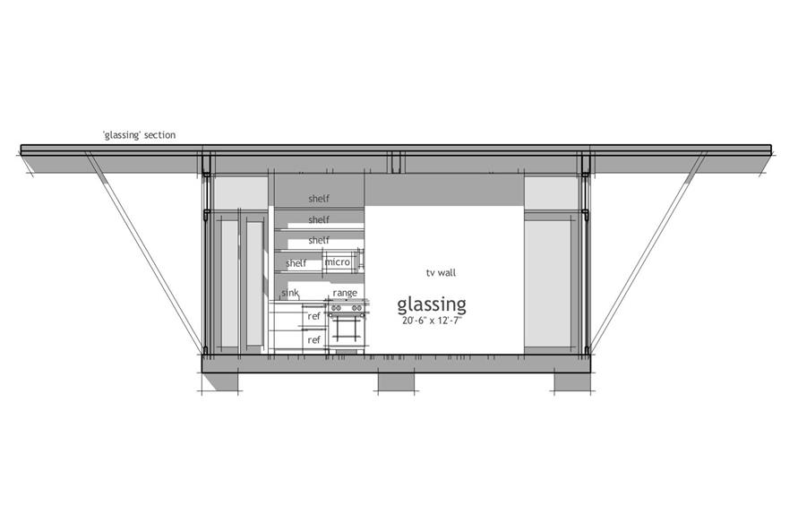
A modern home designed for property with a view. Each bedroom has space for a large bed, or a grouping of bunk beds for the kids. The construction of this home is designed to minimize the weight of building materials allowing construction in more remote locations.
BUILD
insulated elevated wood floor system,
steel columns,
storefront windows and sliding doors,
laminated wood beams,
SIPS roof structure with built-up roofing system.
Estimate your costs based on your location and materials.
All sales of house plans, modifications, and other products found on this site are final. No refunds or exchanges can be given once your order has begun the fulfillment process. Please see our Policies for additional information.
All plans offered on ThePlanCollection.com are designed to conform to the local building codes when and where the original plan was drawn.
The homes as shown in photographs and renderings may differ from the actual blueprints. For more detailed information, please review the floor plan images herein carefully.
Estimate your costs based on your location and materials.


